53 days on Market
832 WOODS CRESCENT, Warman, Saskatchewan S0K4S0
Detached
3
2
~1350 sqft
$553,600
Get pre-qualifiedPowered by nesto
Detached
3
2
~1350 sqft
Contact us about this property
Highlights
Days on market53 days
Estimated valueThis is the price Wahi expects this property to sell for.
The calculation is powered by our Instant Home Value Estimate, which uses current market and property price trends to estimate your home’s value with a 90% accuracy rate.Not available
Price/Sqft$410/sqft
Monthly cost
Open Calculator
Description
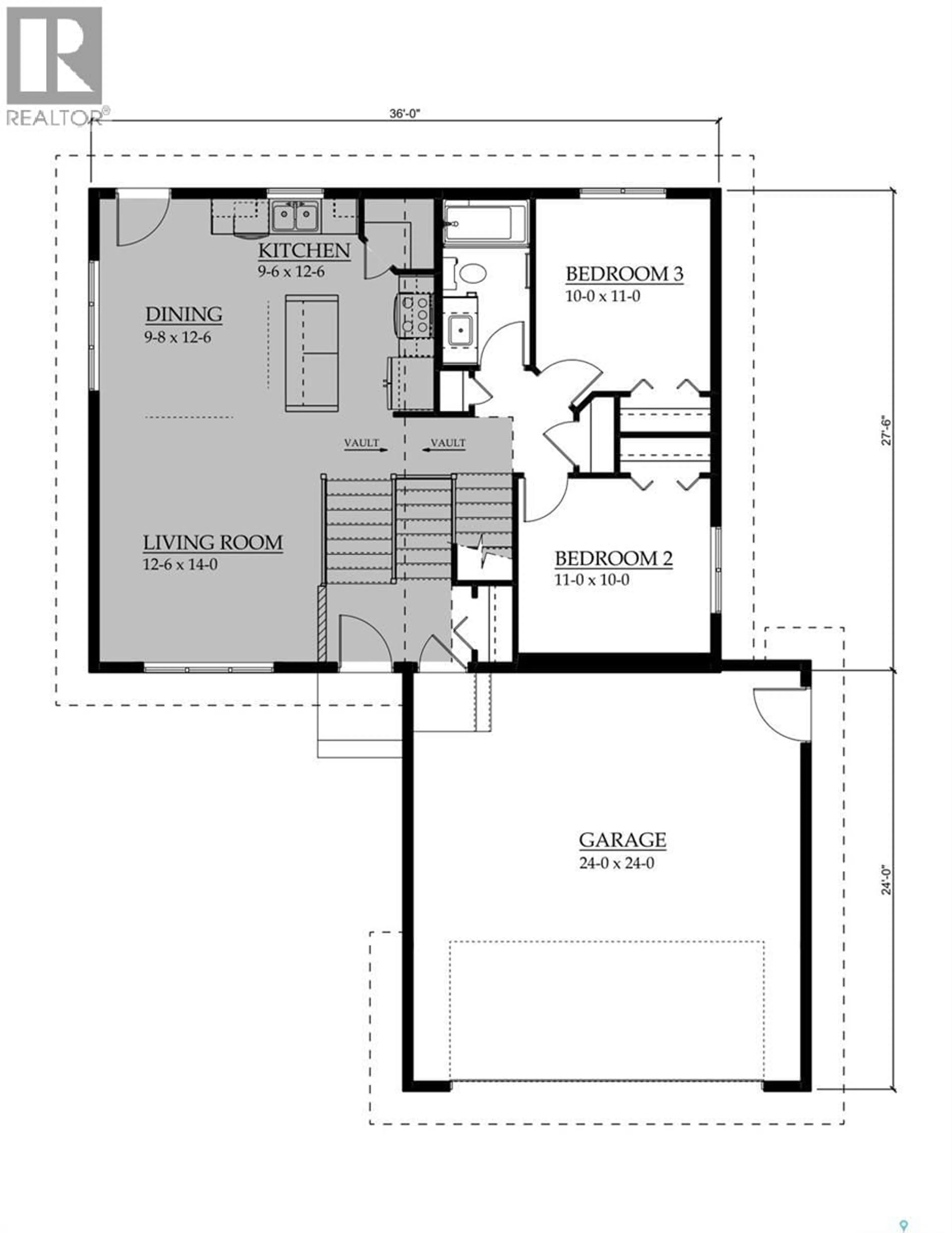
Features and Amenities: -1350 sq. ft Bilevel Two Storey -3 Bedrooms and 2 Bathroom -Kitchen with Island w/ extended ledge -Soft Close Cabinetry Throughout -LED Light Bulbs Throughout -High-Efficiency Furnace and Power Vented Hot Water Heater -HRV Unit -10 Year Saskatchewan New Home Warranty -GST and PST included in purchase price. GST and PST rebate back to builder. (id:39198)
Property Details
StyleHouse
View-
Age of property2025
SqFt~1350 SqFt
Lot Size-
Parking Spaces-
MLS ®NumberSK031198
Community NameWarman
Data SourceCREA
Listing byBoyes Group Realty Inc.
Interior
Features
Heating: Forced air, Natural gas
Basement: Unfinished, Full
Second level Floor
4pc Bathroom
Primary Bedroom
14 x 12.6Property History
Mar 25, 2026
ListedActive
$553,600
53 days on market
4Listing by crea®
4Property listed by Boyes Group Realty Inc., Brokerage

Interested in this property?Get in touch to get the inside scoop.



