1 day on Market
709 BALLESTEROS CRESCENT, Warman, Saskatchewan S0K4S0
Detached
3
2
~1335 sqft
$599,200
Get pre-qualifiedPowered by nesto
Detached
3
2
~1335 sqft
Contact us about this property
Highlights
Days on market1 day
Estimated valueThis is the price Wahi expects this property to sell for.
The calculation is powered by our Instant Home Value Estimate, which uses current market and property price trends to estimate your home’s value with a 90% accuracy rate.Not available
Price/Sqft$448/sqft
Monthly cost
Open Calculator
Description
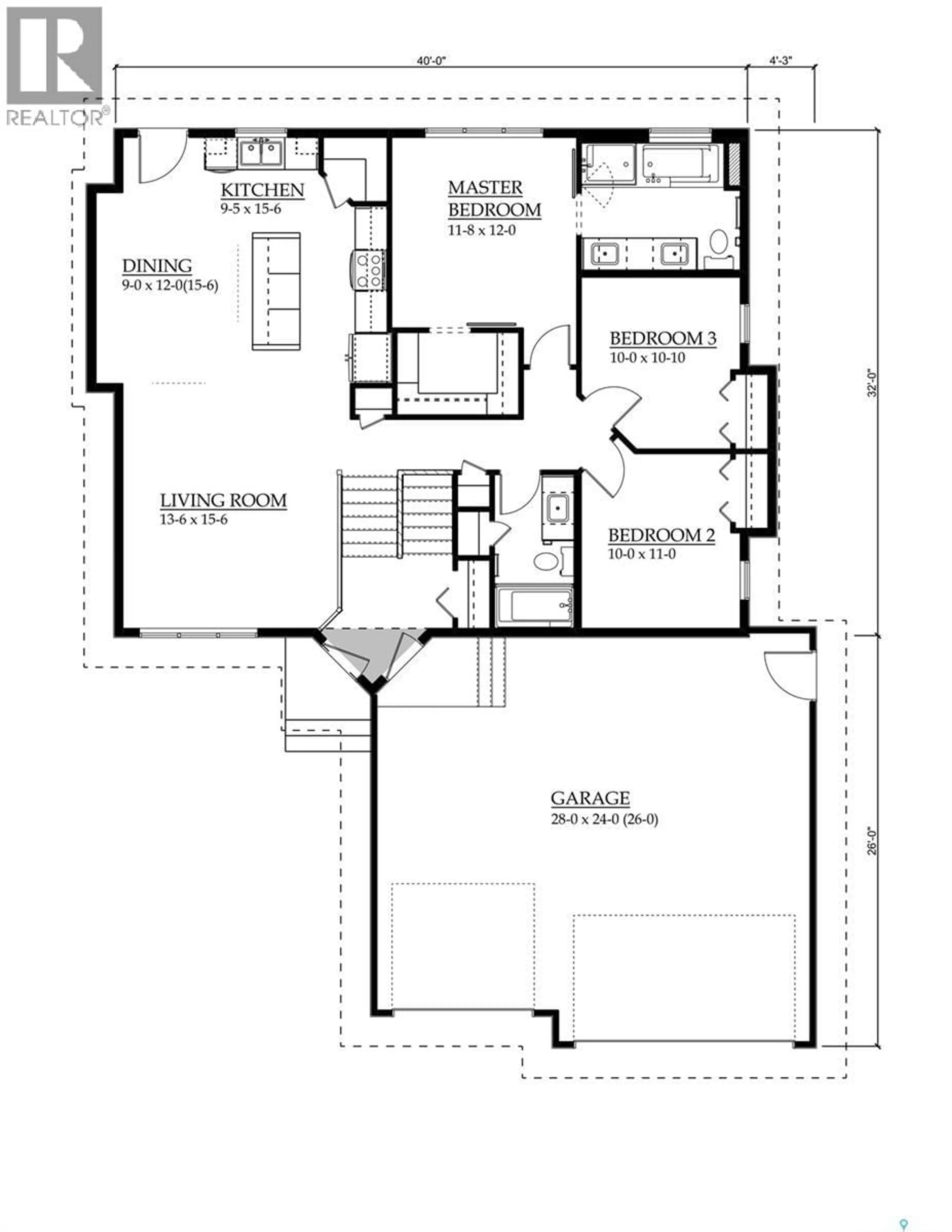
Features & Amenities: -1335 sq. Bi-Level -3 Bedrooms and 2 Bathroom -3 Car Garage -Kitchen with pantry and Island -Soft Close Cabinetry Throughout -LED Light Bulbs Throughout -High-Efficiency Furnace and Power Vented Hot Water Heater -HRV Unit -10 Year Saskatchewan New Home Warranty -GST and PST included in purchase price. GST and PST rebate back to builder. (id:39198)
Property Details
StyleHouse
View-
Age of property2025
SqFt~1335 SqFt
Lot Size-
Parking Spaces-
MLS ®NumberSK031195
Community NameWarman
Data SourceCREA
Listing byBoyes Group Realty Inc.
Interior
Features
Heating: Forced air, Natural gas
Basement: Unfinished, Full
Main level Floor
Foyer
Living room
15.6 x 13.6Dining room
12 x 9Kitchen
15.6 x 9.5Property History
Mar 25, 2026
ListedActive
$599,200
1 day on market
3Listing by crea®
3Property listed by Boyes Group Realty Inc., Brokerage

Interested in this property?Get in touch to get the inside scoop.



