811 KENSINGTON BOULEVARD, Saskatoon, Saskatchewan S7L6H1
Contact us about this property
Highlights
Estimated valueThis is the price Wahi expects this property to sell for.
The calculation is powered by our Instant Home Value Estimate, which uses current market and property price trends to estimate your home’s value with a 90% accuracy rate.Not available
Price/Sqft$363/sqft
Monthly cost
Open Calculator
Description
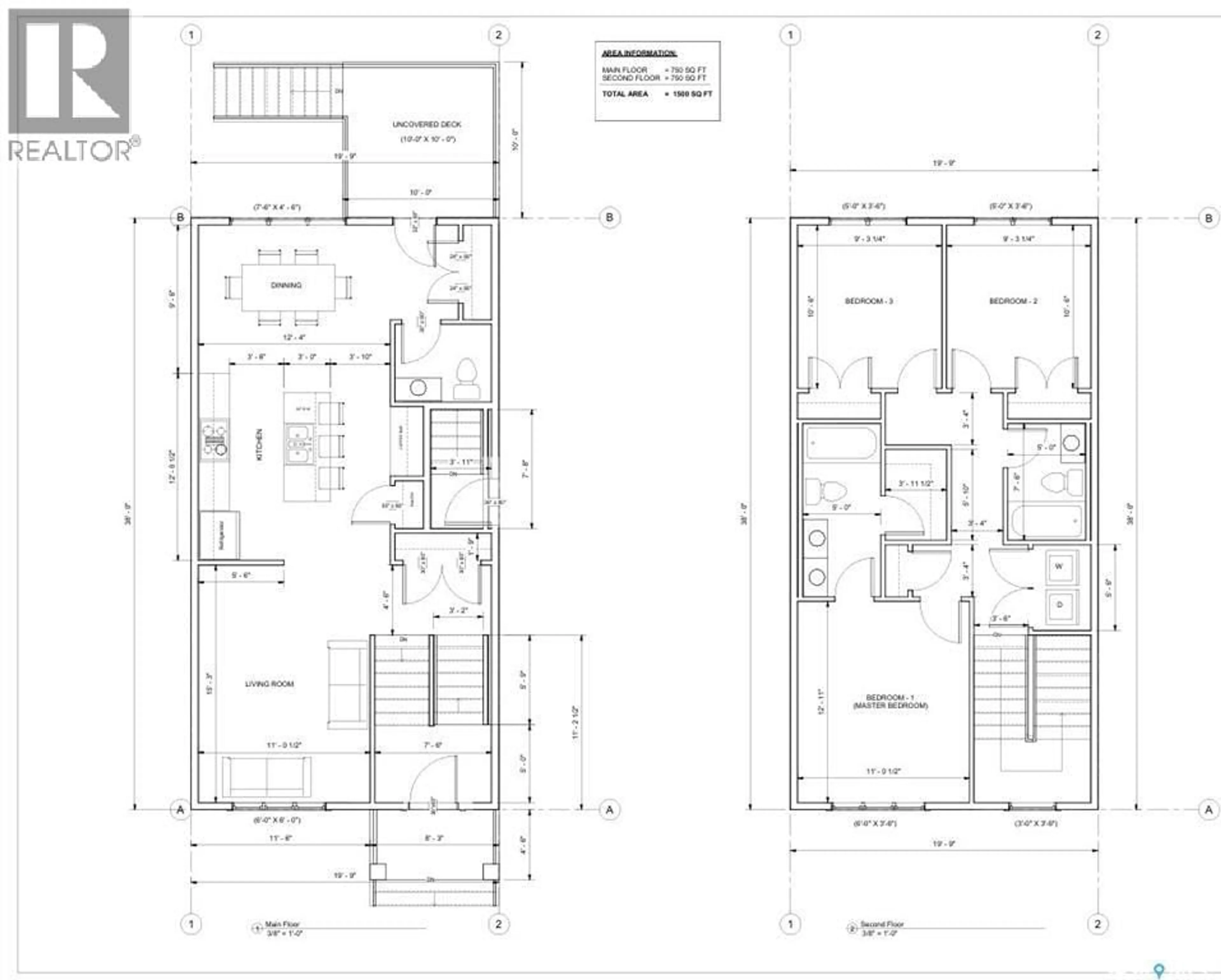
Welcome to this beautifully designed 1,500 sq. ft. two-storey home featuring a modern layout and thoughtful details throughout. The main floor offers a welcoming entry landing, a convenient two-piece bath, spacious living and dining areas, and a bright kitchen with direct access to the deck—perfect for entertaining. Upstairs, the primary bedroom boasts a 4 piece ensuite and walk-in closet, complemented by two additional bedrooms, a four-piece bath, and the convenience of second-floor laundry. The basement includes a fully self-contained two-bedroom legal suite, ideal for extended family or rental income. A detached double-car garage completes this exceptional property. photos are 3D rendering , actual exterior may be different in color texture, style and material. Measurement taken from blue prints, buyers and buyers agent to verify the measurements. (id:39198)
Property Details
Interior
Features
Main level Floor
Living room
15.3 x 11Kitchen
8.6 x 12Dining room
9.6 x 12.42pc Bathroom
Property History
3



