706 NAZARALI UNION, Saskatoon, Saskatchewan S7V1X4
Contact us about this property
Highlights
Estimated valueThis is the price Wahi expects this property to sell for.
The calculation is powered by our Instant Home Value Estimate, which uses current market and property price trends to estimate your home’s value with a 90% accuracy rate.Not available
Price/Sqft$363/sqft
Monthly cost
Open Calculator
Description
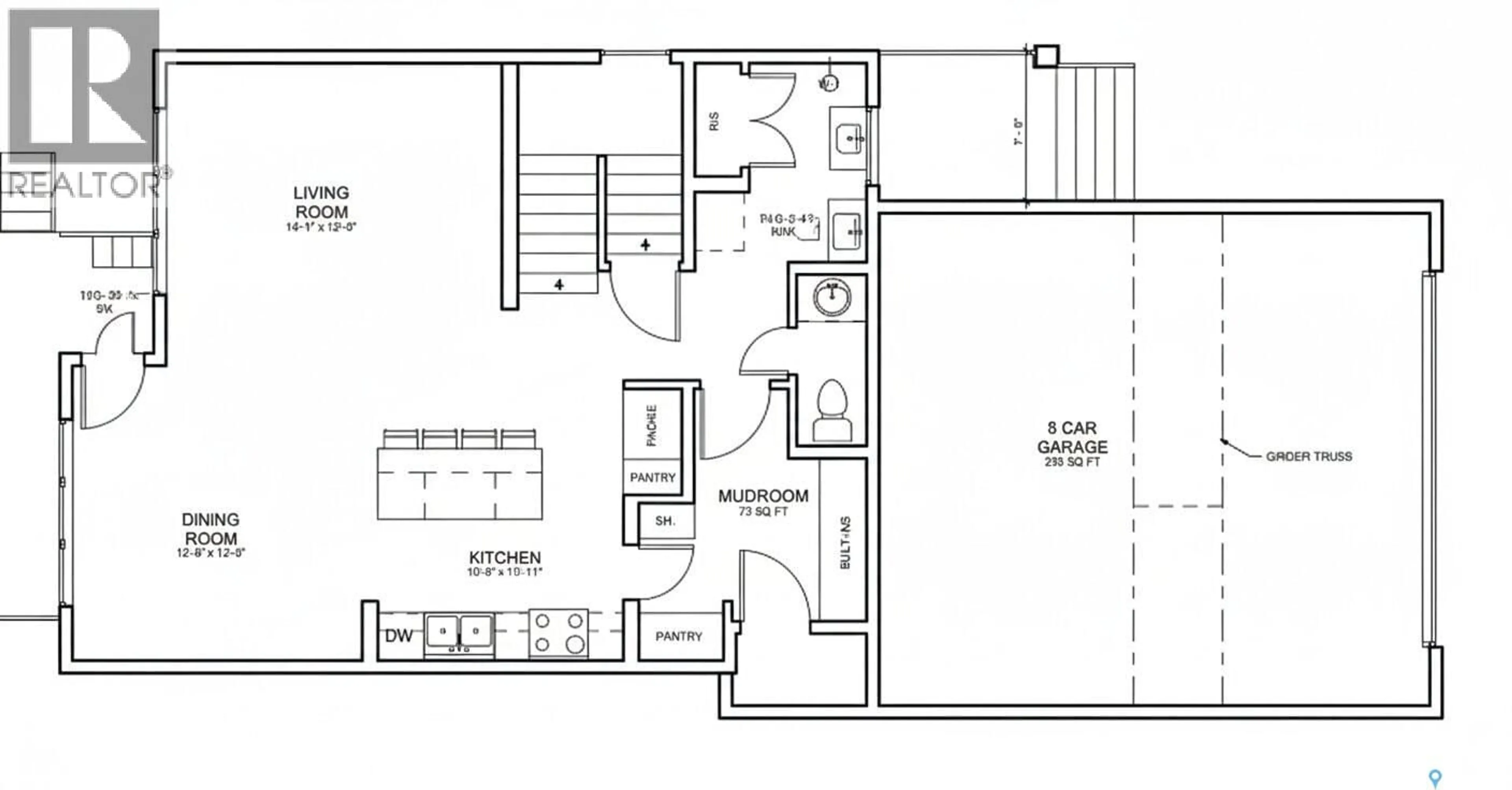
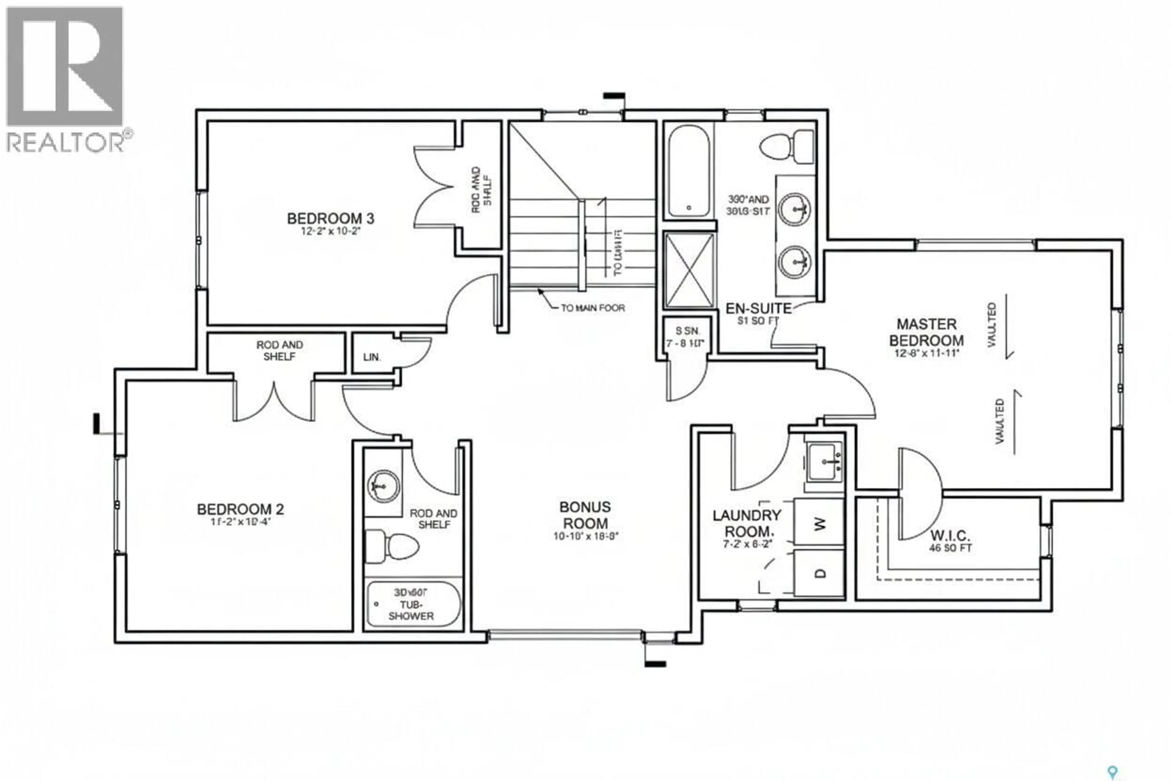
Welcome to this stunning new build in the heart of Brighton offering 1,914 sqft of thoughtfully designed living space. The main floor features a functional and stylish layout with a beautiful kitchen complete with a large island that comfortably seats four, a walk-through pantry, stainless steel appliances and seamless flow into the dining and living areas, perfect for everyday living and entertaining. Large windows throughout the living room and dining room flood the space with natural light, creating a bright and inviting atmosphere. Upstairs, you’ll find three generously sized bedrooms including a spacious primary retreat featuring a 5-piece ensuite and walk-in closet. The second level also offers a versatile bonus room, convenient laundry room, and an additional 4-piece bathroom, ideal for growing families. This home is finished with eye-catching curb appeal and comes complete with front driveway and sod, making it truly move-in ready. Take advantage of this incredible presale opportunity and secure your home in one of Saskatoon’s most sought-after neighbourhoods. Contact your favourite agent today! (id:39198)
Property Details
Interior
Features
Second level Floor
Primary Bedroom
11.11 x 12.84pc Bathroom
5pc Bathroom
Laundry room
6.2 x 7.2Property History
3



