638 PEPPER BEND, Saskatoon, Saskatchewan S7V1T1
Contact us about this property
Highlights
Estimated valueThis is the price Wahi expects this property to sell for.
The calculation is powered by our Instant Home Value Estimate, which uses current market and property price trends to estimate your home’s value with a 90% accuracy rate.Not available
Price/Sqft$530/sqft
Monthly cost
Open Calculator
Description
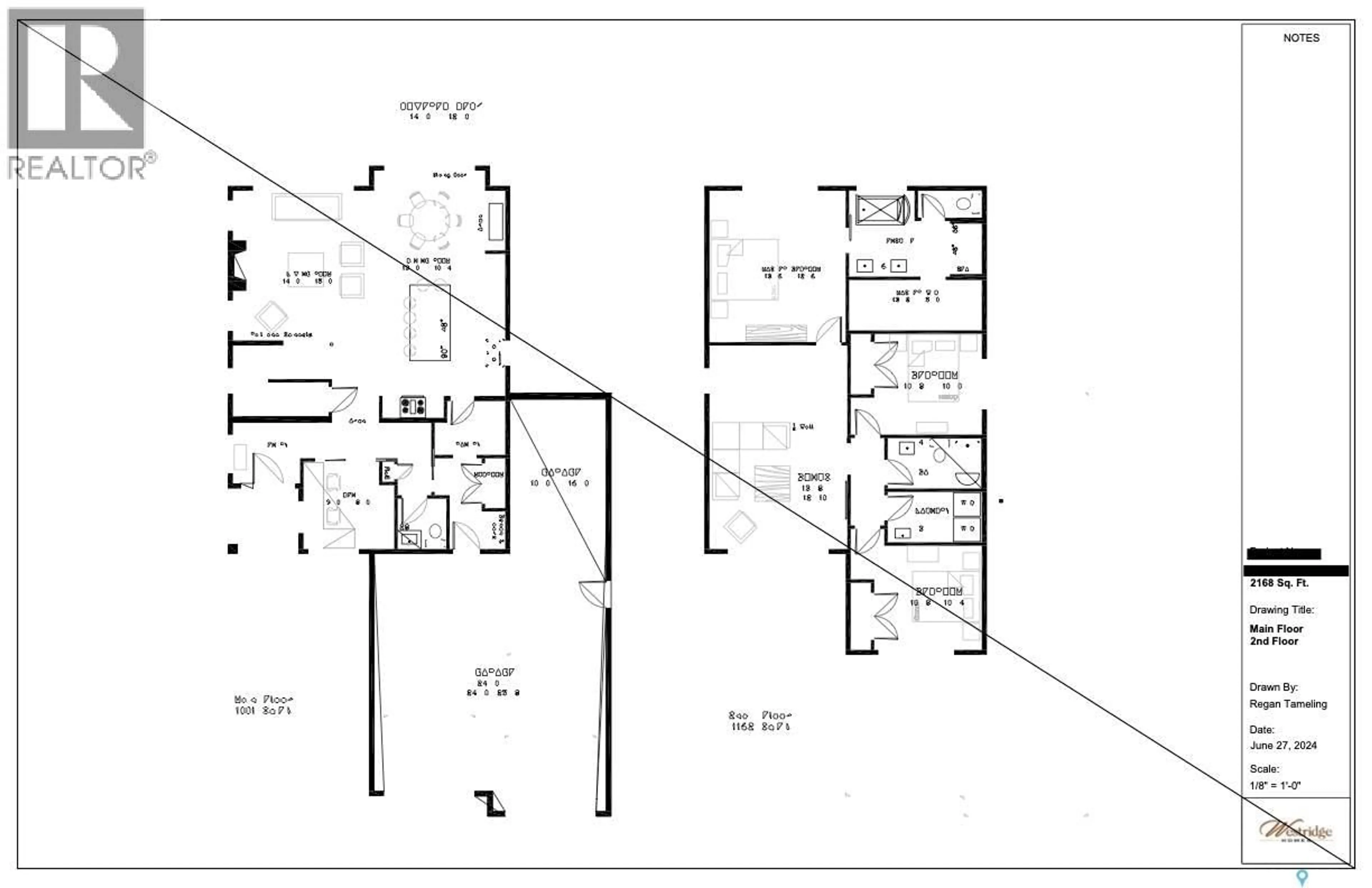
Brand new custom-build by Westridge Homes, this carefully designed property sits on a generous southwest-facing lot in Brighton, backing onto green space for sunset views and extra privacy. The walking path beyond the backyard leads to a gathering hub with ping pong tables and space to connect. The main floor offers a cozy front den/office with pocket doors, stylish wallpaper and built-in filing cabinets. A spacious mudroom with custom cabinetry allows for smart storage, keeping the main floor clutter-free. There is a bright walk-through pantry with a coffee bar that opens into a bright, open kitchen featuring a continuous granite backsplash. oversized island and sleek range hood. The dining area extends out to a covered deck with a privacy wall and gas bbq hook up while the living room is anchored by a stone-wrapped gas fireplace for cozy evenings. Upstairs, you’ll find a large bonus room and three spacious bedrooms, including a spacious five piece master en-suite. The fully developed basement adds a family room, fourth bedroom, three-piece bathroom, and a dedicated gym (could be a 5th bedroom) with a built-in space ready for a future sauna. The oversized (760 sq ft!) garage has epoxy flooring, roughed in plumbing and sewer, a dehumidifier, drain and includes a tandem third bay. There is also an extended concrete pad that runs along the west side of the home for a shed and extra storage. Outside, the yard is set up for outdoor living with electrical for a hot tub hook-up and a gas line for your BBQ, all within a connected, amenity-rich Brighton community known for its parks and family-style living. (id:39198)
Property Details
Interior
Features
Main level Floor
Den
8 x 92pc Bathroom
Kitchen
20 x 13Dining room
10'4 x 13Property History
43





