487 TRAEGER CLOSE, Saskatoon, Saskatchewan S7V1Z5
Contact us about this property
Highlights
Estimated valueThis is the price Wahi expects this property to sell for.
The calculation is powered by our Instant Home Value Estimate, which uses current market and property price trends to estimate your home’s value with a 90% accuracy rate.Not available
Price/Sqft$375/sqft
Monthly cost
Open Calculator
Description
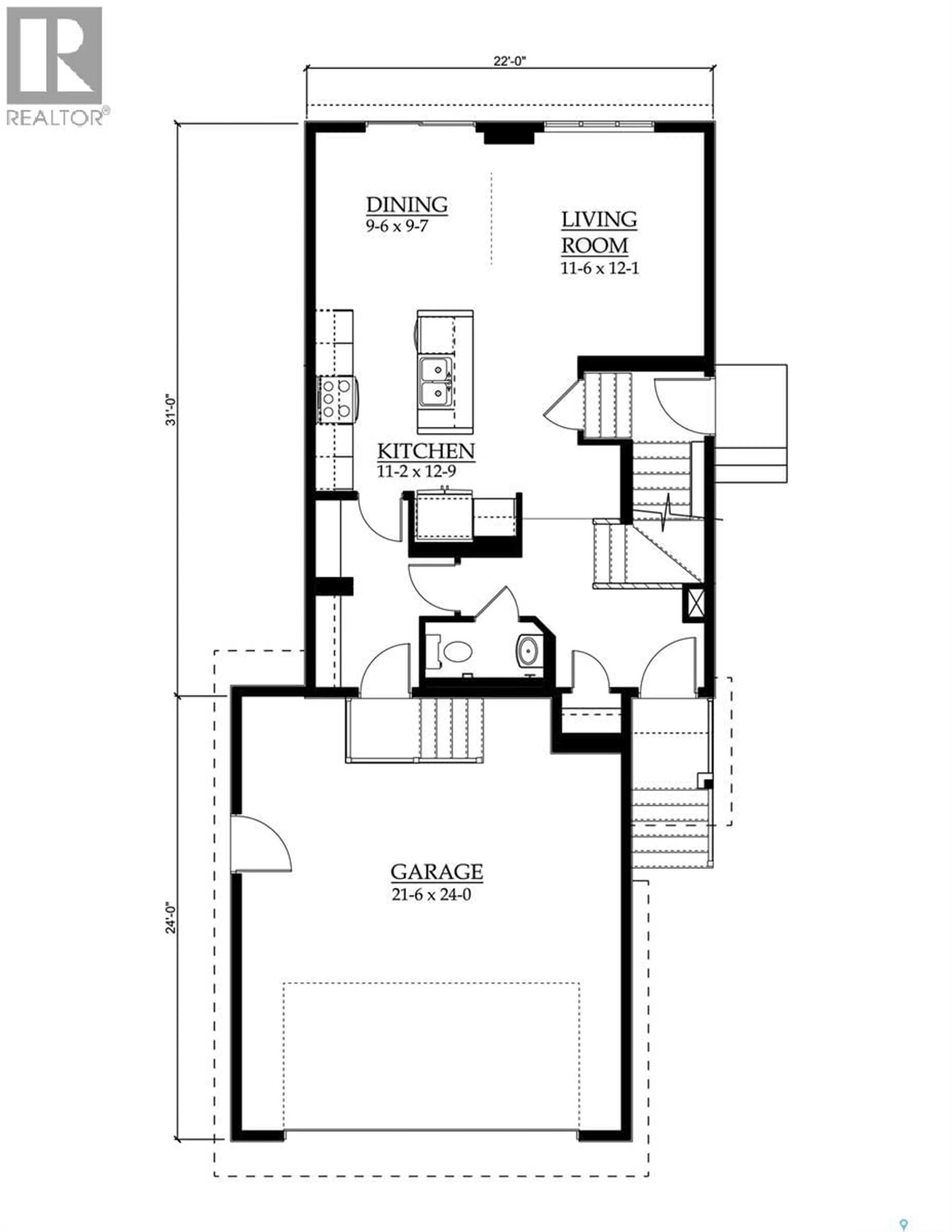
Features & Amenities: -LOCATED IN BRIGHTON RANCH! -1571 sq. ft Two Storey -LEGAL SUITE READY -3 Bedrooms plus bonus and 2.5 Bathroom -Laundry on 2nd Floor -Kitchen with Island w/ extended ledge -Quartz throughout c/w tile backsplash in kitchen -Laminate Living Room, Dining Room, and Kitchen -Soft Close Cabinetry Throughout -LED Light Bulbs Throughout -High-Efficiency Furnace and Power Vented Hot Water Heater -HRV Unit -10 Year Saskatchewan New Home Warranty -GST and PST included in purchase price. GST and PST rebate back to builder -Front Driveway Included -Front Landscape Included Call to view! (front picture is of a similar build) (id:39198)
Property Details
Interior
Features
Main level Floor
Foyer
Kitchen
12.9 x 11.2Dining room
12.1 x 11.6Kitchen
12.9 x 11.2Property History
4



