828 HENRY DAYDAY ROAD, Saskatoon, Saskatchewan S7W1E4
Contact us about this property
Highlights
Estimated valueThis is the price Wahi expects this property to sell for.
The calculation is powered by our Instant Home Value Estimate, which uses current market and property price trends to estimate your home’s value with a 90% accuracy rate.Not available
Price/Sqft$418/sqft
Monthly cost
Open Calculator
Description
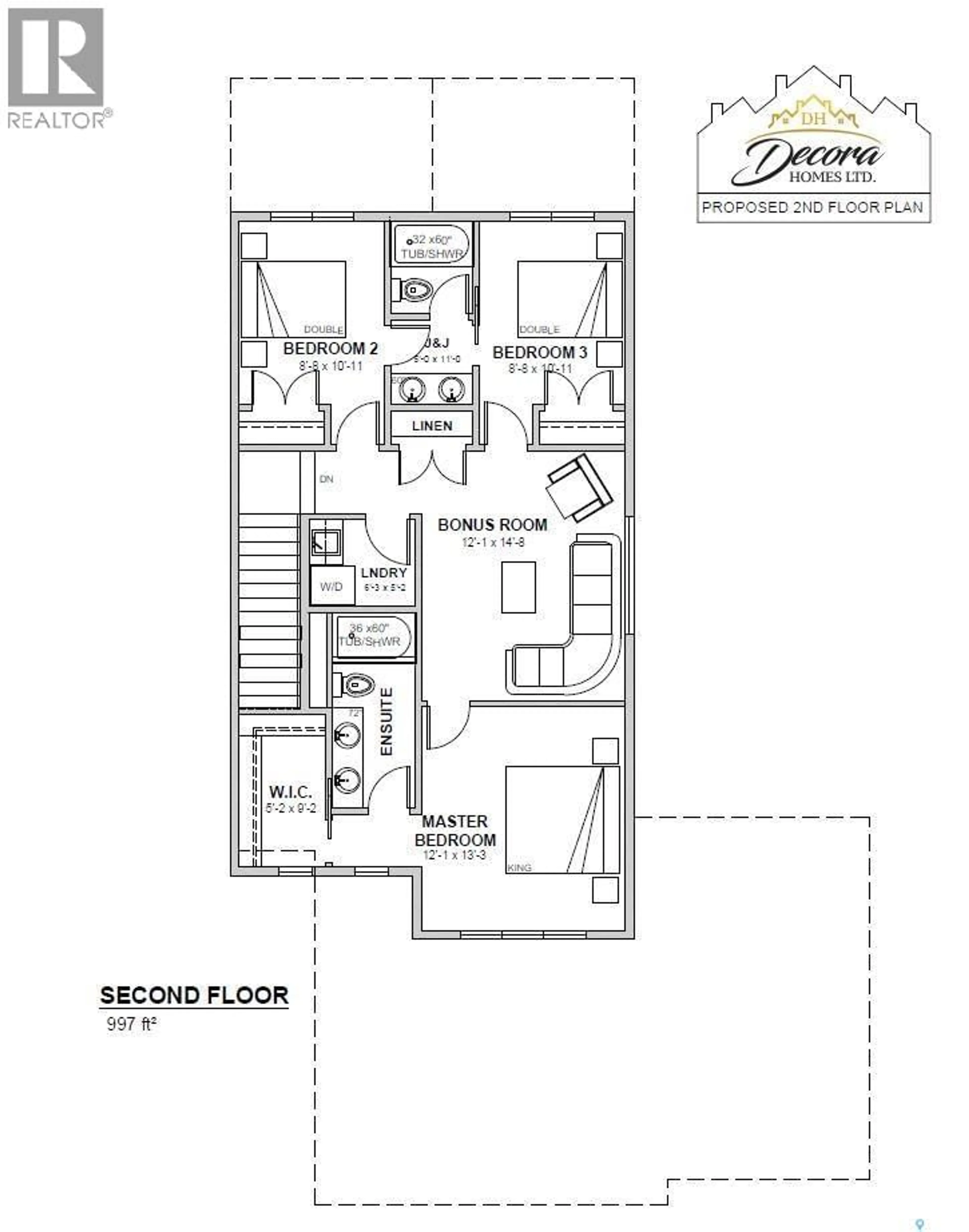
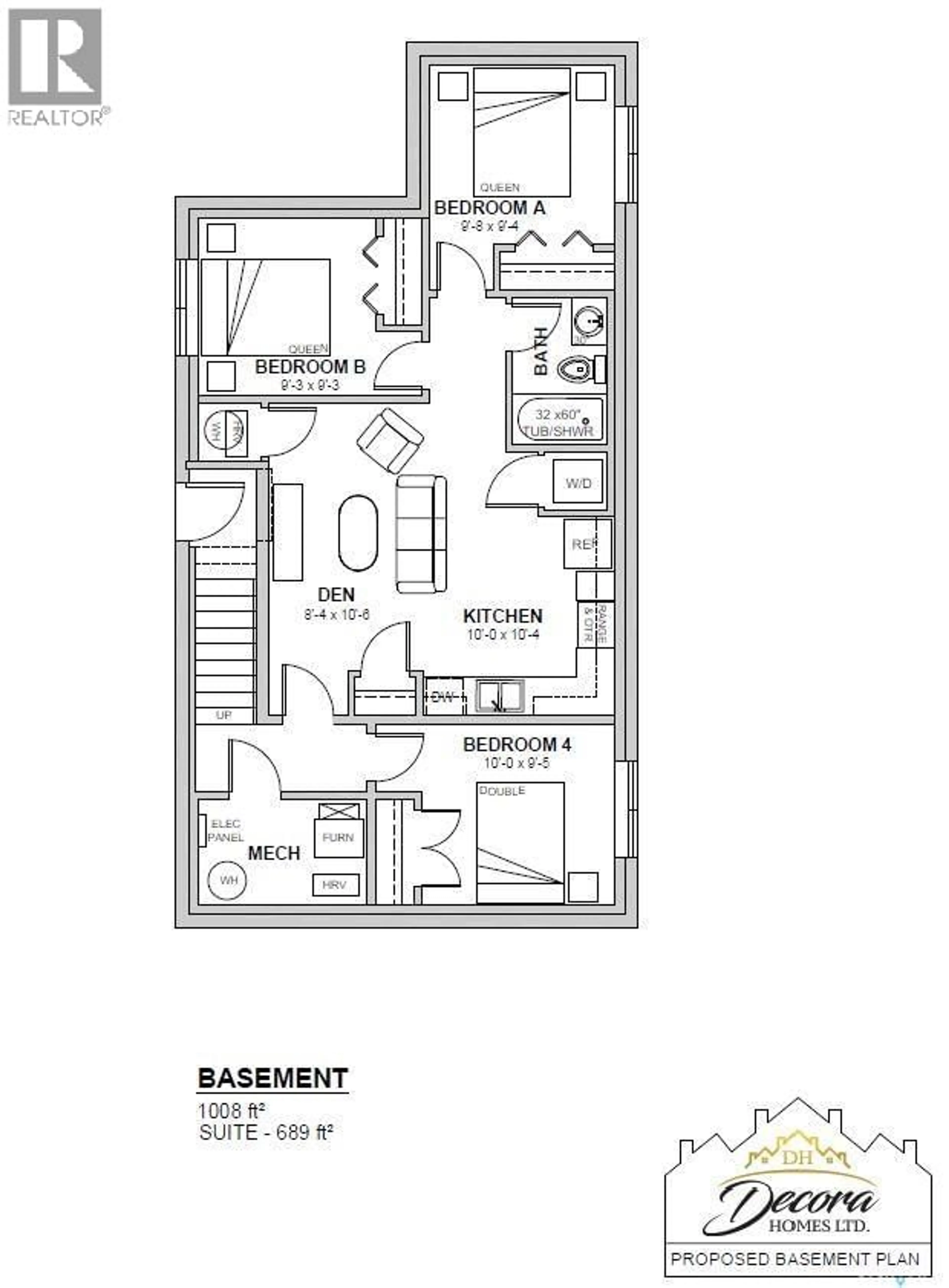
Welcome to this new home by Decora Homes, offering a well-planned layout with excellent income potential through a legal 2-bedroom secondary suite, backing onto green space for added privacy. The main floor features an open-concept living, dining, and kitchen area with a pantry; and providing direct access to a covered deck. This level also includes a den, mudroom, and welcoming foyer, designed for everyday functionality. The second floor offers a primary bedroom with a walk-in closet and 5-piece ensuite, along with two additional bedrooms connected by a Jack-and-Jill bathroom. A bonus room and upper-level laundry complete this level. The basement includes a legal 2-bedroom secondary suite with a full kitchen, living area, 4-piece bathroom, and in-suite laundry. A separate fourth bedroom is reserved for the main unit’s use. Additional features include a triple attached garage, concrete triple driveway, stainless steel appliances for both the main residence and suite, and front landscaping. GST & PST included with rebates to the builder. Covered under the Progressive Home Warranty Program. Plans, prices, and specifications are subject to change. Photos for reference only. (id:39198)
Property Details
Interior
Features
Main level Floor
Living room
13.3 x 12Dining room
13.6 x 10.11Kitchen
12.2 x 13Foyer
8.8 x 5.7Property History
6





