Home with vinyl exterior material, street for 346 STEHWIEN STREET, Saskatoon Saskatchewan S7W1M9
10 hours on Market

346 STEHWIEN STREET, Saskatoon, Saskatchewan S7W1M9

Detached
3
3
~1515 sqft
$507,900
Get pre-qualifiedPowered by nesto
Detached
3
3
~1515 sqft

Contact us about this property

Call

Highlights

Property Estimate

Days on market10 hours

Estimated valueNot available

Price/Sqft$335/sqft

Monthly cost

Open Calculator

Description

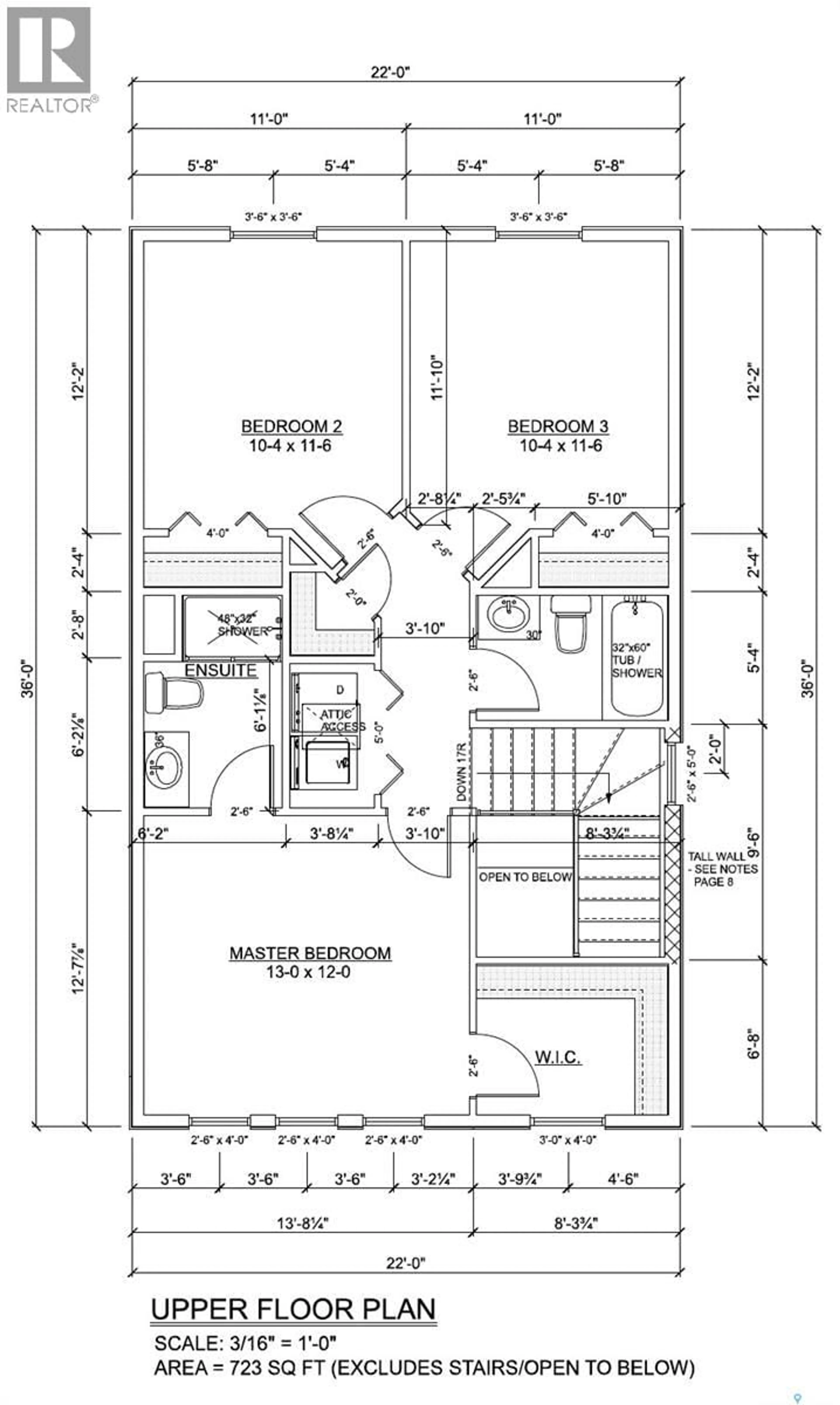
Introducing the impressive 1,515 sq. ft. two-storey Robson model, offering excellent curb appeal with Hardie Board accents and horizontal vinyl siding. Designed for both everyday living and entertaining, the main floor features a bright open-concept layout. The kitchen is well-appointed with quartz countertops, ample cabinetry, and a built-in island with breakfast bar seating. The second level offers three bedrooms, a full bathroom, and a spacious primary suite complete with a walk-in closet and 3-piece ensuite. Luxury vinyl plank flooring enhances the main living areas, providing both durability and modern style. This home includes a separate side entrance and offers the option to add a one-bedroom legal suite, complete with a natural gas fireplace and separate gas and electrical meters—ideal for additional income or extended family living. GST and PST are included in the purchase price. Primary occupancy pricing with applicable rebates to th builder. ADDITIONAL $24,000 OFF PRICE IF FIRST TIME HOME BUYER FOR NEW GST REBATE. Renderings are intended to closely represent final finishes but should be considered artistic interpretations. Appliances and fireplace are not included in the purchase price. (id:39198)


Property Details

StyleHouse
View-
Age of property2026
SqFt~1515 SqFt
Lot Size-
Parking Spaces-
MLS ®NumberSK031505
Community NameAspen Ridge
Data SourceCREA
Listing byeXp Realty

Features

Heating: Forced air, Natural gas
Basement: Unfinished, Full

Main level Floor

Kitchen

17.1 x 12.2

Dining room

9.2 x 10

Living room

16 x 13.2

2pc Bathroom


Property History

Mar 31, 2026
ListedActive
$507,900
10 hours on market
history photo preview6
Listing by crea®
Property listed by eXp Realty, Brokerage
Agent Banner Image
Interested in this property?Get in touch to get the inside scoop.

Population and Demographics

Overview

Total population 1346
Average household income $151,166

Age (%)

0 to 19
32%
20 to 34
26%
35 to 49
25%
50 to 64
12%
65 and plus
5%

Household composition (%)

Single family
75%
Single person
18%
Multi person
6%
Multi family
1%

Mother tongue (%)

English
77%
Mandarin
5%
Punjabi (Panjabi)
4%
Urdu
3%
Others
2%
Arabic
2%
Tagalog (Pilipino, Filipino)
1%
Gujarati
1%

House tenancy (%)

Owners
73%
Renters
27%

What’s nearby?Essentials within 5 km

Local Logic

Transportation Scores

Estimated Budget

Powered by:
The trademarks REALTOR®, REALTORS®, and the REALTOR® logo are controlled by The Canadian Real Estate Association (CREA) and identify real estate professionals who are members of CREA. The trademarks MLS®, Multiple Listing Service® and the associated logos are owned by CREA and identify the quality of services provided by real estate professionals who are members of CREA. Used under license.