11 Chester St, Guelph, Ontario N1H 1K7
Contact us about this property
Highlights
Estimated valueThis is the price Wahi expects this property to sell for.
The calculation is powered by our Instant Home Value Estimate, which uses current market and property price trends to estimate your home’s value with a 90% accuracy rate.Not available
Price/Sqft$314/sqft
Monthly cost
Open Calculator
Description
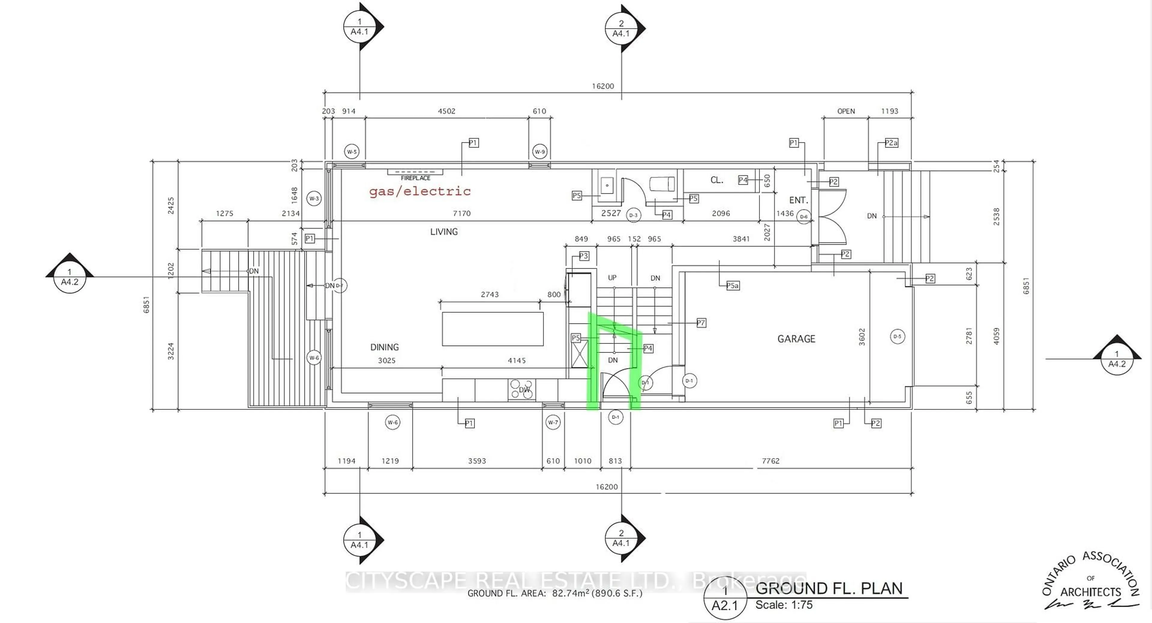
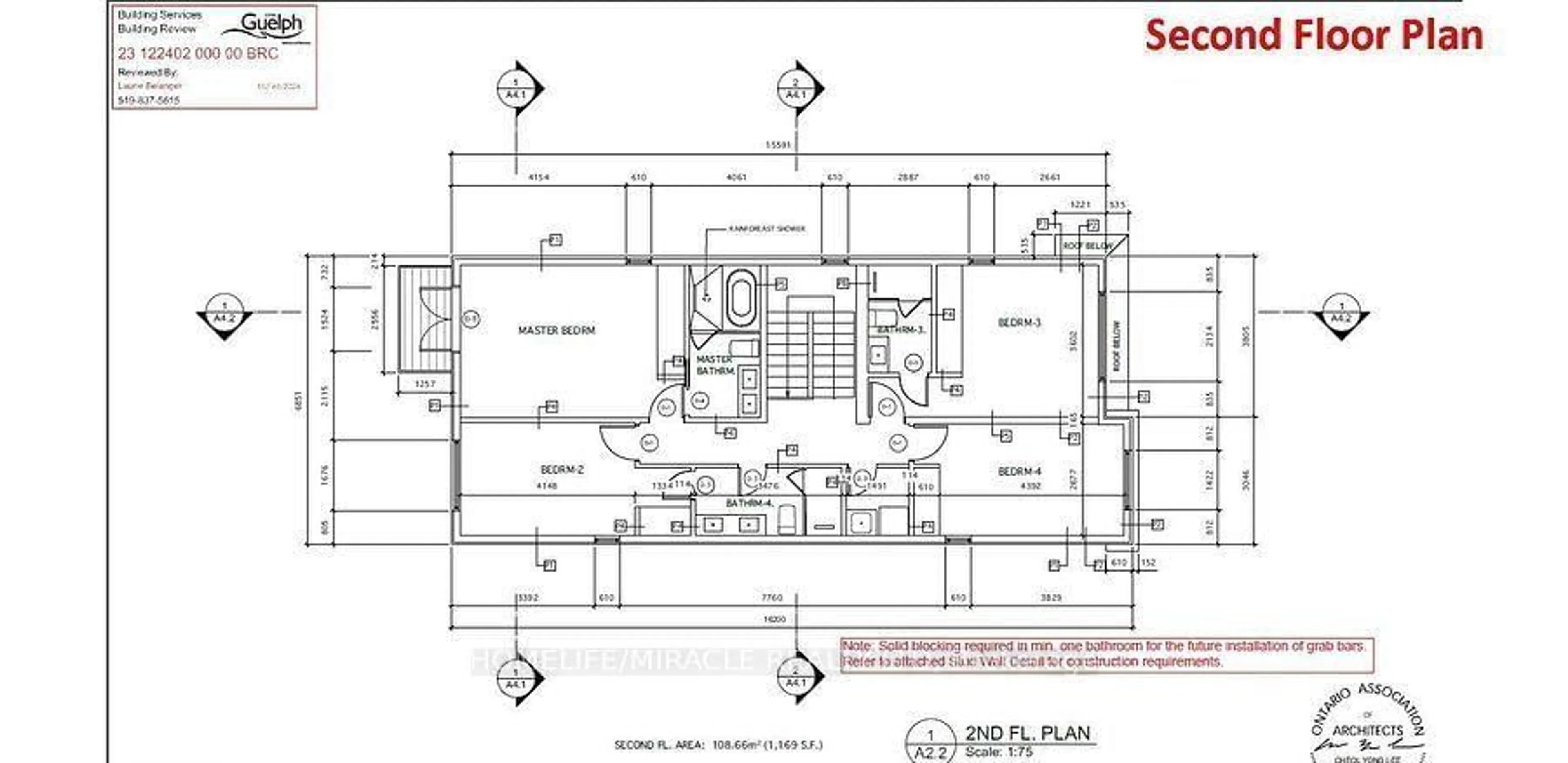
**Prime Duplex Opportunity in Exhibition Park, Guelph**Welcome to 11 Chester St, an exceptional opportunity in the heart of Guelph's highly sought-after Exhibition Park neighbourhood. Ideal for builders, investors, and renovators, this partially completed project offers the chance to customize and add significant value in a prime central location just steps from downtown. Also available is the neighbouring property at 13 Chester St - the seller prefers to sell both together but will consider separate sales.**Flexible Layout & Income Potential**This 2-storey brick and stone duplex is framed for 4 bedrooms and 2 bathrooms above grade. Plans and permits are in place for a 2-bedroom, 2-bathroom legal secondary dwelling unit in the basement, complete with a separate side entrance - offering excellent potential for multi-generational living or rental income. All major services are already connected and development charges have been paid, streamlining the path to completion.**Ready for Your Finishing Touches**With construction already underway, this property is a blank canvas ready for your vision. Complete the build to your specifications and choose your own finishes to maximize value and returns. Being sold as-is, where-is, this is a rare chance to step into a project mid-way in a high-demand neighbourhood.**Desirable Location & Lifestyle**Situated on a 32.5 ft x 90 ft lot with a private driveway and attached garage, offering parking for multiple vehicles. Located steps to Exhibition Park and minutes from Downtown Guelph, with easy access to shops, restaurants, schools, and transit in a mature, established community.A rare opportunity to complete and customize a duplex in one of Guelph's most desirable areas with strong upside potential.
Property Details
Interior
Features
2nd Floor
Primary
0.0 x 0.05 Pc Ensuite
2nd Br
0.0 x 0.03rd Br
0.0 x 0.0Semi Ensuite
Bathroom
0.0 x 0.03 Pc Bath
Exterior
Features
Parking
Garage spaces 1
Garage type Built-In
Other parking spaces 1
Total parking spaces 2
Property History
34















