303 Guy St, Cornwall, Ontario K6H 4V3
Contact us about this property
Highlights
Estimated valueThis is the price Wahi expects this property to sell for.
The calculation is powered by our Instant Home Value Estimate, which uses current market and property price trends to estimate your home’s value with a 90% accuracy rate.Not available
Price/Sqft$226/sqft
Monthly cost
Open Calculator
Description
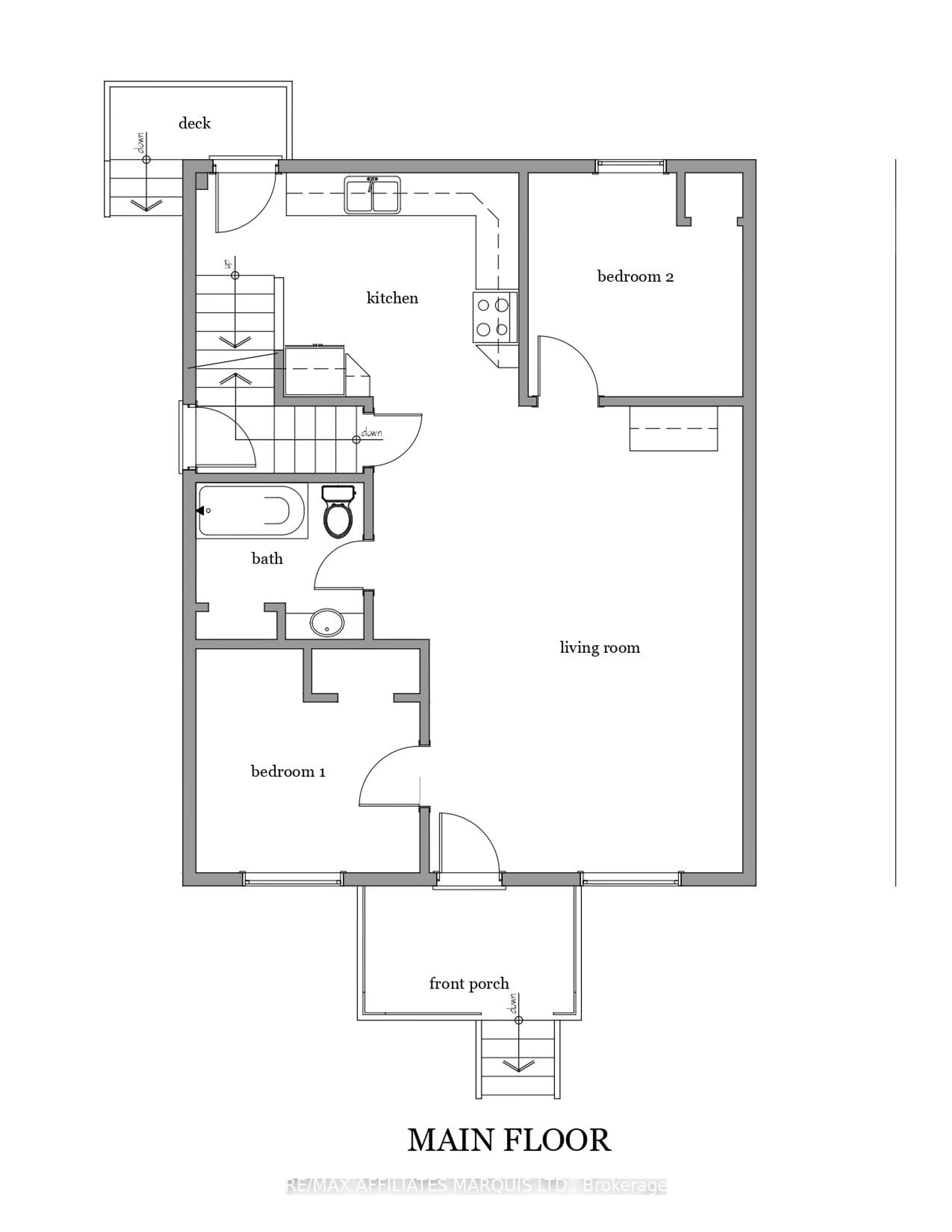
This single family dwelling is CASH FLOWING over $35,000! Invest in this prime income producing property, perfectly situated close to the college. This spacious home features 6 secure bedrooms, each with individual door codes. The main floor offers 2 bedrooms, a common living room, a fully-equipped kitchen and 4-piece bathroom. The second level has 4 additional bedrooms, another 4-piece bathroom, and balcony. Recent renovations include the kitchen, furnace, central air, hot water tank, updated windows, insulation, siding, and roof. Sale includes - 2 fridges, washer, dryer, living room furniture, utensils, cookware, dishes, beds, dressers, and more. 48-hour notice required for showings. Don't miss this excellent investment opportunity! Gross Income: $49,200 (2024 Expenses: $13,436.76) Please note we do not have room dimensions, please refer to floor plan in the photos.
Property Details
Interior
Features
Main Floor
Living
0.0 x 0.0Br
0.0 x 0.0Bathroom
0.0 x 0.02nd Br
0.0 x 0.0Exterior
Features
Parking
Garage spaces -
Garage type -
Total parking spaces 1
Property History
23











