2554 Champlain Rd, Tiny, Ontario L9M 0C3
Contact us about this property
Highlights
Estimated valueThis is the price Wahi expects this property to sell for.
The calculation is powered by our Instant Home Value Estimate, which uses current market and property price trends to estimate your home’s value with a 90% accuracy rate.Not available
Price/Sqft$384/sqft
Monthly cost
Open Calculator
Description
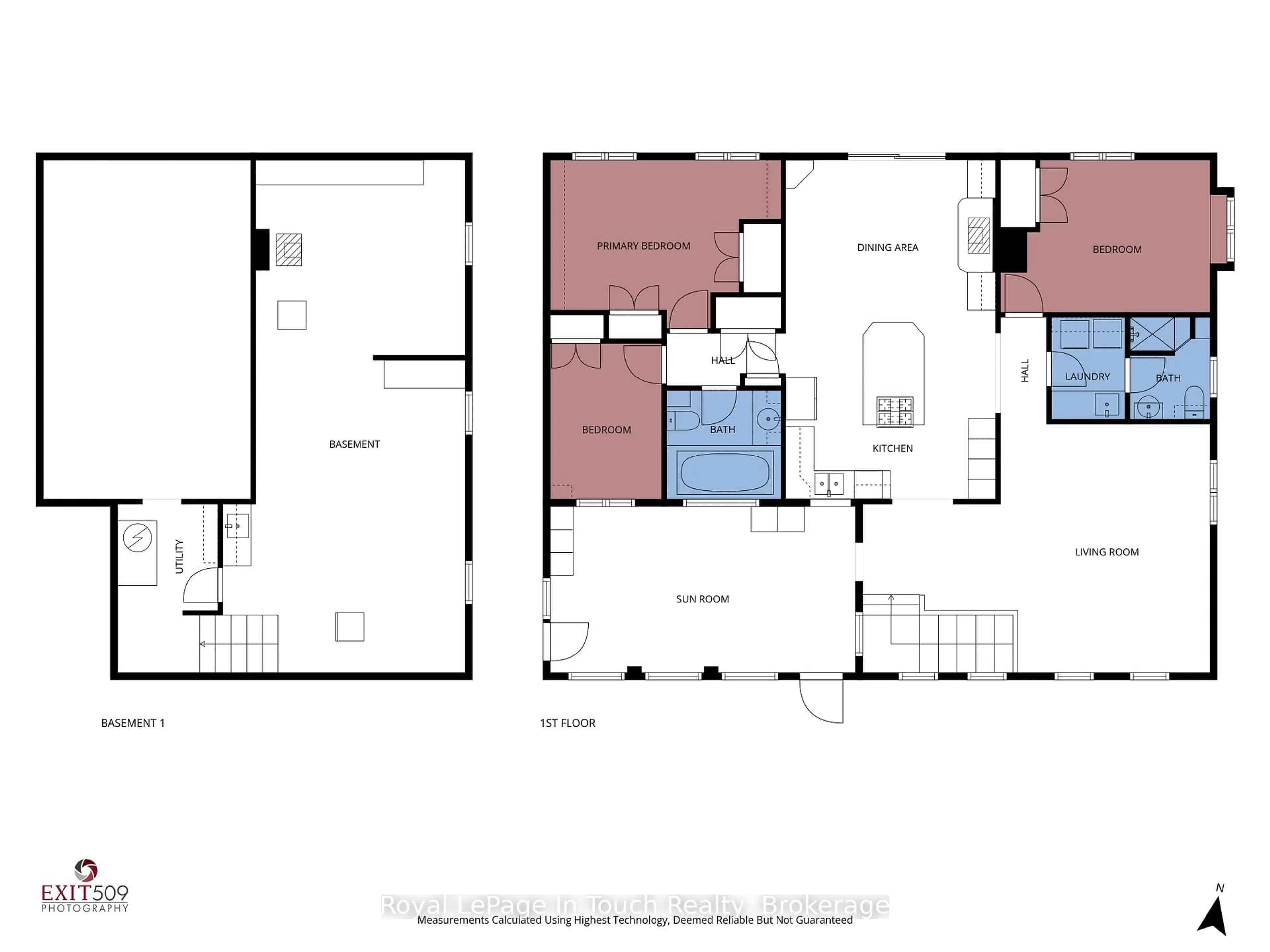
Imagine living just steps from the sandy shoreline of Georgian Bay at Kettle's Beach, with the protected forest and trails of Awenda Provincial Park as your backyard neighbour. This is a rare opportunity to enjoy both water & wilderness from one ideal location. This well-maintained 3-bedroom, 2-bath home offers a comfortable, functional layout suited to year-round living or weekend escapes. Hardwood and pine floors bring warmth and character, while the updated kitchen features a spacious island that naturally becomes the heart of the home. The adjoining sitting/dining area, complete with a cozy wood stove, creates the perfect space to gather after a day outdoors. A bright sunroom provides additional living space, perfect for morning coffee, afternoon reading, or quiet evenings. The main floor laundry adds everyday convenience. The furnace and central air were updated in 2019, enhancing year-round comfort and efficiency. A durable steel roof adds further long-term value and peace of mind. The large, insulated workshop with 60-amp hydro offers exceptional flexibility for hobbies, projects, storage, or a dedicated workspace. Whether you're searching for a family home close to nature or a cottage retreat to enjoy in every season, this property offers the best of both in one of Tiny Township's desirable waterfront communities.
Property Details
Interior
Features
Main Floor
Kitchen
4.56 x 3.96Dining
4.46 x 3.25Wood Stove
Living
7.38 x 5.27Sunroom
6.47 x 3.53Exterior
Features
Parking
Garage spaces 2
Garage type Detached
Other parking spaces 4
Total parking spaces 6
Property History
35








