12 Greenwood Dr, Essa, Ontario L3W 0N5
Contact us about this property
Highlights
Estimated valueThis is the price Wahi expects this property to sell for.
The calculation is powered by our Instant Home Value Estimate, which uses current market and property price trends to estimate your home’s value with a 90% accuracy rate.Not available
Price/Sqft$364/sqft
Monthly cost
Open Calculator
Description
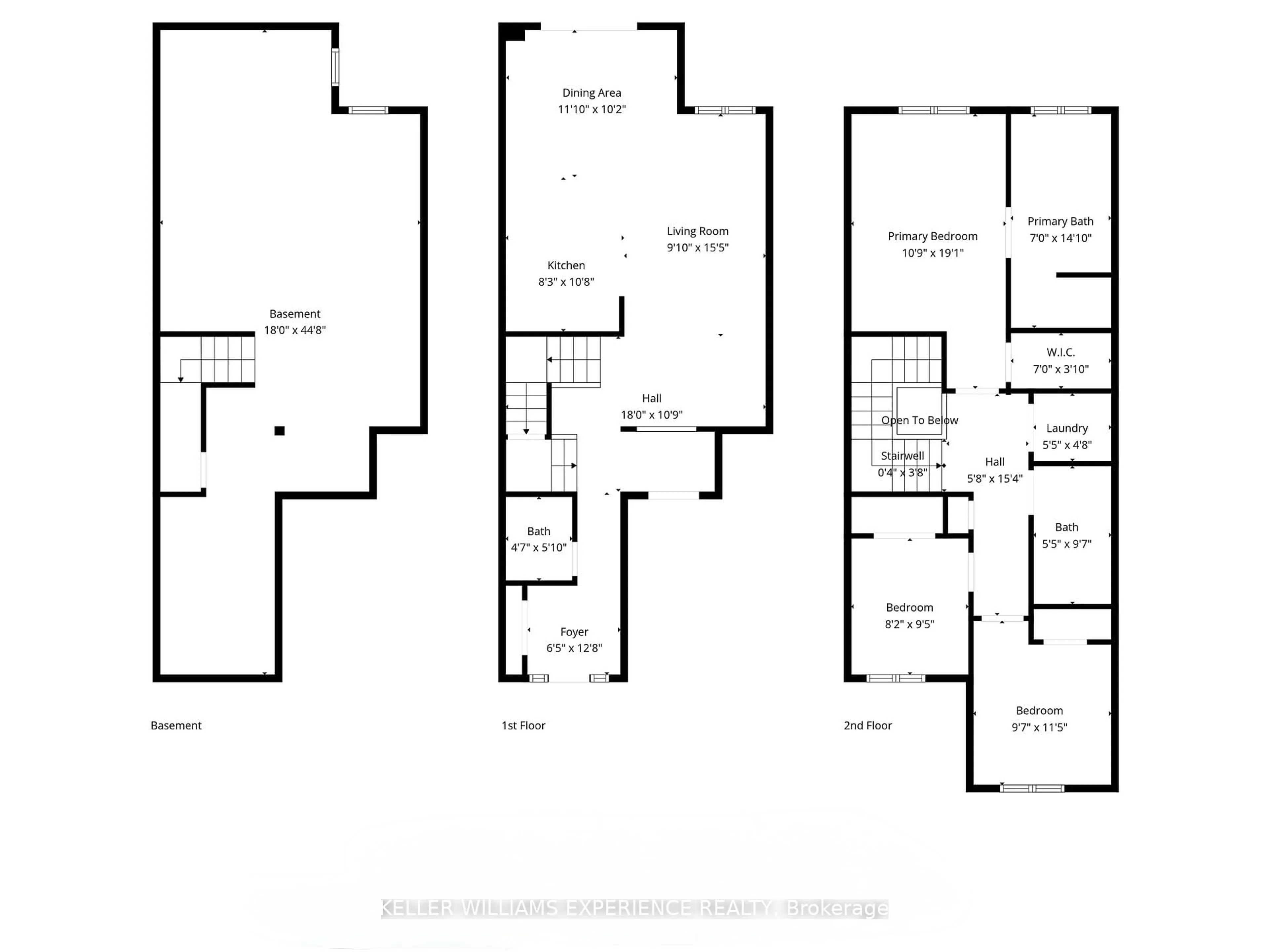
WELCOME TO 12 GREENWOOD DR, ANGUS. This stunning, move-in ready townhome offers over 1,500 sq ft of bright, functional living space. Perfectly situated for an easy commute to Base Borden, Alliston, and Barrie. MAIN LEVEL. The open-concept floor plan features soaring 9 ft ceilings and is flooded with natural light. This level boasts beautiful flooring, updated light fixtures (2026), and a seamless inside entry from the garage. The modern eat-in kitchen is designed for everyday living, offering ample cabinetry, generous counter space, and a walkout to the private deck and yard. The property is complete with inground sprinklers for effortless maintenance. UPPER LEVEL. The second floor features the highly sought-after convenience of 2nd-floor laundry. The spacious primary suite serves as a private retreat with a large walk-in closet and a full ensuite bathroom featuring a soaker tub and separate shower. Two additional well-sized bedrooms offer great flexibility for family, guests, or a dedicated home office. LOWER LEVEL AND EXTRAS. The full, unspoiled basement includes a 100-amp electrical panel and offers endless potential for a home gym or extra living space. The HRV, furnace and A/C system was professionally cleaned and serviced at the start of April 2026. Ideally located within walking distance to local parks and schools. This is turn-key living in a prime Simcoe County location.
Property Details
Interior
Features
Main Floor
Living
6.6 x 3.05Combined W/Dining
Kitchen
3.35 x 2.46Breakfast
3.35 x 3.05Exterior
Features
Parking
Garage spaces 1
Garage type Built-In
Other parking spaces 3
Total parking spaces 4
Property History
36






