60 Baynes Way #8, Bradford West Gwillimbury, Ontario L3Z 4M3
Contact us about this property
Highlights
Estimated valueThis is the price Wahi expects this property to sell for.
The calculation is powered by our Instant Home Value Estimate, which uses current market and property price trends to estimate your home’s value with a 90% accuracy rate.Not available
Price/Sqft$340/sqft
Monthly cost
Open Calculator
Description
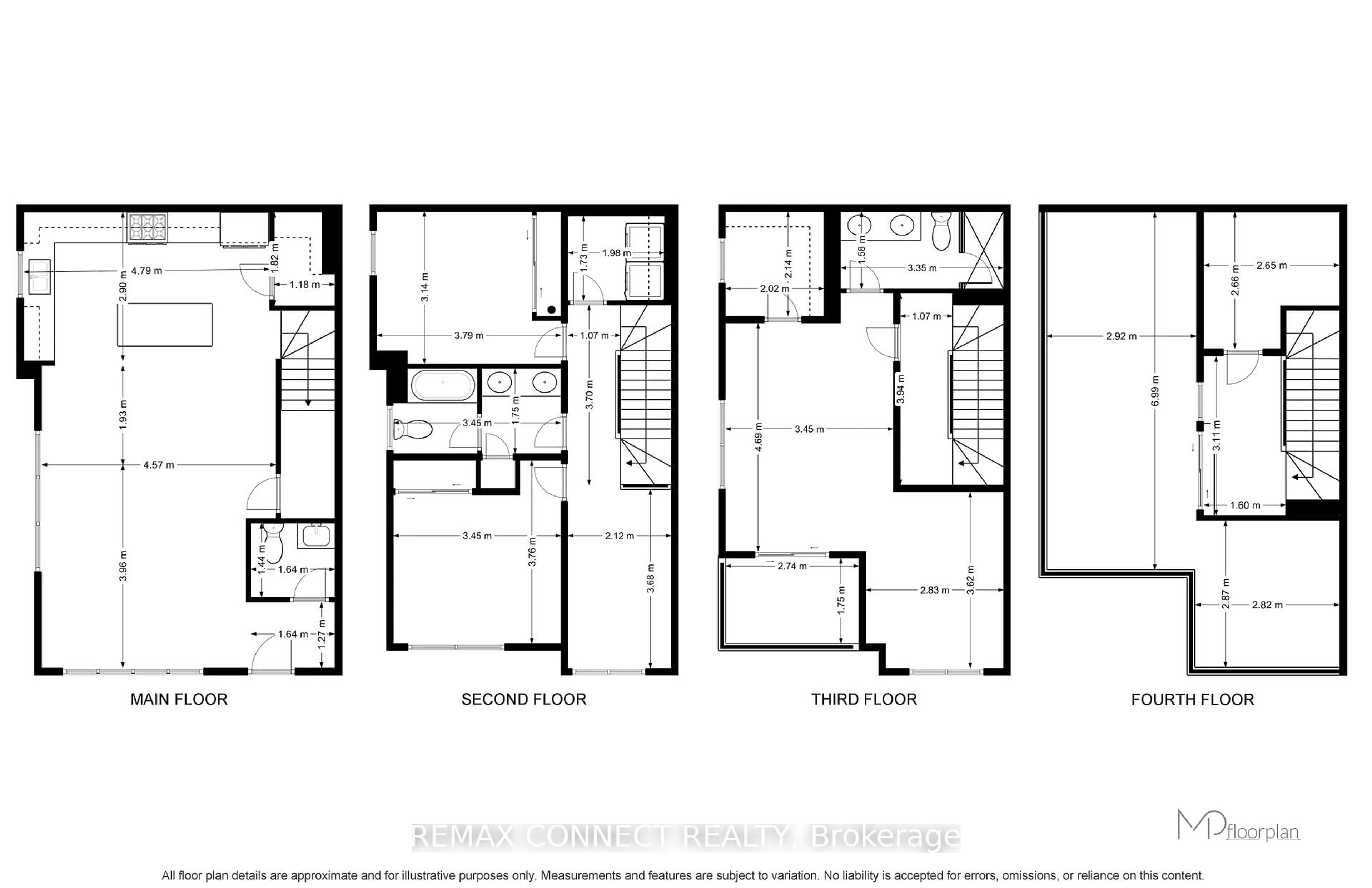
Welcome to 60 Baynes Way! This exceptional end-unit townhome in the highly sought-after Cachet Bradford Towns community is a show piece. Offering over 2,000 sq. ft. of thoughtfully designed living space, this residence seamlessly blends modern luxury, comfort, and functionality. Upgrades galore. This custom "Jade" layout features upgraded flooring throughout, enhanced lighting, modern stair railings, and custom window coverings. The chef-inspired kitchen is a true focal point, showcasing, quartz countertops, stainless steel appliances, a custom herringbone backsplash, undermount lighting, and effortless flow into the open-concept living area-perfect for both everyday living and entertaining. The primary bedroom is a private retreat on its own level, complete with a spa-inspired ensuite featuring upgraded glass shower and premium tile. With three well-appointed bedrooms and three washrooms, plus second-floor laundry with additional cabinetry, this home offers exceptional functionality and style. The second floor den has a large window providing the perfect place for a home office or playroom. Enjoy outdoor living on the private rooftop terrace, equipped with high end all-season outdoor flooring, a gas line for BBQ, and water hook-up. Additional highlights include two underground parking spaces with access to the property and an adjacent large storage unit. Ideally located steps from the Bradford GO Station and minutes to Highways 400 and 404, with close proximity to parks, shopping, restaurants, and Upper Canada Mall. This is a rare opportunity to own a beautifully upgraded luxury townhome in one of Bradford's most desirable communities. Elevated living starts here. Book your private showing today.
Property Details
Interior
Features
Main Floor
Living
4.57 x 3.96Open Concept / Large Window / W/O To Porch
Dining
4.57 x 1.93Open Concept / Large Window / hardwood floor
Kitchen
4.78 x 2.9Stainless Steel Appl / Centre Island / Quartz Counter
Powder Rm
1.63 x 1.422 Pc Bath
Exterior
Features
Parking
Garage spaces 2
Garage type Underground
Other parking spaces 0
Total parking spaces 2
Condo Details
Amenities
Visitor Parking
Inclusions
Property History
32





