113 Golf Course Rd, Pembroke, Ontario K8A 7B1
Contact us about this property
Highlights
Estimated valueThis is the price Wahi expects this property to sell for.
The calculation is powered by our Instant Home Value Estimate, which uses current market and property price trends to estimate your home’s value with a 90% accuracy rate.Not available
Price/Sqft$278/sqft
Monthly cost
Open Calculator
Description
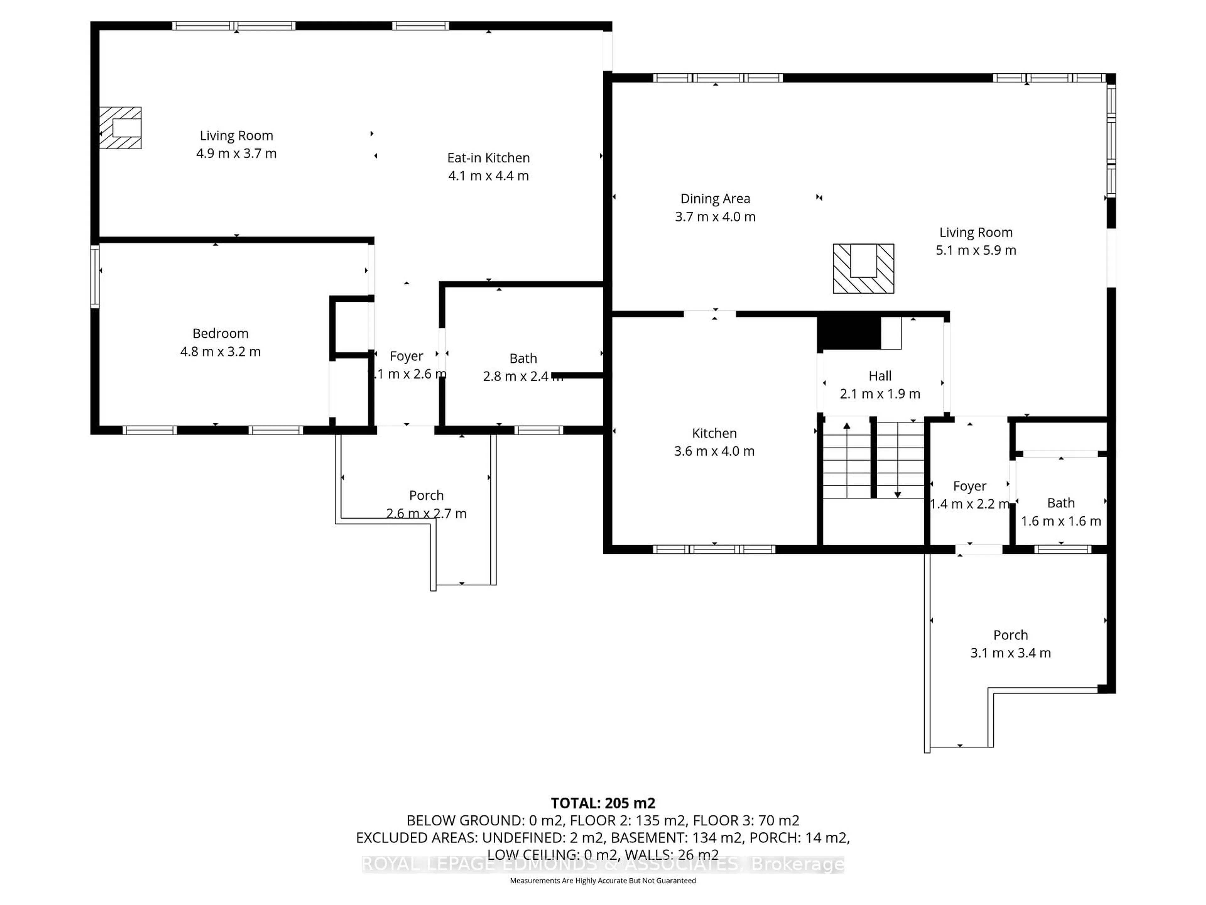
Experience the perfect blend of country living right in the city, complete with an income-generating, legal one-bedroom, accessory apartment! This character-filled home offers a rare opportunity to enjoy nature, privacy, and convenience all in one. Nestled on a huge tree-lined lot with it's own mature apple trees, the property feels like a true nature lover's paradise. The backyard is an oasis designed for relaxation and entertaining. Cool off in the pool, unwind at the pool bar, or enjoy restful evenings gathered around the fire, surrounded by lush greenery and peaceful privacy. Inside, warm up by the cozy wood stove and appreciate the abundance of space throughout the home. There are three generous bedrooms upstairs and a large basement offering endless possibilities customizable to your unique family. A legal one-bedroom apartment provides excellent flexibility, ideal for supplementing your mortgage or accommodating multi-generational living. Complete with its own pellet stove, ample kitchen and in-suite laundry, it adds impeccable value and income. This home is the whole package, located in a convenient area with easy access to amenities and benefits from all the Laurentian Valley Township perks! A unique and inviting home where character, comfort, and lifestyle come together seamlessly.
Property Details
Interior
Features
Exterior
Features
Parking
Garage spaces 2
Garage type Attached
Other parking spaces 4
Total parking spaces 6
Property History
50


















