503 Ski Hill Rd, Powassan, Ontario P0H 1Z0
Contact us about this property
Highlights
Estimated valueThis is the price Wahi expects this property to sell for.
The calculation is powered by our Instant Home Value Estimate, which uses current market and property price trends to estimate your home’s value with a 90% accuracy rate.Not available
Price/Sqft$288/sqft
Monthly cost
Open Calculator
Description
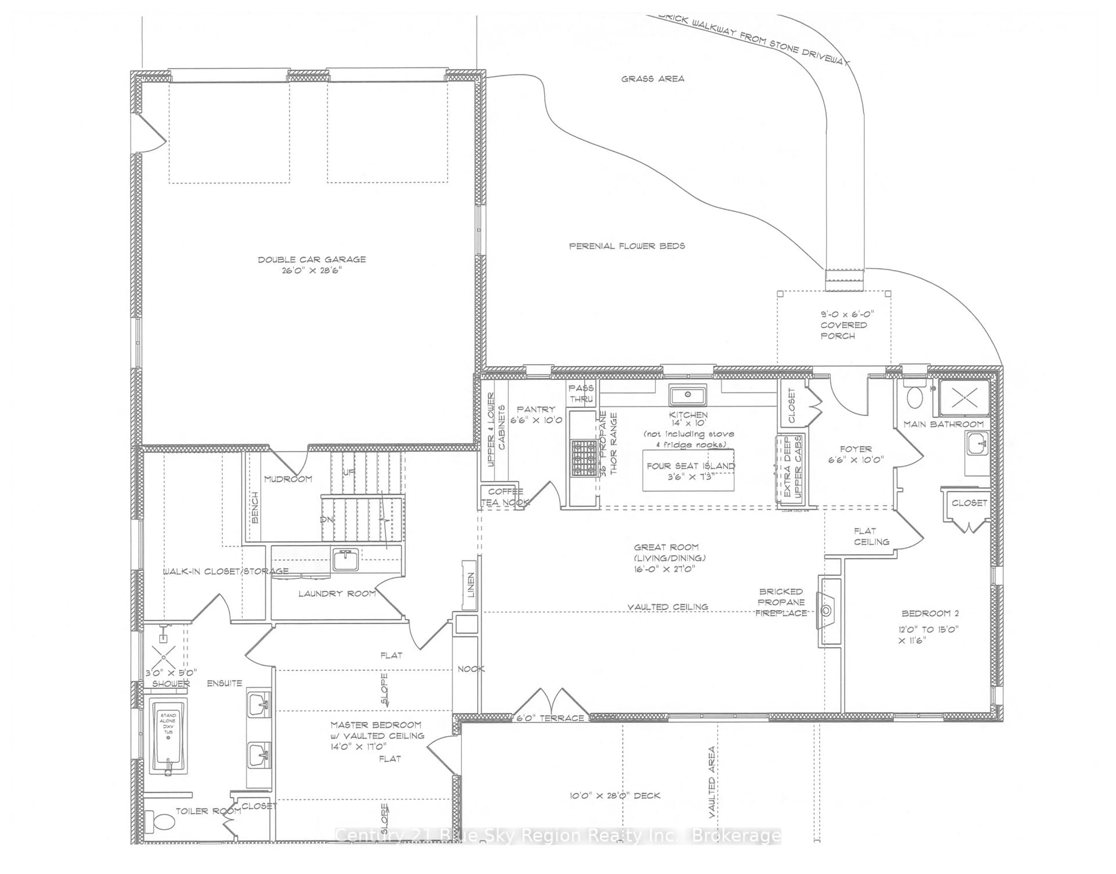
Privately set on nearly 10 acres and 400 feet from the road, this craftsman house was created with accessibility and light in mind. Wide hallways, spacious rooms, and 32"+ doorways. The front porch welcomes you into a spacious, tiled entry. Off the entry is a bright bathroom featuring a unique vanity, walk-in shower, toilet, and a barn-style cheater door leading to a large, well-lit bedroom. The great room features a propane fireplace with built-in storage cabinets and a coffee nook. A terrace door welcomes you to a 10X28 deck with a propane hookup for entertaining and BBQ'ing. The open concept kitchen features full-height uppers, a large island, and Silestone countertops, a tiled cooking area boasting a 36" THOR propane range with a pot filler and adjoining prep-pantry with a baker's pass-through to the kitchen. A side-by-side fridge and freezer finish the kitchen. The Master bedroom features a large walk-in shower, a stand-alone tub, double sinks, and a linen closet. The master suite is completed with an impressive walk-in closet. Descend to the walk-out lower level with storage and central vac located under the stairs. A 2-piece marble floor washroom is at the bottom of the stairs next to another storage/workshop area, and a versatile 14'X24' sewing/exercise room. Large windows and a terrace door lead to the rear stone patio. Flexibility is the word with roughed-in plumbing and doorways that allow for a conversion in a granny suite. The lower level includes a large rec room with wiring for recessed speakers. CAT-5 is fed into every TV space to take advantage of the Fiber internet servicing the house. The basement also features a wood fireplace, kitchenette, 2 bedrooms, a large 3-piece bath, and a terrace door to the patio. The home is heated by a high-efficiency furnace with LifeBreath HRV and cooled by A/C.A full service generator provides power during outages. Public Open House Saturday, November 1st, 2025
Property Details
Interior
Features
Main Floor
Foyer
2.01 x 3.05Bathroom
2.65 x 2.373 Pc Bath
Br
3.65 x 3.53Kitchen
4.26 x 3.05Combined W/Great Rm
Exterior
Features
Parking
Garage spaces 2
Garage type Attached
Other parking spaces 6
Total parking spaces 8
Property History
50






