12 Darrow Dr, Tillsonburg, Ontario N4G 1C4
Contact us about this property
Highlights
Estimated valueThis is the price Wahi expects this property to sell for.
The calculation is powered by our Instant Home Value Estimate, which uses current market and property price trends to estimate your home’s value with a 90% accuracy rate.Not available
Price/Sqft$324/sqft
Monthly cost
Open Calculator
Description
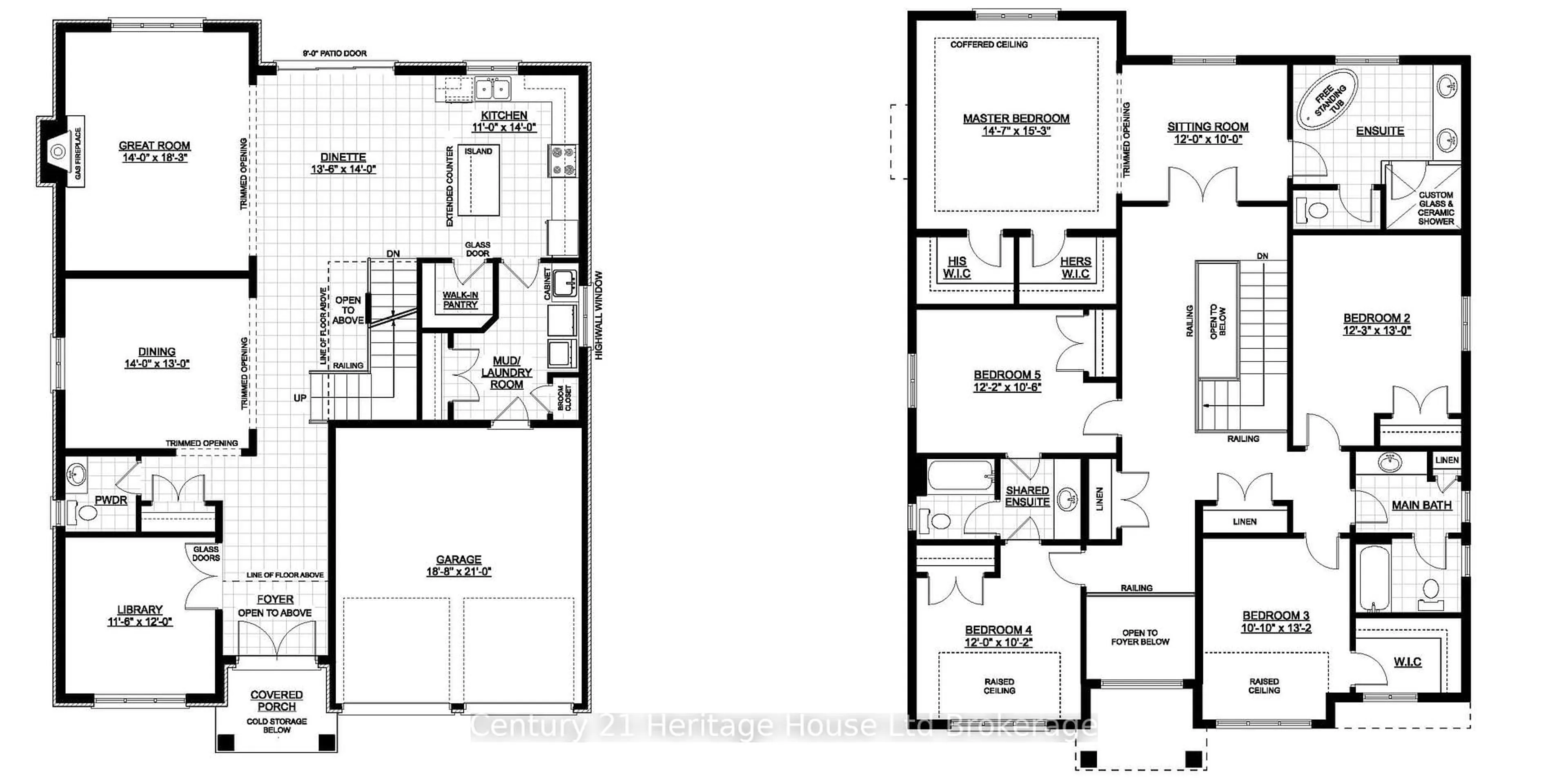
Introducing the to-be-built Magnolia Model by Trevalli Homes, located in the desirable Westwinds community in Tillsonburg Ont. This stunning 3,405 sq. ft. two-storey home is thoughtfully designed for modern and multi-generational living, offering generous shared spaces alongside private retreats.A large foyer creates an impressive first impression, leading into a beautifully balanced main floor featuring a private den/study, formal dining room, and a spacious great room ideal for everyday living. The chef-inspired kitchen showcases abundant cabinetry, extensive storage, and a large island, making it perfect for entertaining.The upper level offers five bedrooms, including a luxurious primary bedroom designed as a true adult retreat. This impressive suite features a dedicated sitting area, his-and-hers walk-in closets, a coffered ceiling, and a spa-inspired en-suite bathroom, creating a serene private escape. Four additional well-sized bedrooms provide excellent functionality, with a Jack-and-Jill bathroom servicing two bedrooms and a main bath serving the remaining two.Built by Trevalli Homes, a trusted builder known for quality craftsmanship and attention to detail. Additional bungalow and two-storey floor plans are available, along with flexible deposit structures and closing dates, offering a rare opportunity to build a home tailored to today's lifestyles.Open House Location: 4 Thompson Court , Tillsonburg, Ont
Property Details
Interior
Features
Main Floor
Library
3.53 x 3.65Dining
4.26 x 3.96Family
4.26 x 5.57Breakfast
4.14 x 4.26Exterior
Features
Parking
Garage spaces 2
Garage type Attached
Other parking spaces 2
Total parking spaces 4
Property History
3







