2210 Descartes St, Orleans, Ontario K4A 0W4
Contact us about this property
Highlights
Estimated valueThis is the price Wahi expects this property to sell for.
The calculation is powered by our Instant Home Value Estimate, which uses current market and property price trends to estimate your home’s value with a 90% accuracy rate.Not available
Price/Sqft$355/sqft
Monthly cost
Open Calculator

Curious about what homes are selling for in this area?
Get a report on comparable homes with helpful insights and trends.
+22
Properties sold*
$577K
Median sold price*
*Based on last 30 days
Description
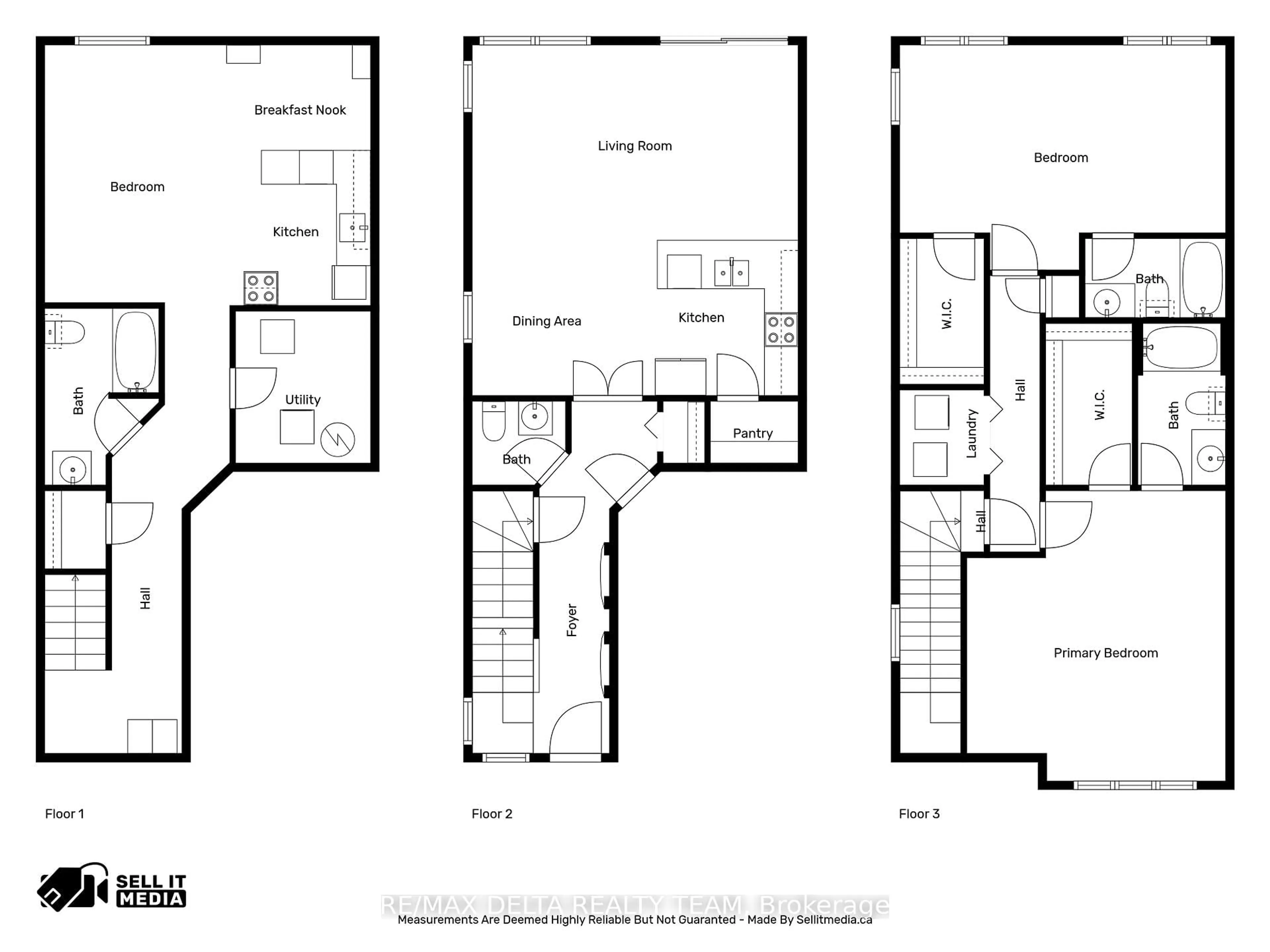
Beautiful End Unit by Cardel! This stunning end unit townhome by Cardel offers a bright open-concept layout with hardwood and ceramic floors throughout the main level. The modern kitchen flows seamlessly into the dining and living areas-perfect for entertaining or relaxing with family. Each spacious bedroom features its own private ensuite for added comfort and convenience. Includes washer and dryer on upper level. New carpet on stairs and upper level (Oct 2025). The finished basement features a kitchenette,( 2023) full bathroom, and additional washer/dryer-ideal for an in-law suite, teenage retreat, 3rd bedroom or bachelor apartment with potential rental income. Enjoy a fenced backyard with BBQ gas hook-up for outdoor living, and an interlock front for added curb appeal, with parking for three vehicles. Situated in a fantastic neighbourhood close to shopping, recreational facilities, and excellent schools. A wonderful opportunity in a sought-after area. 24hr Irrev. **Open House Nov 9th, 2-4pm**
Property Details
Interior
Features
Main Floor
Kitchen
3.13 x 3.09Pantry
Living
5.79 x 3.14Dining
2.66 x 3.09Exterior
Features
Parking
Garage spaces 1
Garage type Attached
Other parking spaces 2
Total parking spaces 3
Property History
27
















