231 Bell St, Ottawa, Ontario K1R 7E1
Contact us about this property
Highlights
Estimated valueThis is the price Wahi expects this property to sell for.
The calculation is powered by our Instant Home Value Estimate, which uses current market and property price trends to estimate your home’s value with a 90% accuracy rate.Not available
Price/Sqft$423/sqft
Monthly cost
Open Calculator
Description
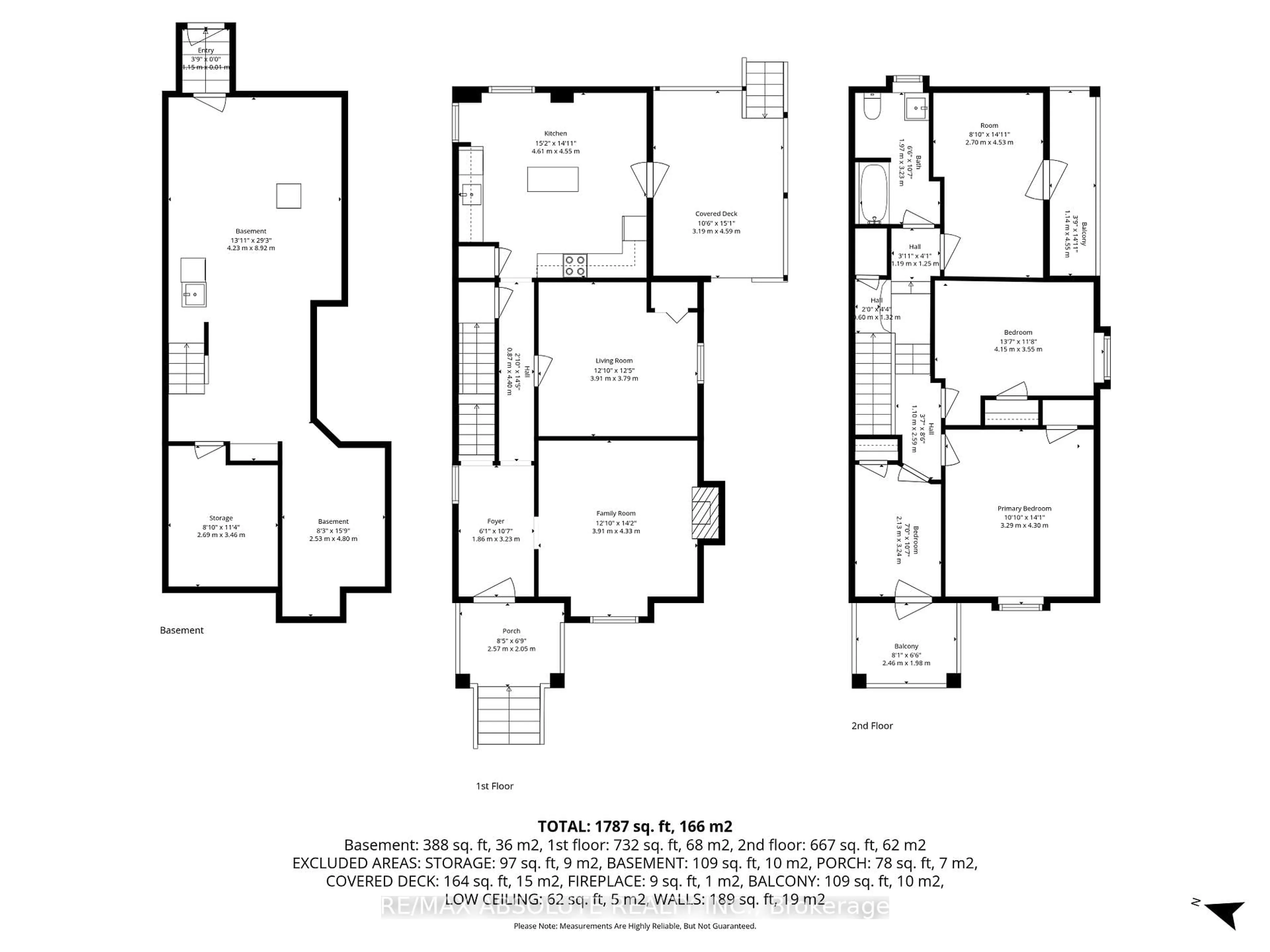
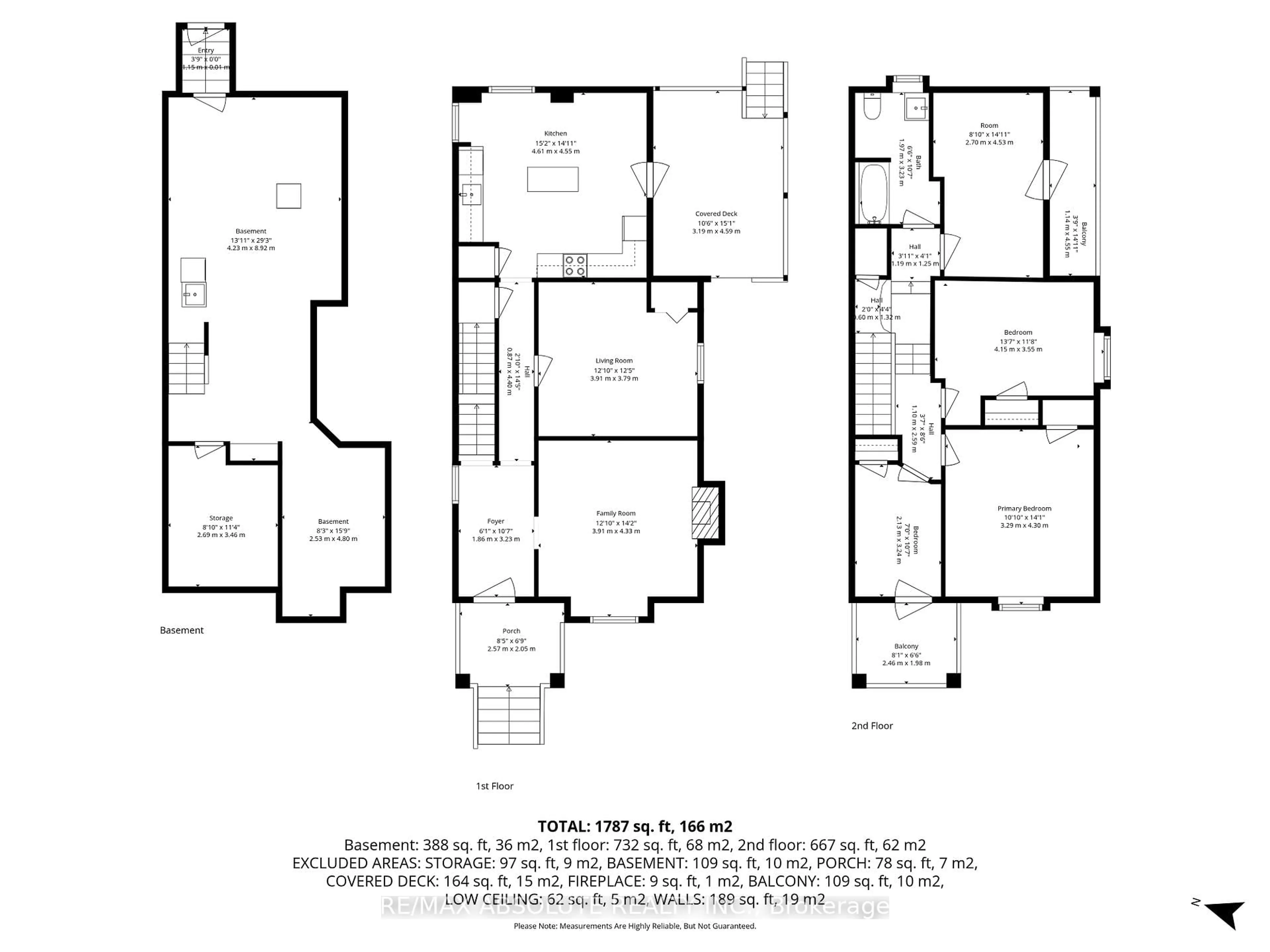
Location, location! The "property type" on Geowarehouse is a duplex but currently being used as a single-family home, there are 2 separate hydro meters - GREAT potential to reconvert! Paved driveway! Covered front porch! Spacious welcoming entry! The floor plan lends itself for many different living options. The SUPER nice kitchen had an upgrade in 2015 & still very much still in style.. shaker style cabinets, subway tile backsplash, stainless appliances & access to a covered porch perfect for dining el fresco! Site finished hardwood throughout! Both living & dining room are a great size & have crown molding. On the second level there are 3 bedrooms PLUS a den (currently being used as a closet) Bedroom 2 & the den have access to balconies! The laundry is in the full height lower level where you will also find ample storage. Furnace & HWT 2022// Possession can be anytime AFTER July 1st
Property Details
Interior
Features
Main Floor
Living
3.91 x 4.33Dining
3.91 x 3.79Kitchen
4.61 x 4.55Exterior
Features
Parking
Garage spaces -
Garage type -
Total parking spaces 3
Property History
20

























