5505 Osgoode Main St, Osgoode, Ontario K0A 2W0
Contact us about this property
Highlights
Estimated valueThis is the price Wahi expects this property to sell for.
The calculation is powered by our Instant Home Value Estimate, which uses current market and property price trends to estimate your home’s value with a 90% accuracy rate.Not available
Price/Sqft$429/sqft
Monthly cost
Open Calculator
Description
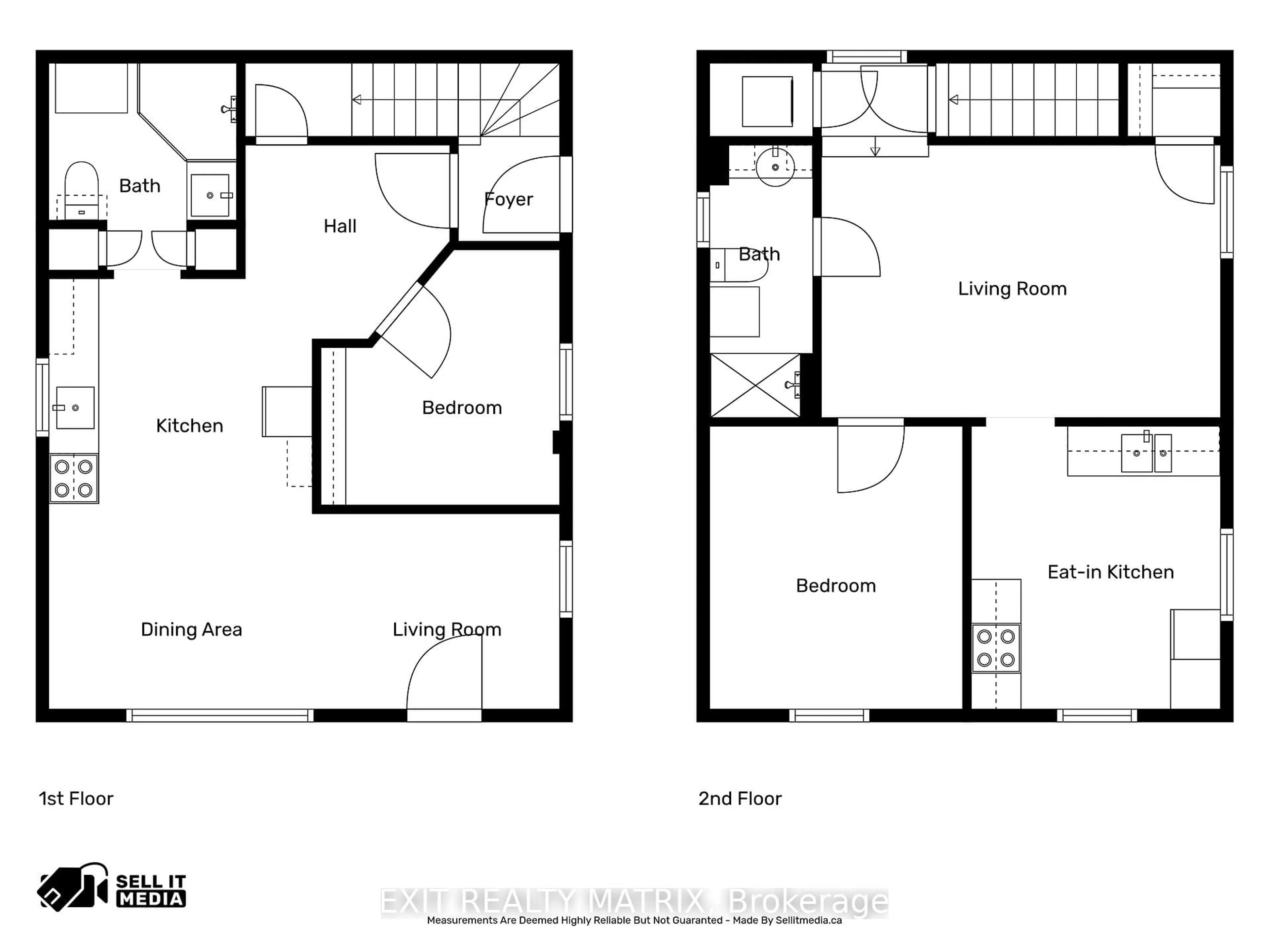
Own a true piece of Osgoode history with this charming century duplex, filled with character, warmth, and timeless appeal. Ideally located near the local library, schools, everyday amenities, and within walking distance to a local coffee shop and scenic walking trails, this unique property offers the best of small-town living. Enjoy being approximately 1 km from the river with a convenient boat launch - perfect for outdoor enthusiasts. Blending historic charm with modern-day convenience, this property is ideal for multi-generational living, rental income, or owner-occupancy with added revenue potential. Zoned Village Mixed-Use, it offers a wide range of possibilities (buyer to verify permitted uses), adding incredible flexibility and future upside. Dwelling 1 is currently rented at $1,500/month with an excellent tenant, with a lease secured until December 31, 2026, providing immediate and stable income. This unit features an inviting foyer, abundant natural light, an open-concept kitchen, dining, and cozy living space, along with a comfortable bedroom and well-appointed 3-piece bathroom. Dwelling 2 is bright and welcoming, offering a functional kitchen with an eating area, comfortable living room, spacious bedroom, and 3-piece bathroom - ideal for tenants or extended family. Step outside to a peaceful backyard retreat where you can relax and unwind. A rare opportunity to own a historic gem in the heart of the community, surrounded by lifestyle, convenience, and exceptional potential.
Property Details
Interior
Features
Main Floor
Foyer
1.22 x 1.26Kitchen
3.17 x 2.83Dining
3.44 x 2.35Living
2.71 x 2.36Exterior
Features
Parking
Garage spaces -
Garage type -
Total parking spaces 4
Property History
38













