114 Harold Valley Dr, Kinburn, Ontario K0A 2H0
Contact us about this property
Highlights
Estimated valueThis is the price Wahi expects this property to sell for.
The calculation is powered by our Instant Home Value Estimate, which uses current market and property price trends to estimate your home’s value with a 90% accuracy rate.Not available
Price/Sqft$292/sqft
Monthly cost
Open Calculator
Description
Welcome to 114 Harold Valley Drive-an affordable, detached home offering the privacy and comfort of a house at a price point that's increasingly hard to find. Located in a quiet, well-kept community in the Kinburn area, this bright, nearly new modular home delivers low-maintenance living without sacrificing space, independence, or lifestyle. Built in 2020 and thoughtfully upgraded, this move-in ready home offers peace of mind with key improvements already complete, including a new heat pump & A/C (2025), transfer switch & backup generator (2023), multiple decks (2021 & 2022), eavestroughs (2021), and a water filtration system (2020).Inside, a sun-filled, open-concept layout creates a warm and functional living space, ideal for both everyday comfort and easy entertaining. The kitchen, featuring a propane stove, flows seamlessly into the living area. Two generously sized bedrooms, a full bathroom, and a convenient in-home laundry area complete this well-designed interior. Set on a spacious 70 x 140 ft lot, the outdoor space offers plenty of room to relax and enjoy the surroundings-whether it's morning coffee on the deck, gardening, or simply taking in the peaceful, treed setting. Residents enjoy a relaxed lifestyle, a strong sense of community, and convenient access to Carp, Arnprior, Kanata, and Highway 417.Ideal for downsizers, first-time buyers, or anyone looking to simplify without giving up privacy, this home presents a compelling alternative to condo living-no shared walls, your own outdoor space, and a welcoming neighbourhood environment. Monthly lot fees of $525 include water, garbage collection, park maintenance, and sewer services. Financing options may be available for qualified buyers-please inquire for details.
Property Details
Interior
Features
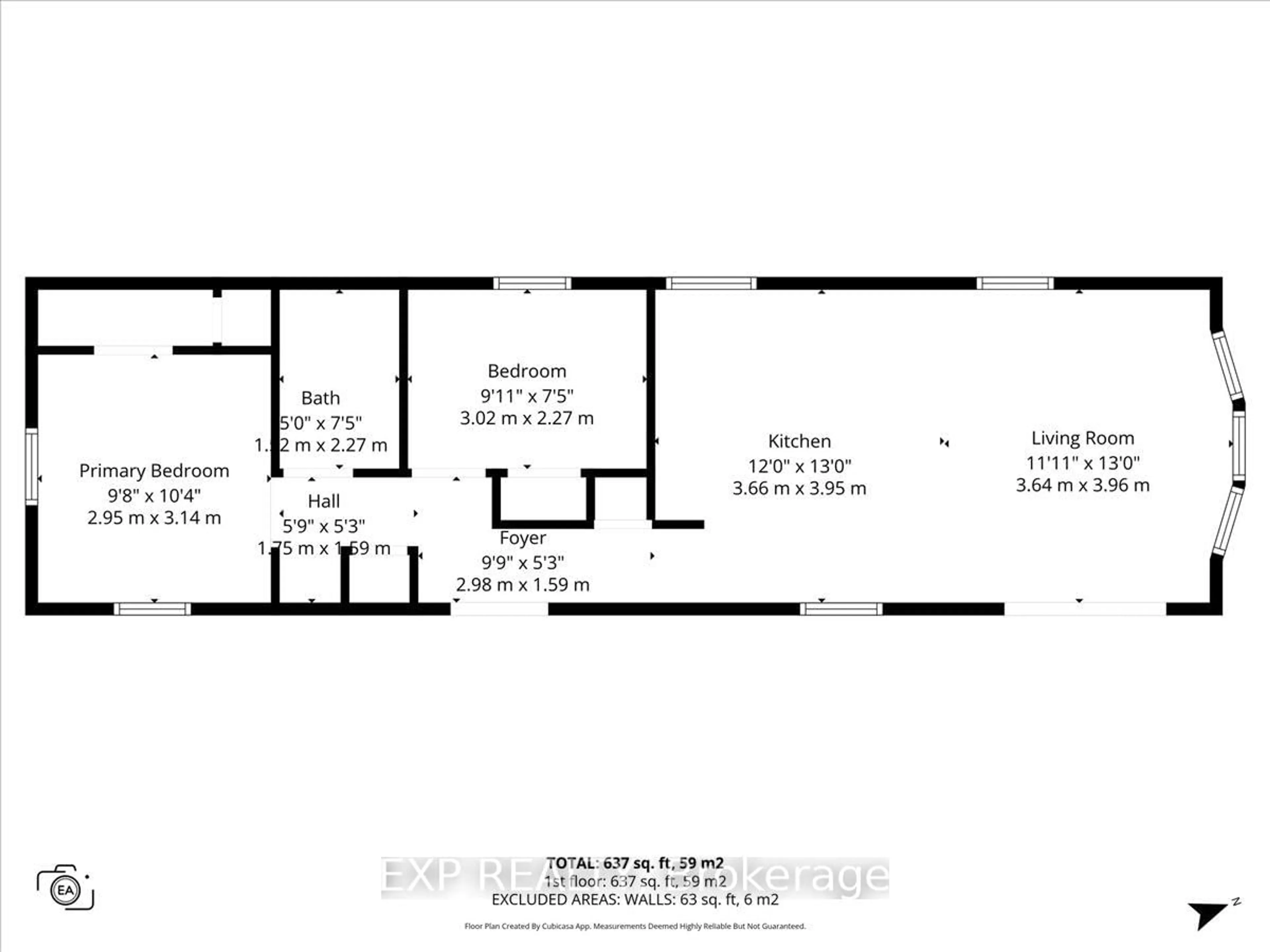
Main Floor
Br
3.02 x 2.27Primary
2.95 x 3.14Bathroom
1.52 x 2.27Kitchen
3.66 x 3.95Exterior
Parking
Garage spaces -
Garage type -
Total parking spaces 4
Property History
32






