4836 45 Highway, Hamilton Township, Ontario K7G 2V6
Contact us about this property
Highlights
Estimated valueThis is the price Wahi expects this property to sell for.
The calculation is powered by our Instant Home Value Estimate, which uses current market and property price trends to estimate your home’s value with a 90% accuracy rate.Not available
Price/Sqft$673/sqft
Monthly cost
Open Calculator
Description
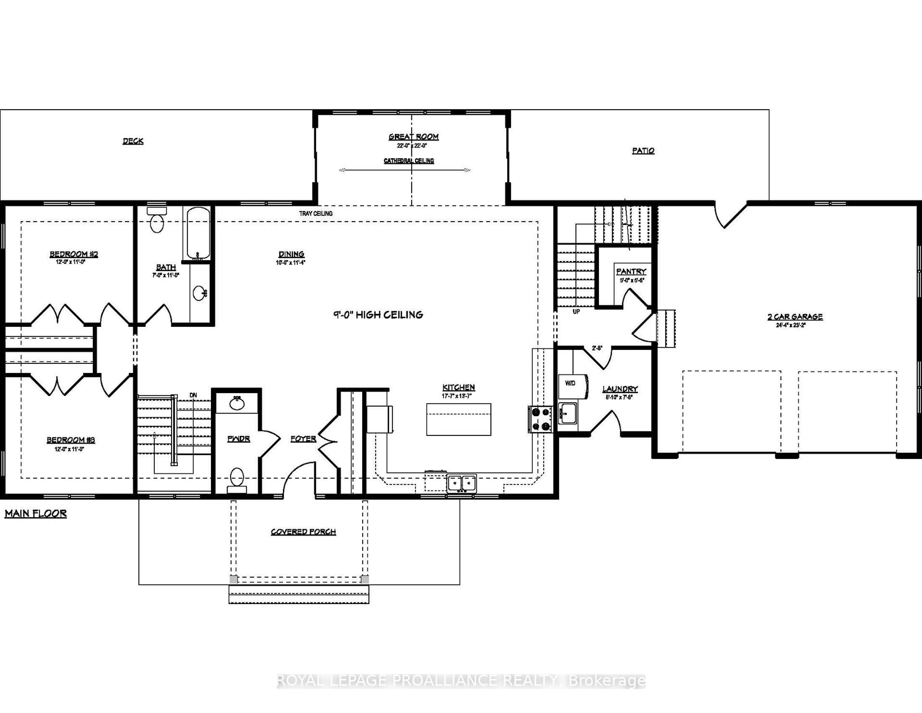
Nestled on almost 5 acres in the sought after hilltop community of Deerfield Estates with stunning panoramic views, this beautifully renovated estate home complete! This fully finished home offers gorgeous finishes, features and craftsmanship throughout that are sure to impress. The open concept main living area features a chef's kitchen with quartz countertops, WI pantry, Island with breakfast bar and loads of storage. Natural light floods in through huge windows to the show-stopping Great Room, plus two separate patio doors give access to the landscaped patio AND a deck that extend your living space even further! Imagine peaceful evenings under the stars, relaxing and watching the fireflies dance. Two large bedrooms, a full bathroom along with a laundry room and a powder room offer main floor conveniences for the whole family. Upstairs, the Primary Suite is a dream come true with not one, but TWO WI closets, an oversized luxurious ensuite with soaker tub and WI glass/tile shower plus an additional room that could be used as a dressing room or more storage. The lower level completes the home with an office space, media room, huge recreation with wet bar and full bathroom...a perfect retreat for teens & guests. A walk-up from the basement to the attached two-car garage could allow for a separate in-law suite. Notables include luxury vinyl plank & ceramic flooring, municipal water, efficient heat pump. Located minutes to the lakeside Town of Cobourg With amazing beaches, shopping, hospital and fantastic restaurants, and just 40 minutes to the Oshawa GO! LISTING PRICE REFLECTS EXPANDED HST NEW RESIDENTIAL REBATE FOR ELIGIBLE PURCHASERS.
Property Details
Interior
Features
Main Floor
Kitchen
5.39 x 4.17Dining
3.04 x 3.47Pantry
1.52 x 1.7Great Rm
6.7 x 6.7Exterior
Parking
Garage spaces 2
Garage type Attached
Other parking spaces 6
Total parking spaces 8
Property History
42






