Lot 49 Lancaster Dr, Brighton, Ontario K0K 1H0
Contact us about this property
Highlights
Estimated valueThis is the price Wahi expects this property to sell for.
The calculation is powered by our Instant Home Value Estimate, which uses current market and property price trends to estimate your home’s value with a 90% accuracy rate.Not available
Price/Sqft$503/sqft
Monthly cost
Open Calculator
Description
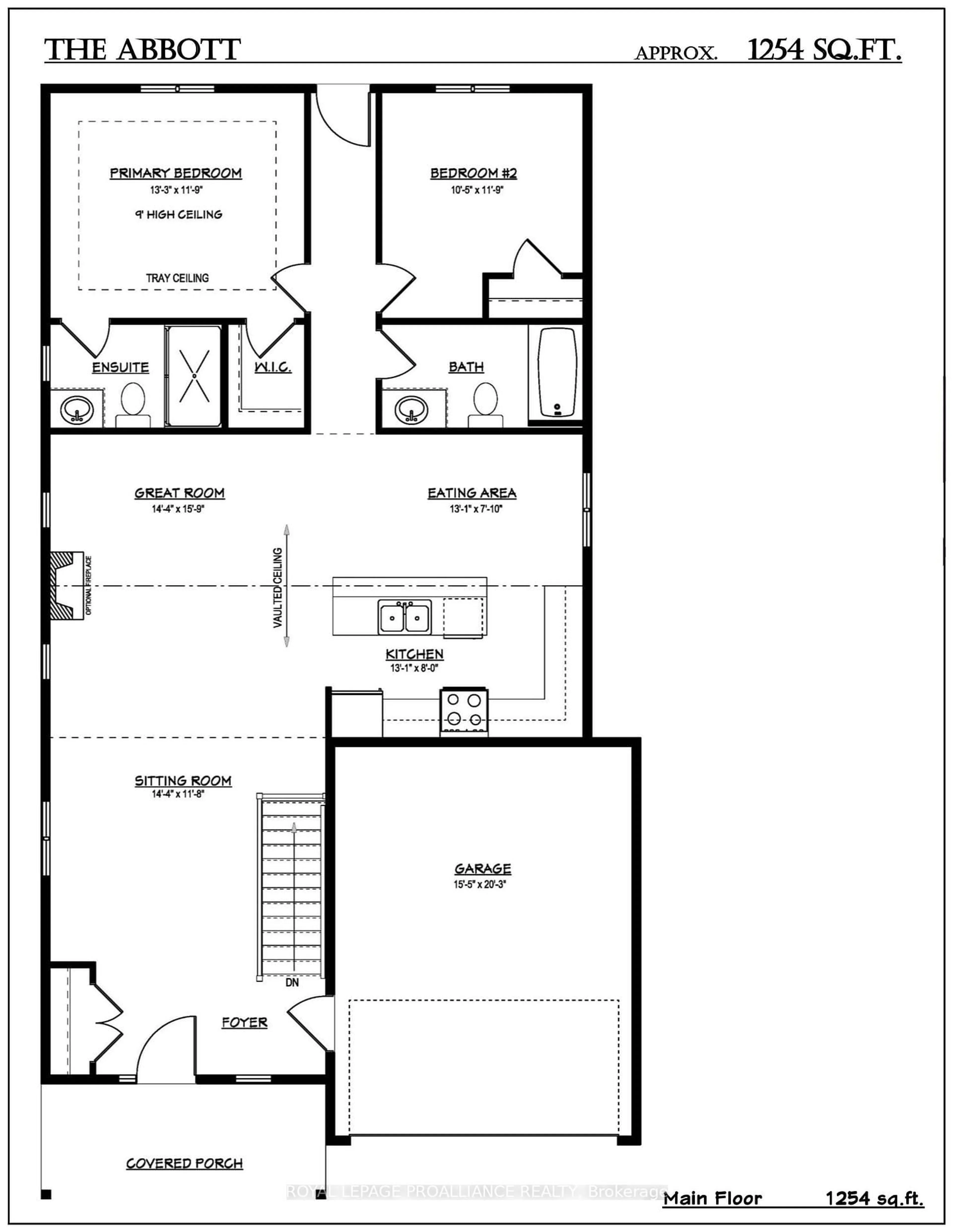
WELCOME TO WESTGATE, Brighton's newest community, offering a selection of thoughtfully designed floor plans, attractive pricing and available lots with closings as early as Spring 2027. The neighbourhood is ideally situated between downtown and the stunning Presqu'ile Provincial Park, where you can hike nature trails, enjoy world-class bird watching, swim or relax along sandy beaches. "THE ABBOTT" is a stunning 2 Bedroom, 2 Bath bungalow, offering 1254 sq ft of main floor living space with beautiful features and finishes! Your customized kitchen is perfect for entertaining with a sit-up Island, modern lighting and ample counter space and cabinetry. Open-concept Dining, Kitchen and Great Room areas are enhanced by vaulted ceilings, creating a spacious and inviting atmosphere. The Primary suite offers a walk in closet and a luxurious ensuite with walk-in shower. An attached 1.5-car garage provides direct access to the foyer, while the bright lower level includes a rough-in bath that can be finished now or later for added living space. Additional features include Sodding, HRV and high-efficiency furnace for year-round comfort. An excellent opportunity to personalize your dream home with your own selections and finishes from floor to ceiling, inside and out! An unmatched location for recreation and convenience, WESTGATE places you a short bike, stroll or moments drive from Brighton's many amenities, including shopping, cafes, restaurants, Rec Centre, parks, curling club, YMCA, schools, tennis and pickleball courts. SEVERAL ADDITIONAL FLOOR PLANS AVAILABLE TO SUIT YOUR LIVING STYLE AND NEEDS! LISTING PRICE REFLECTS EXPANDED HST NEW RESIDENTIAL REBATE FOR ELIGIBLE PURCHASERS.
Property Details
Interior
Features
Main Floor
Bathroom
3.2 x 1.644 Pc Bath
Bathroom
2.46 x 1.644 Pc Ensuite
Sitting
4.38 x 3.59Br
3.2 x 3.62Exterior
Features
Parking
Garage spaces 1.5
Garage type Attached
Other parking spaces 2
Total parking spaces 3.5
Property History
3



