141 Middle Ridge Rd, Brighton, Ontario K0K 1H0
Contact us about this property
Highlights
Estimated valueThis is the price Wahi expects this property to sell for.
The calculation is powered by our Instant Home Value Estimate, which uses current market and property price trends to estimate your home’s value with a 90% accuracy rate.Not available
Price/Sqft$576/sqft
Monthly cost
Open Calculator
Description
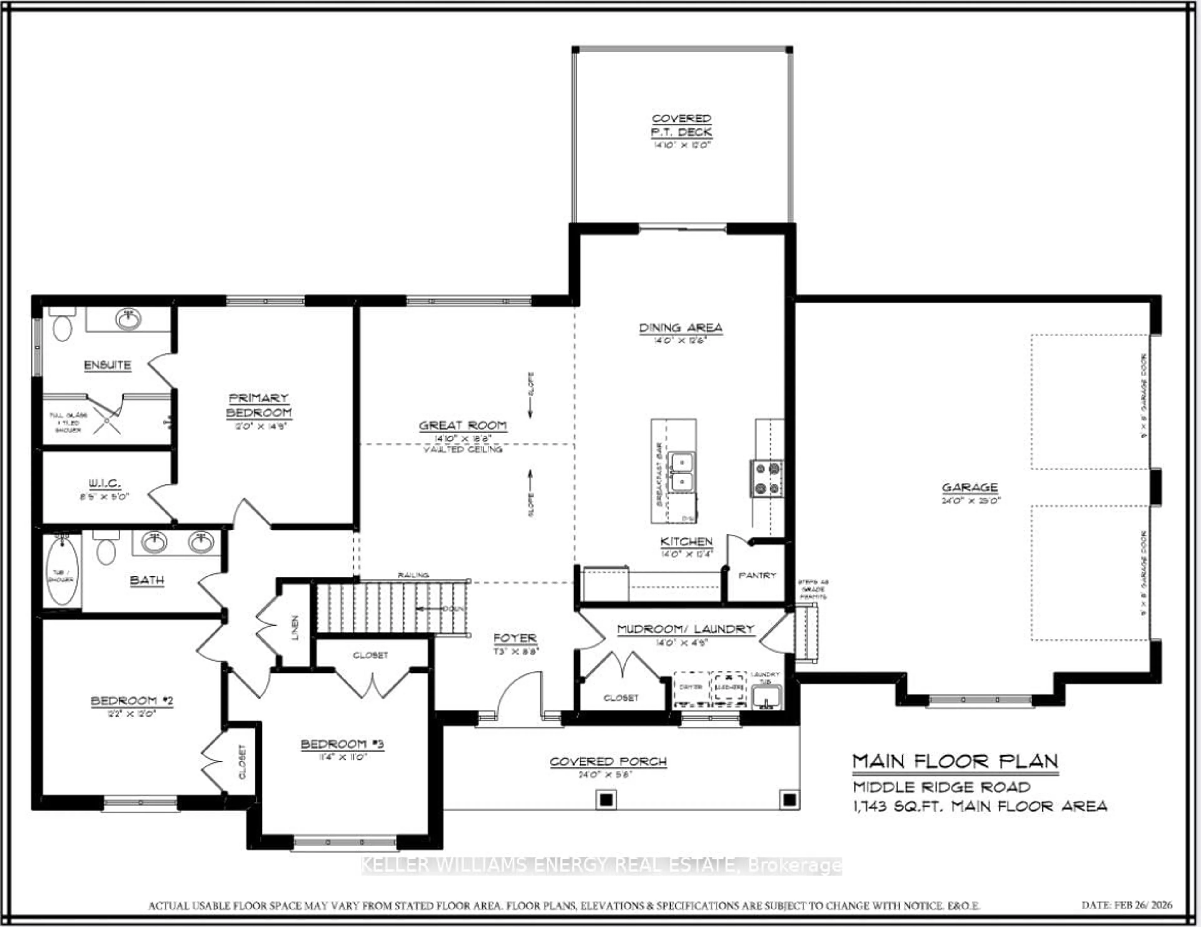
Construction is Underway! Enjoy a quality, brand-new home, proudly built by a reputable local builder. This 3 Bed, 2 Bath bungalow offers approximately 1,743 sq ft on the main floor & is situated on a 2.013 acre lot. Covered porch leads to a gracious foyer. Vaulted ceiling and recessed lighting adds elegance to the great room. 9 ft ceilings throughout the main floor. Kitchen is complete with a pantry, large island, and a generous layout with quality cabinetry and quartz counters. Dining area offers sliding doors leading to a 12x14 ft covered deck. Main floor is complete with 3 bedrooms, 2 full baths, and laundry room (off the foyer, with access to the garage). Primary bedroom enjoys a walk-in-closet & a 3 pc bath with beautiful tile and glass shower. The main bath is a 5pc with a tub/shower unit and double vanity. Full basement with large above-grade windows ensuring loads of additional bright living space and a sliding glass door to enjoy walkout access. The home is complete with a 24 x 25" 2-car insulated & drywalled garage with electric opener, owned electric hot water tank. Located on a quiet road with no through-traffic and no rear neighbour. Minutes to downtown Brighton or Quinte West for all conveniences, with easy access to the 401, all with the privacy of country lot. Construction is underway and possession is available before summertime - Early June, approx.
Property Details
Interior
Features
Main Floor
Foyer
2.64 x 2.2Mudroom
4.26 x 1.44Kitchen
4.26 x 3.76Dining
4.26 x 3.81Exterior
Features
Parking
Garage spaces 2
Garage type Attached
Other parking spaces 10
Total parking spaces 12
Property History
8







