Lot 8 Ridgeline Dr, Alnwick/Haldimand, Ontario K0K 2G0
Contact us about this property
Highlights
Estimated valueThis is the price Wahi expects this property to sell for.
The calculation is powered by our Instant Home Value Estimate, which uses current market and property price trends to estimate your home’s value with a 90% accuracy rate.Not available
Price/Sqft$489/sqft
Monthly cost
Open Calculator
Description
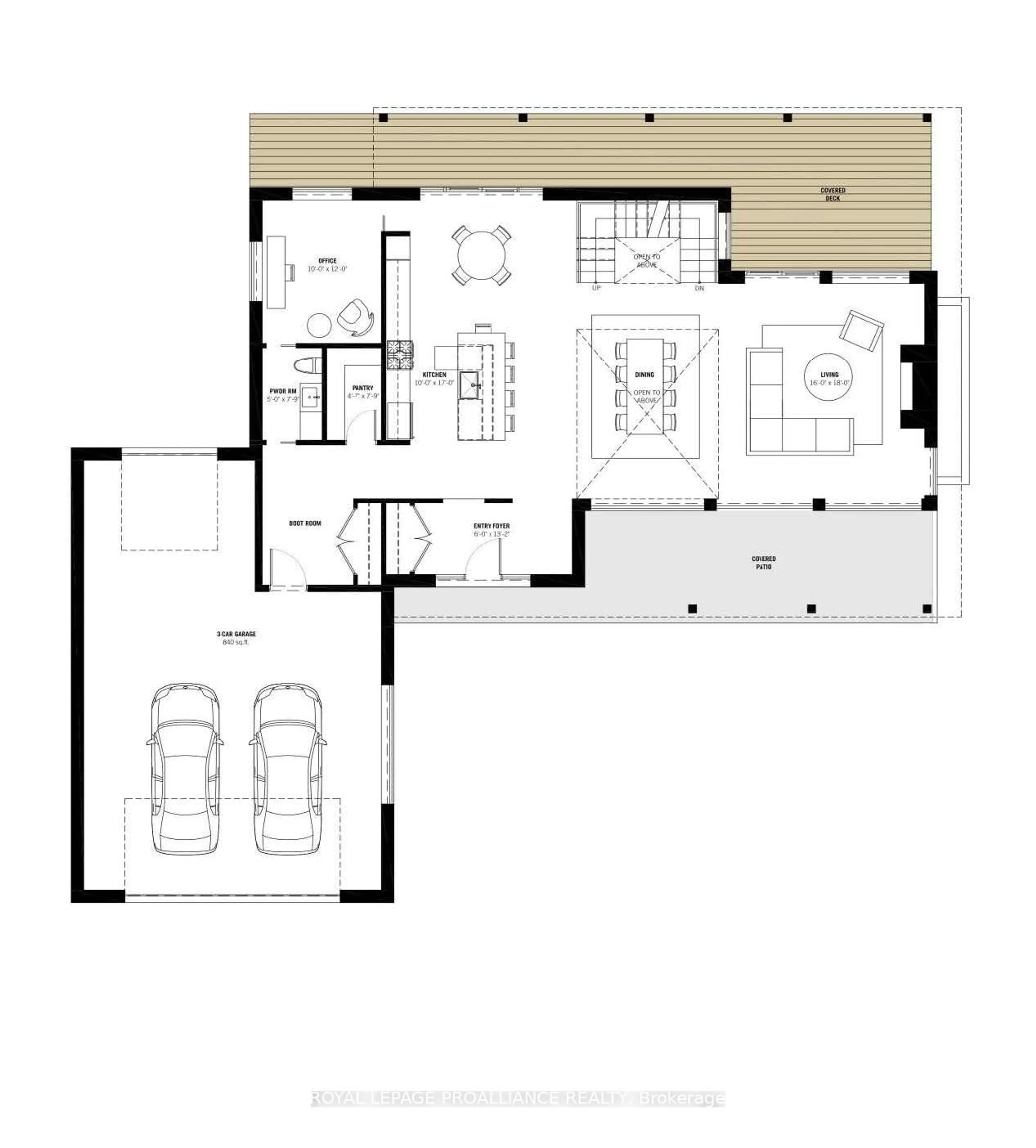
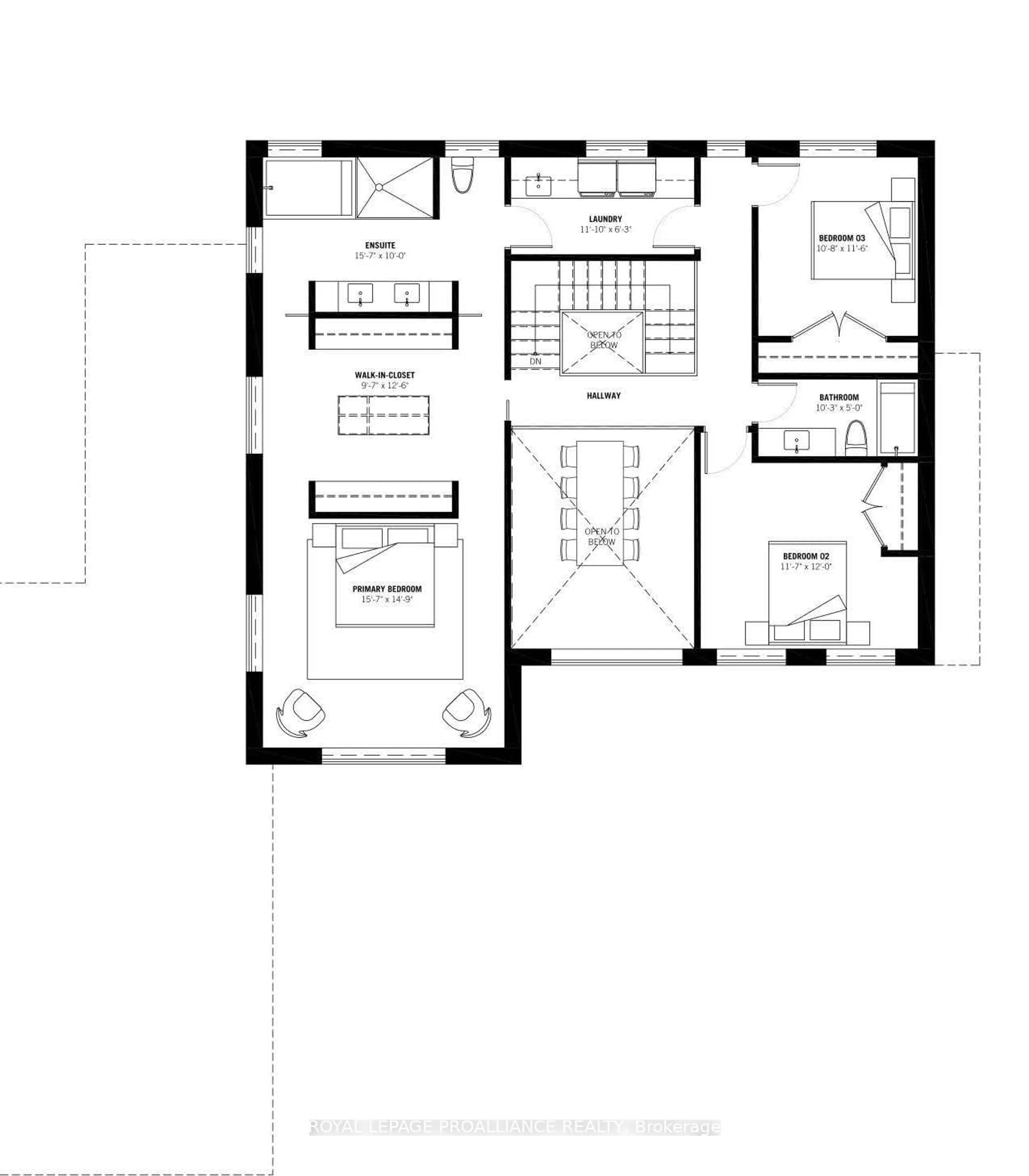
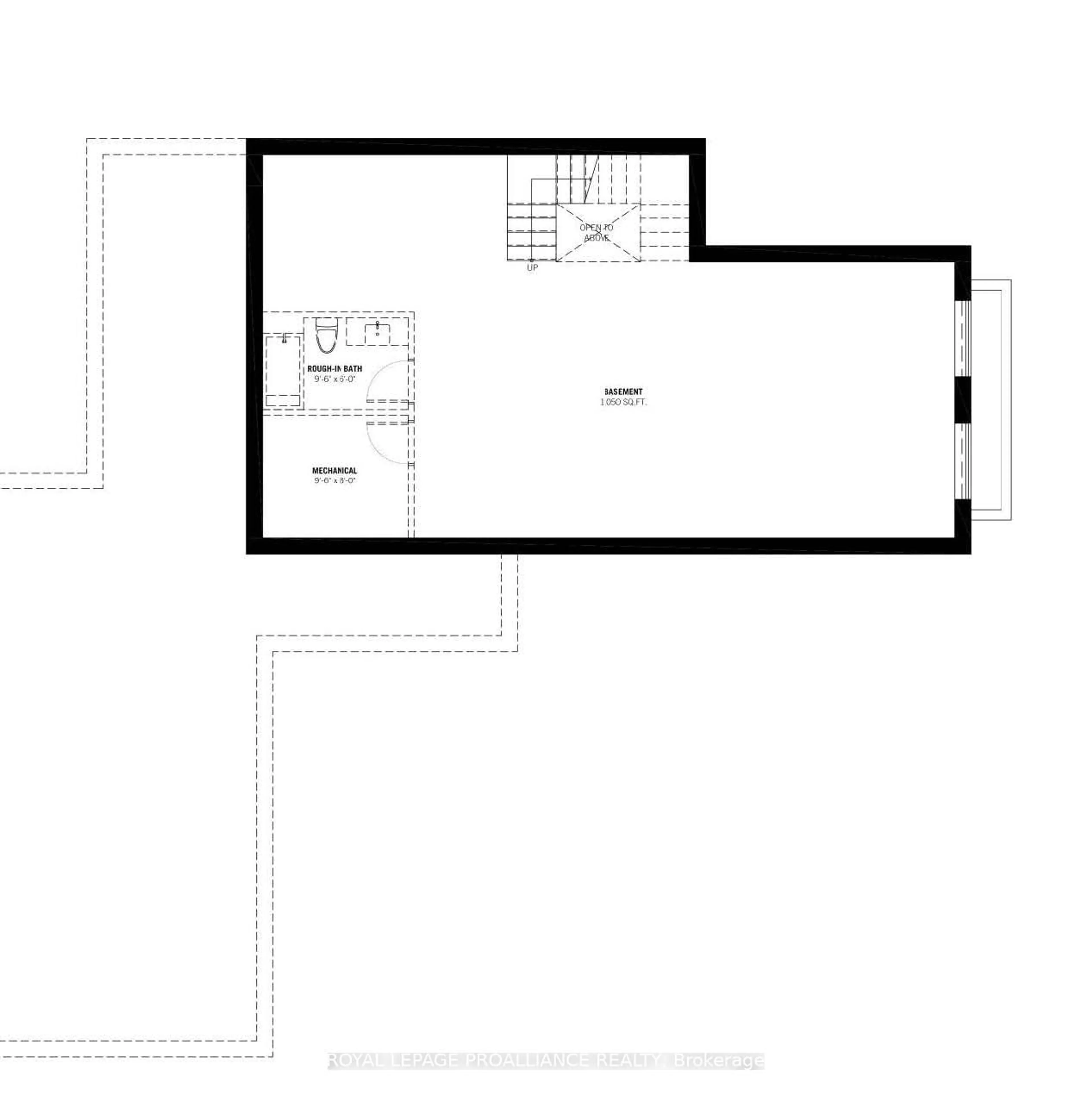
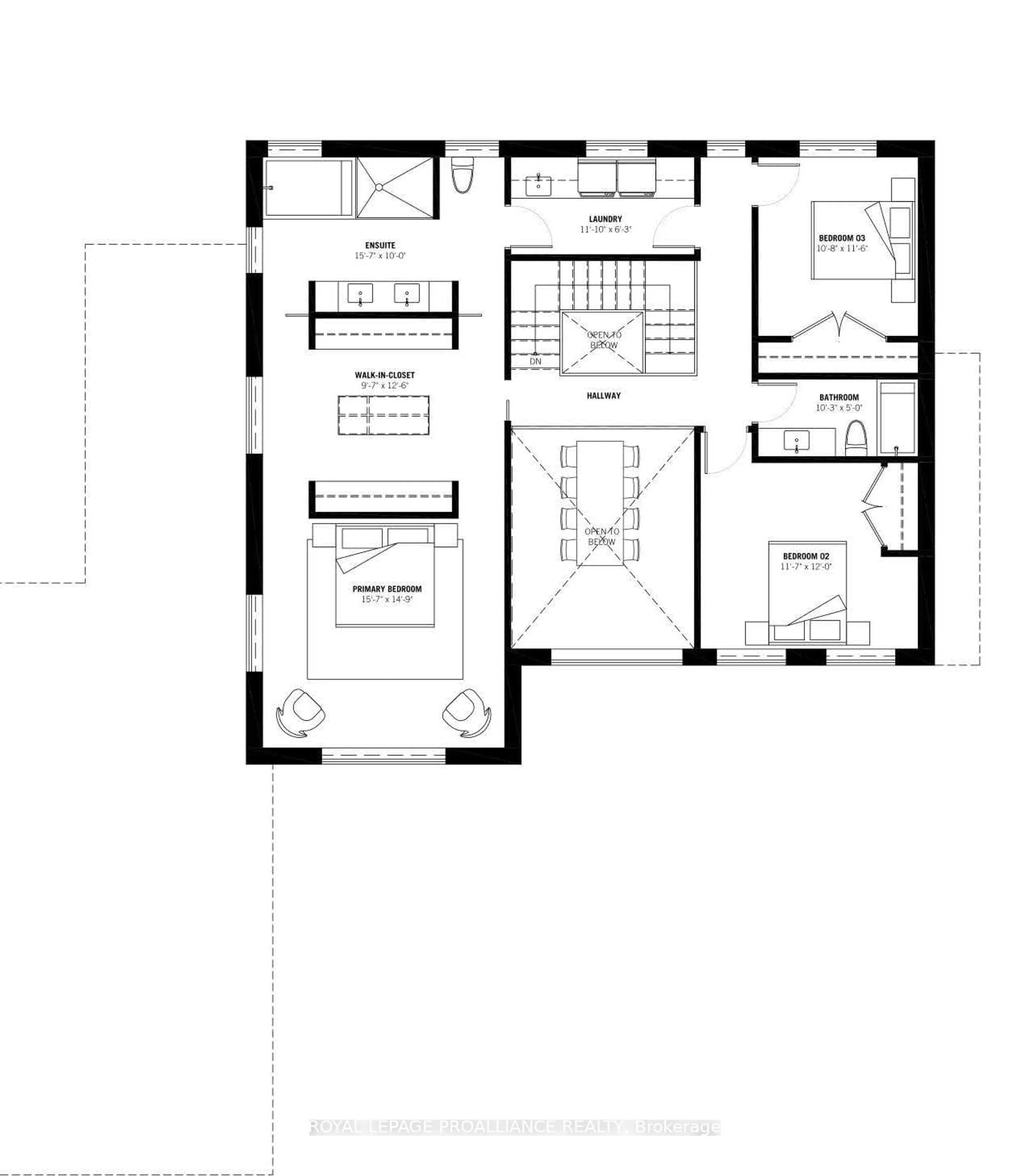
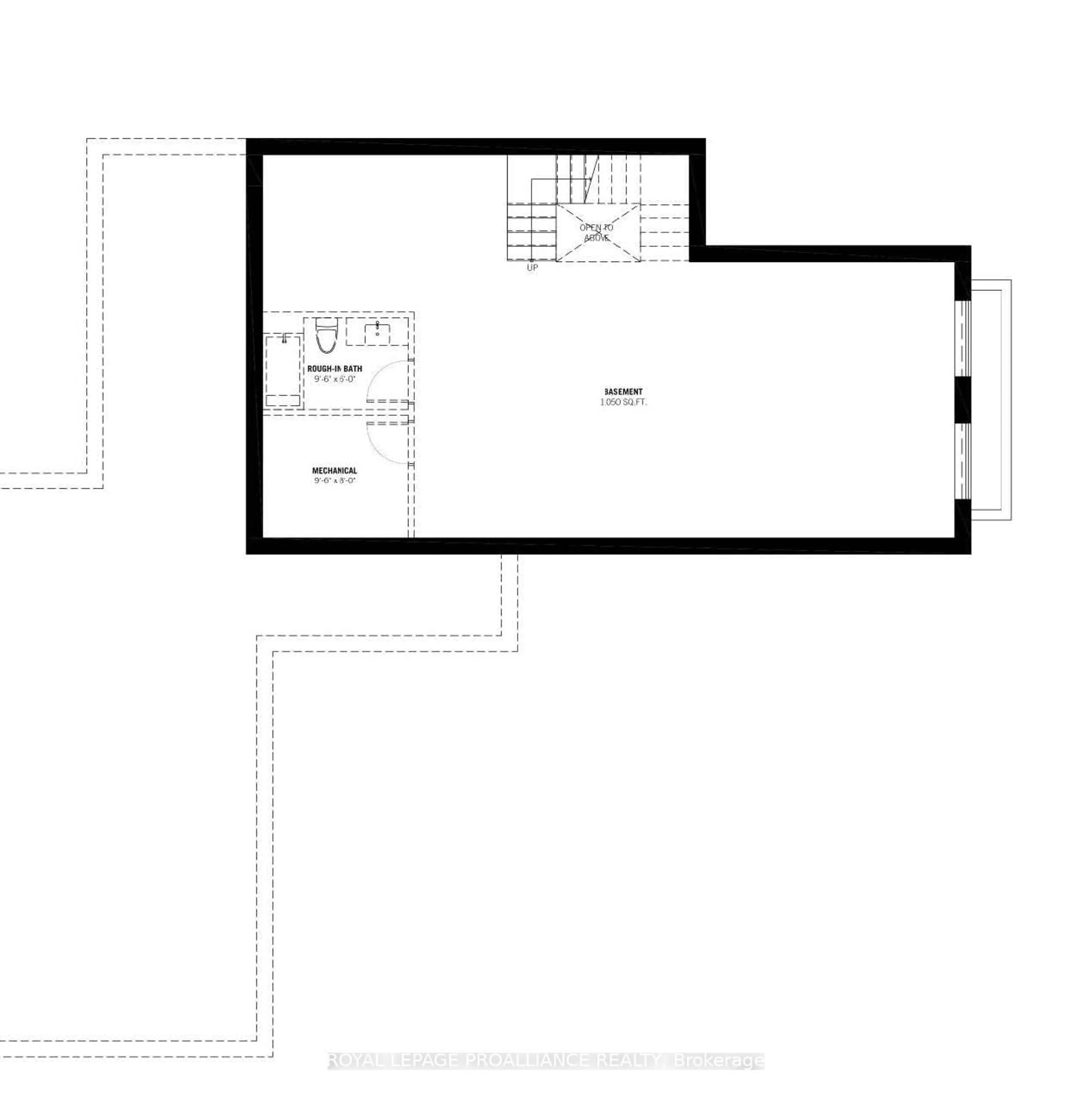
<---OPEN HOUSE TO BE HELD AT LOT 21-FOLLOW THE OPEN HOUSE DIRECTIONAL ARROWS--->The Ridgeview is a thoughtfully designed two-storey home offering 2,860 sqft of refined living space, ideal for those looking for room to grow without compromising on style or function. A striking front elevation and welcoming covered porch set the tone from the moment you arrive. The main floor is built for both everyday living and entertaining, featuring a spacious kitchen with generous island, separate dining room, and an expansive living room with open-to-above detail that adds light and architectural interest. A main floor powder room and dedicated laundry room add convenience, while the 2-car garage offers ample storage and practicality. Upstairs, the primary suite is a true retreat with a large walk-in closet and beautifully sized ensuite. Two additional bedrooms and a full bath complete the second level, providing comfort and privacy for family or guests. The unfinished basement offers over 2,300 sqft of additional potential, ready to be customized to suit your lifestyle. Situated in the sought-after Grafton Heights community, this home blends modern design with small-town charm. It offers town services, streetlights, and beautiful views of Lake Ontario just minutes away.
Property Details
Interior
Features
Exterior
Features
Parking
Garage spaces 2
Garage type Attached
Other parking spaces 4
Total parking spaces 6
Property History
7





