242 Lakeport Rd #18, St. Catharines, Ontario L2N 6V2
Contact us about this property
Highlights
Estimated valueThis is the price Wahi expects this property to sell for.
The calculation is powered by our Instant Home Value Estimate, which uses current market and property price trends to estimate your home’s value with a 90% accuracy rate.Not available
Price/Sqft$439/sqft
Monthly cost
Open Calculator
Description
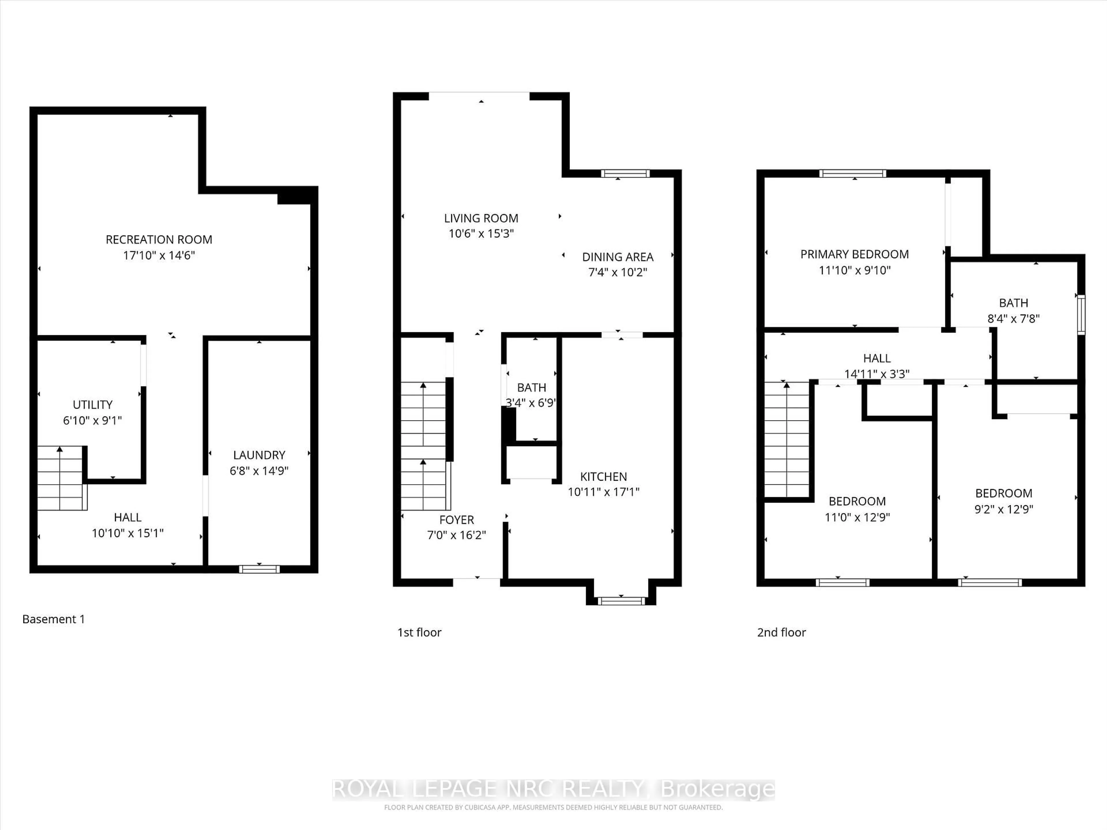
Welcome to this charming 1200 square foot end unit townhome conveniently located in Century Village. Featuring 3 well sized bedrooms and 1.5 bathrooms. The main floor offers a beautifully updated walkthrough kitchen with extra cabinets, adjacent open dining area, a well proportioned living room with patio door access to your private rear patio and an updated 2 piece bathroom. The upper floor includes 3 good sized bedrooms and a fully renovated bathoom with walk-in shower. The modern fully finished lower level includes a spacious recroom, laundry and the utility room. Parking is conveniently located right in front of this unit. The affordable $360.00 condominium fees include water, cable, common area maintenance and condominium insurance. Owner averages under $100/month for gas & hydro. Century Village is located in a desirable North end a short distance to Port Dalhousie's Lakeside Park beach, Waterfront walking trail, Port Weller's Sunset beach, the Welland Canal trail and many other great amenities like shopping and easy QEW access.
Property Details
Interior
Features
Main Floor
Dining
3.1 x 2.24Vinyl Floor / Open Concept
Kitchen
5.19 x 3.31Vinyl Floor / Renovated
Living
4.64 x 3.2Vinyl Floor / Open Concept / W/O To Patio
Exterior
Parking
Garage spaces -
Garage type -
Total parking spaces 1
Condo Details
Amenities
Bbqs Allowed, Visitor Parking
Inclusions
Property History
28









