9546 Tallgrass Ave, Niagara Falls, Ontario L2G 0Y2
Contact us about this property
Highlights
Estimated valueThis is the price Wahi expects this property to sell for.
The calculation is powered by our Instant Home Value Estimate, which uses current market and property price trends to estimate your home’s value with a 90% accuracy rate.Not available
Price/Sqft$301/sqft
Monthly cost
Open Calculator
Description
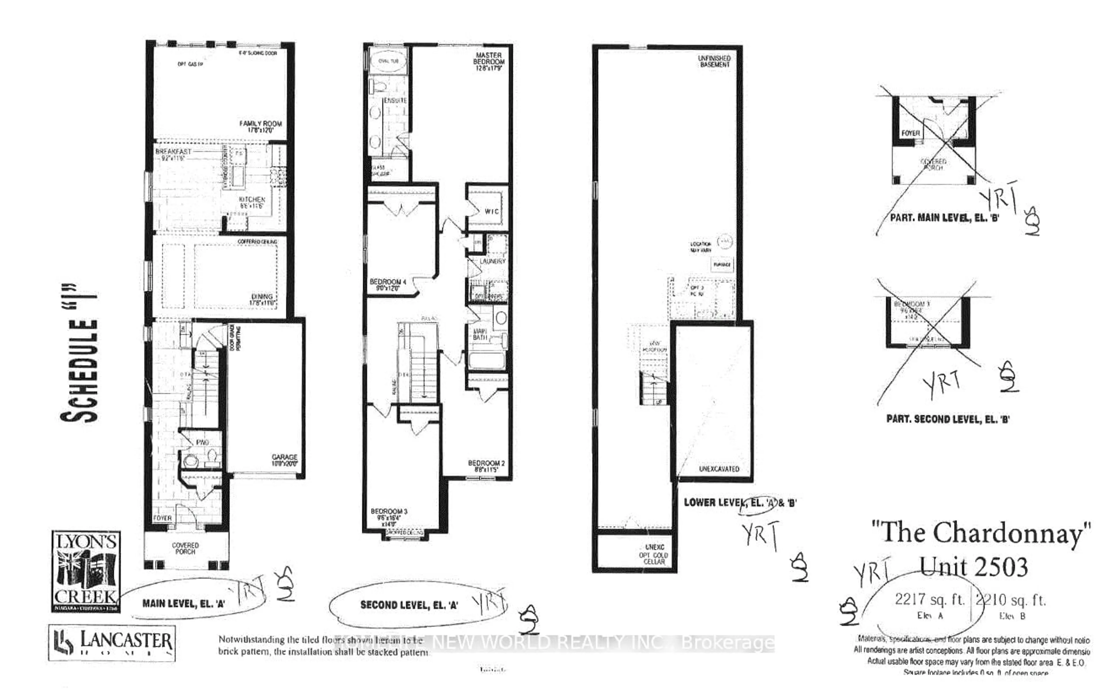
Nestled in the heart of a friendly neighbourhood. This charming property is perfectly suited for first-time buyers and growing families seeking a tranquil setting to call home. Hardly find over 2000 sqft. Boasting FOUR spacious bedrooms with TWO ENSUITE, this gem offers ample space and comfort for everyone. The exterior is equally impressive with a single car garage, additional parking for 2 cars in the driveway, and a fully fenced yard - perfect for children to play safely or for weekend BBQs. Step inside to discover a warm and inviting open kitchen and formal dining room. The second floor is offering ultimate Flooded with an abundance of natural light, the interior is bright and airy, enhancing the overall sense of space. The full basement offers endless possibilities for customization, whether you envision a playroom, home office, or gym. A delightful family home in a highly sought-after, quiet area. New floor for the 2nd floor, New painting for entire house! Only linked by Garage Likes detached House.
Property Details
Interior
Features
Main Floor
Kitchen
4.52 x 2.95Dining
4.52 x 2.8Family
4.5 x 3.06Exterior
Features
Parking
Garage spaces 1
Garage type Attached
Other parking spaces 2
Total parking spaces 3
Property History
49






