4119 Aberdeen Rd, Lincoln, Ontario L3J 0N6
Contact us about this property
Highlights
Estimated valueThis is the price Wahi expects this property to sell for.
The calculation is powered by our Instant Home Value Estimate, which uses current market and property price trends to estimate your home’s value with a 90% accuracy rate.Not available
Price/Sqft$373/sqft
Monthly cost
Open Calculator
Description
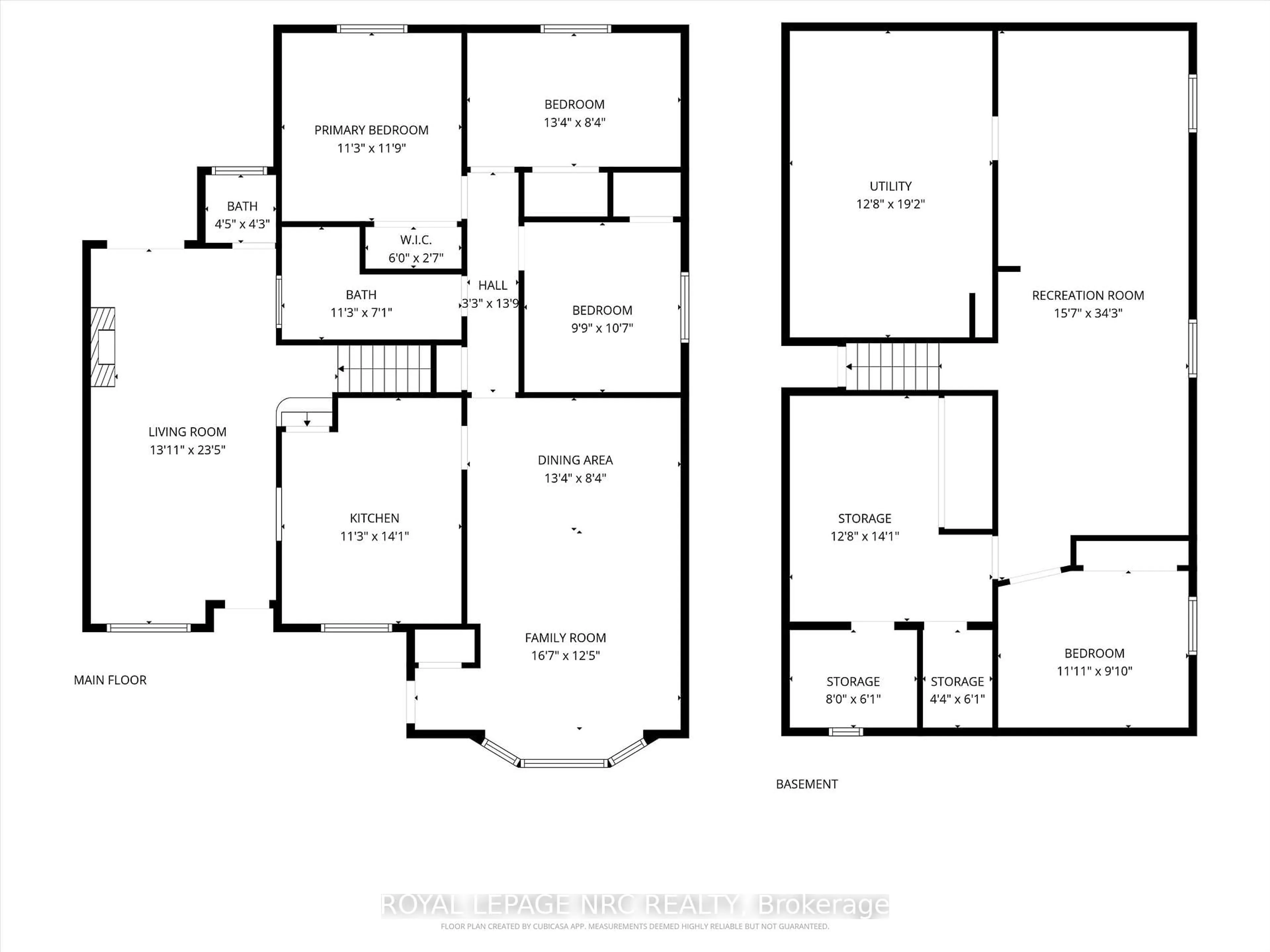
SOLID, AFFORDABLE, GREAT LOCATION! Rear view of vineyards and directly across from Greenbelt land, yet just a 2-minute drive to downtown Beamsville, this solid, brick 1,501 sq ft 3+1 bedroom, 2 bathroom (1+1) bungalow offers peaceful country living with city conveniences. Set on a generous sized lot with a double drive, this home enjoys vineyard views from the living room and serene forest views from the family and dining rooms. The bright and spacious main floor features a combined family room and dining area with original hardwood floors, a kitchen with ample wood cabinetry and including a dishwasher, three bedrooms with good closet space and a 4-piece bathroom. The former garage has been converted into a comfortable living room with an electric fireplace and sliding doors leading to the rear concrete deck with picturesque vineyard views, and includes a convenient 2-piece bathroom. The partially finished basement provides additional living space with a large rec room, fourth bedroom, laundry room, and a bonus storage room containing a cold storage/cantina and two additional large closets. Municipal water, a high-efficiency furnace, on-demand hot water heater, and central vac add to the home's practicality. Located less than 1 km from two estate wineries, 1 km to downtown Beamsville and just minutes to schools, shopping, restaurants, cafés, and easy QEW access for commuting, this property offers a rare blend of scenic surroundings and everyday convenience.
Property Details
Interior
Features
Main Floor
Living
7.13 x 3.43Kitchen
4.37 x 3.43Dining
4.06 x 2.54Family
4.06 x 3.78Exterior
Features
Parking
Garage spaces -
Garage type -
Total parking spaces 4
Property History
47






