103 Lindgren Rd, Huntsville, Ontario P1H 1Y2
Contact us about this property
Highlights
Estimated valueThis is the price Wahi expects this property to sell for.
The calculation is powered by our Instant Home Value Estimate, which uses current market and property price trends to estimate your home’s value with a 90% accuracy rate.Not available
Price/Sqft$421/sqft
Monthly cost
Open Calculator
Description
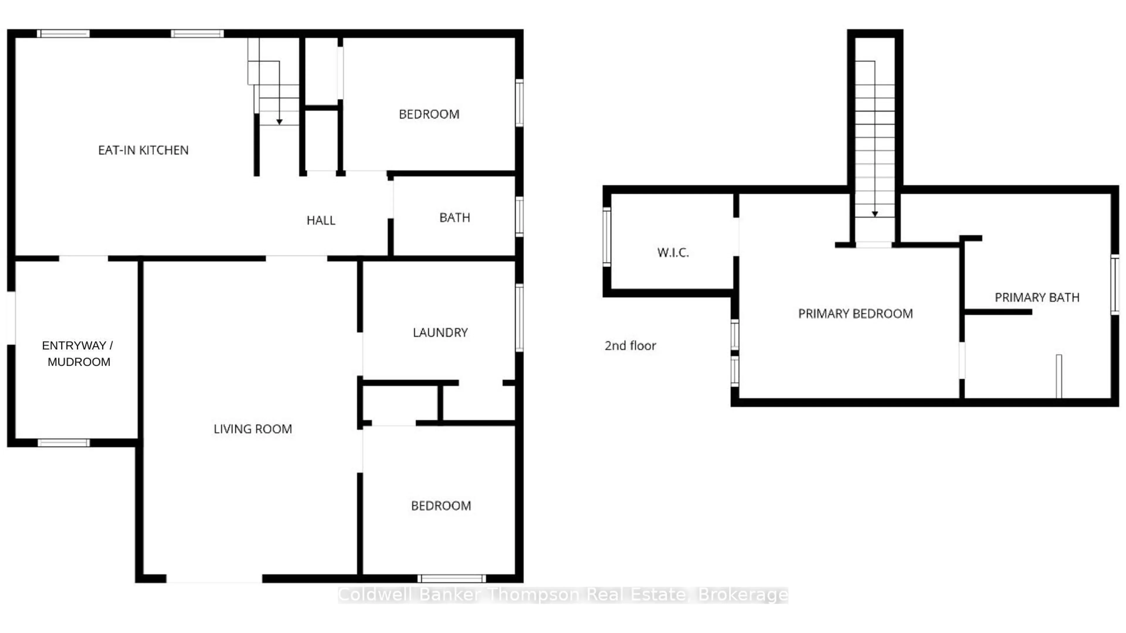
Set back on a tree-lined half-acre lot with flexible M1 zoning, this thoughtfully updated 1.5-storey home offers comfortable year-round living with exceptional versatility. Meticulously cared for and move-in ready, the property features a long list of upgrades including an on-demand hot water system, forced-air natural gas furnace, central air conditioning, and more. Convenience is key with full municipal services, high-speed internet ideal for a home-based business, easy access to Highway 11, and Downtown Huntsville just five minutes away. The interior layout is both practical and welcoming. A generous side-entry mudroom/office leads into a light-filled kitchen highlighted by butcher block countertops, floating shelving, stainless steel appliances, and a gas range. The renovated kitchen flows seamlessly into the open dining area, creating an ideal space for everyday living and entertaining. The living room offers a warm gathering space with garden doors opening onto the front patio and landscaped yard. Two well-sized bedrooms are located on the main level, along with a 4-piece bathroom and a dedicated laundry room complete with stainless utility sink and additional storage. Upstairs, the entire second floor is reserved for the primary suite, featuring a spacious walk-in closet and a spa-inspired 4-piece ensuite with custom tile and glass shower plus a freestanding soaker tub. Outside, enjoy a level, spacious lawn, newer partially wrap-around deck, along with a 13' x 30' detached garage ideal for a workshop, storage, or hobbies. Every detail of this home has been carefully considered, offering a rare combination of comfort, function and location, a turn-key property ready to be enjoyed and appreciated for years to come.
Upcoming Open House
Property Details
Interior
Features
Main Floor
Laundry
2.918 x 2.21Kitchen
4.663 x 4.094Eat-In Kitchen
Living
5.887 x 4.055Office
3.562 x 2.298Exterior
Features
Parking
Garage spaces 1
Garage type Detached
Other parking spaces 4
Total parking spaces 5
Property History
40









