Contact us about this property
Highlights
Estimated valueThis is the price Wahi expects this property to sell for.
The calculation is powered by our Instant Home Value Estimate, which uses current market and property price trends to estimate your home’s value with a 90% accuracy rate.Not available
Price/Sqft-
Monthly cost
Open Calculator
Description
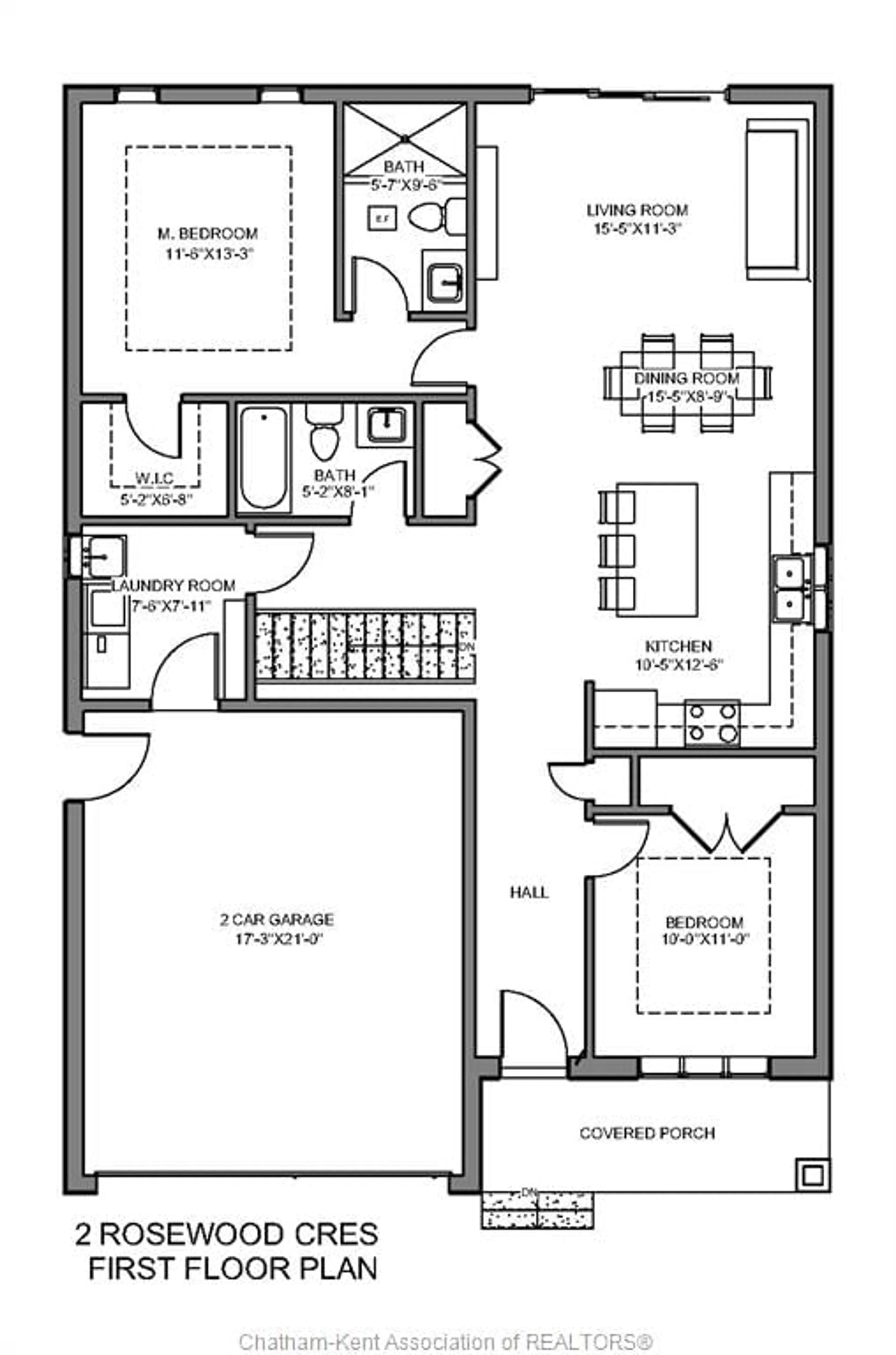
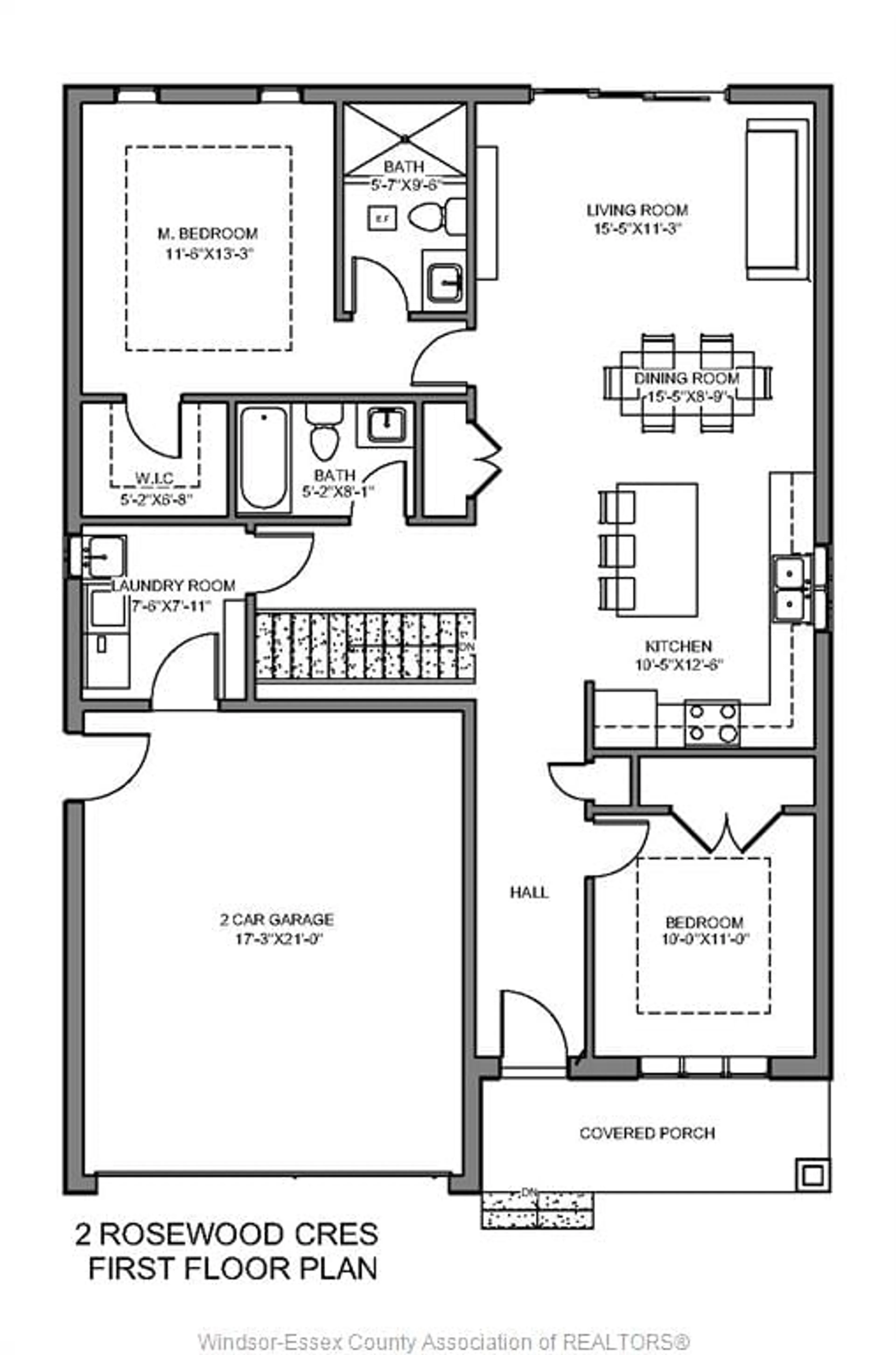
Searching for a fully finished ranch at an unbeatable price? This Liovas Homes property offers a thoughtfully designed layout featuring 2 bedrooms and 3 bathrooms, highlighted by hardwood and ceramic flooring, along with sleek quartz countertops - perfect for modern living space, making this home ideal for a growing family or flexible lifestyle needs. Ready for early spring 2026 occupancy Call listing agent for more details or to schedule a private viewing. 519-791-3032
Property Details
Interior
Features
MAIN LEVEL Floor
FOYER
KITCHEN
10.5 x 12.6EATING AREA
15.5 x 8.9LIVING ROOM / FIREPLACE
15.5 x 11.3Exterior
Features
Property History
4





