130 Addison Ave, Lucan Biddulph, Ontario N0M 2J0
Contact us about this property
Highlights
Estimated valueThis is the price Wahi expects this property to sell for.
The calculation is powered by our Instant Home Value Estimate, which uses current market and property price trends to estimate your home’s value with a 90% accuracy rate.Not available
Price/Sqft$374/sqft
Monthly cost
Open Calculator
Description
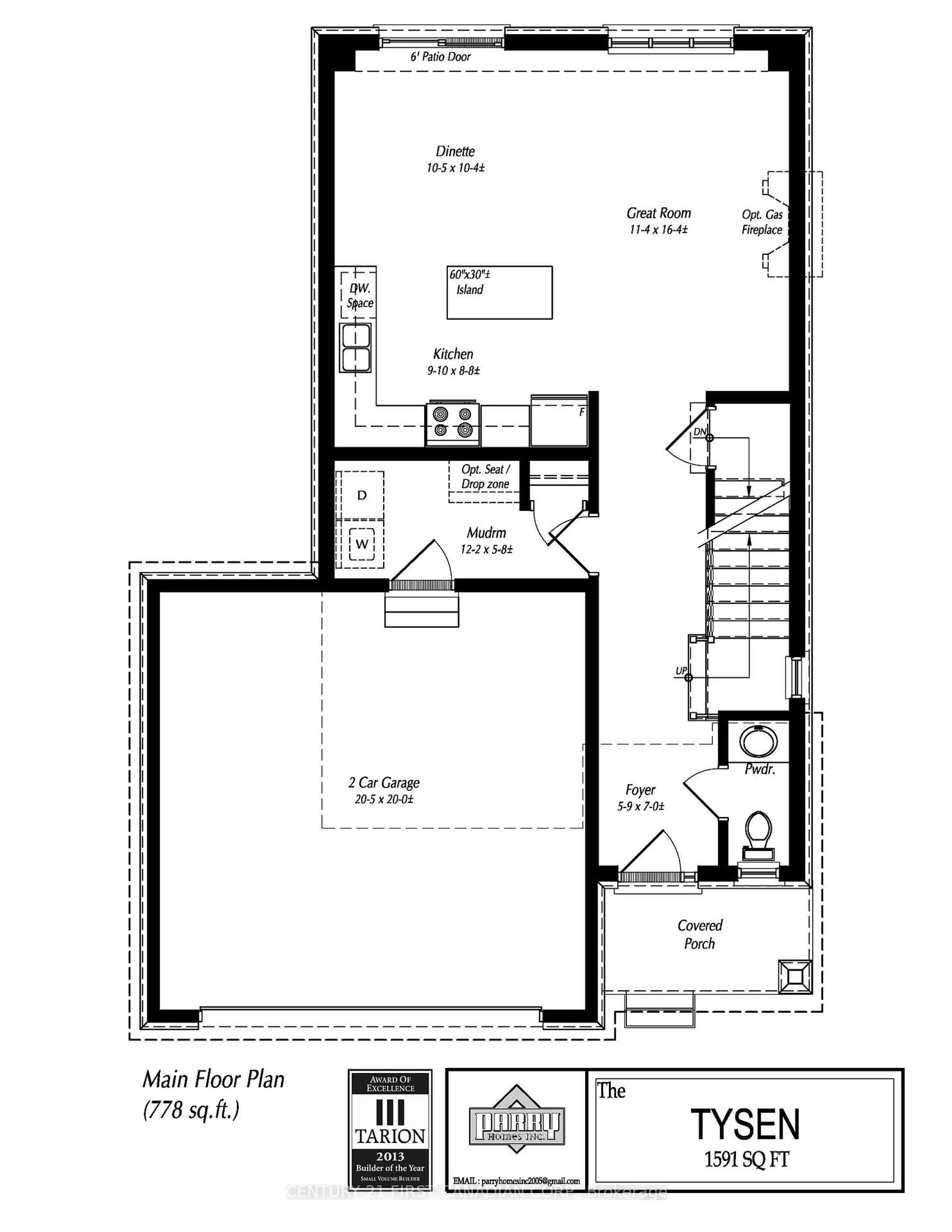
TO BE BUILT - Welcome to the Tysen Model by Parry Homes Inc., coming soon to the growing community of Lucan, Ontario. This thoughtfully designed home is ideal for first-time buyers, growing families, or anyone seeking a practical, low-maintenance lifestyle without compromising on style or comfort. Step inside to a bright, open-concept main floor where the living room, dining area, and kitchen flow seamlessly together-perfect for everyday living and entertaining. The kitchen serves as the heart of the home, complete with modern cabinetry, sleek quartz countertops, and a spacious island for gathering. Large main floor windows flood the space with natural light, creating a warm and inviting atmosphere throughout. Upstairs, the primary bedroom offers a private ensuite, providing a peaceful retreat at the end of the day. Two additional bedrooms share a well-appointed 4-piece bathroom, ensuring comfort and convenience for family or guests. Enjoy the outdoors in your private backyard-an ideal space for relaxing, gardening, or entertaining. With plenty of room for a patio set and play area, it's perfectly suited for making the most of outdoor living in this charming community. List price reflects the anticipated benefit of a proposed Government HST rebate.
Property Details
Interior
Features
Main Floor
Great Rm
3.47 x 5.0Dining
3.2 x 3.17Kitchen
3.0 x 2.68Centre Island
Mudroom
3.72 x 1.77Combined W/Laundry
Exterior
Features
Parking
Garage spaces 2
Garage type Attached
Other parking spaces 2
Total parking spaces 4
Property History
4







