41 Elvira Cres, London South, Ontario N6E 2N1
Contact us about this property
Highlights
Estimated valueThis is the price Wahi expects this property to sell for.
The calculation is powered by our Instant Home Value Estimate, which uses current market and property price trends to estimate your home’s value with a 90% accuracy rate.Not available
Price/Sqft$370/sqft
Monthly cost
Open Calculator
Description
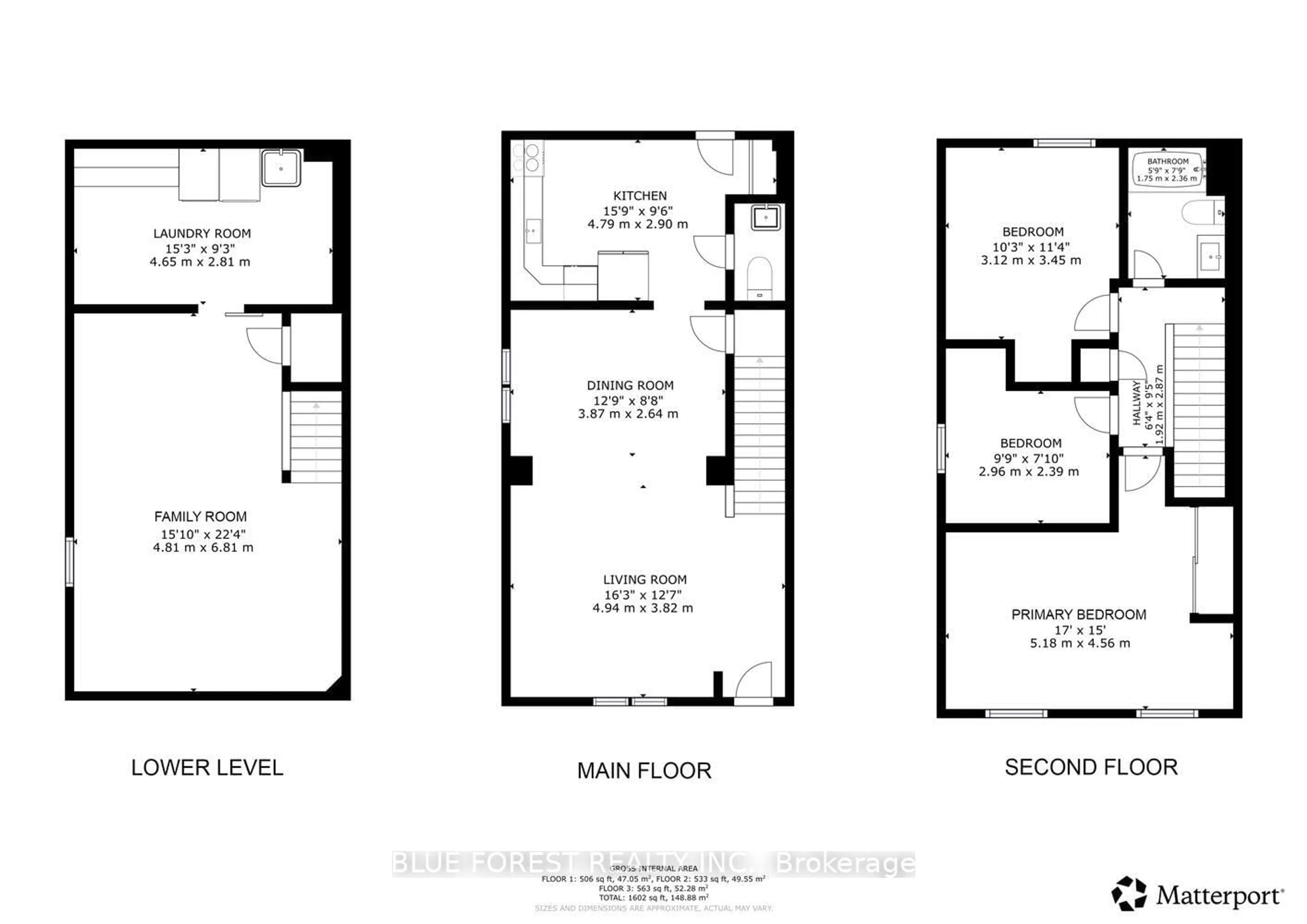
Welcome to this top-notch semi-detached home in White Oaks. Bright living room opens to dedicated dining area-both with modern laminate flooring. Newer white kitchen (2020) with ample cabinets, stainless appliances and door to the rear yard. Three bedrooms on upper level. Primary bedroom with lots of space. Modernized main bathroom. Lower-level family room is the perfect spot for movie nights. Quiet crescent location with fenced yard is great for kids and pets. Mechanical updates include gas furnace and A/C, some windows. All of this in a convenient location close to schools, shopping and highway access. Possession is flexible.
Upcoming Open House
Property Details
Interior
Features
Main Floor
Living
3.7 x 3.58Dining
3.81 x 2.87Kitchen
3.78 x 2.69Exterior
Features
Parking
Garage spaces -
Garage type -
Total parking spaces 3
Property History
36





