4076 BIG LEAF Tr, London South, Ontario N6P 0K2
Contact us about this property
Highlights
Estimated valueThis is the price Wahi expects this property to sell for.
The calculation is powered by our Instant Home Value Estimate, which uses current market and property price trends to estimate your home’s value with a 90% accuracy rate.Not available
Price/Sqft$394/sqft
Monthly cost
Open Calculator
Description
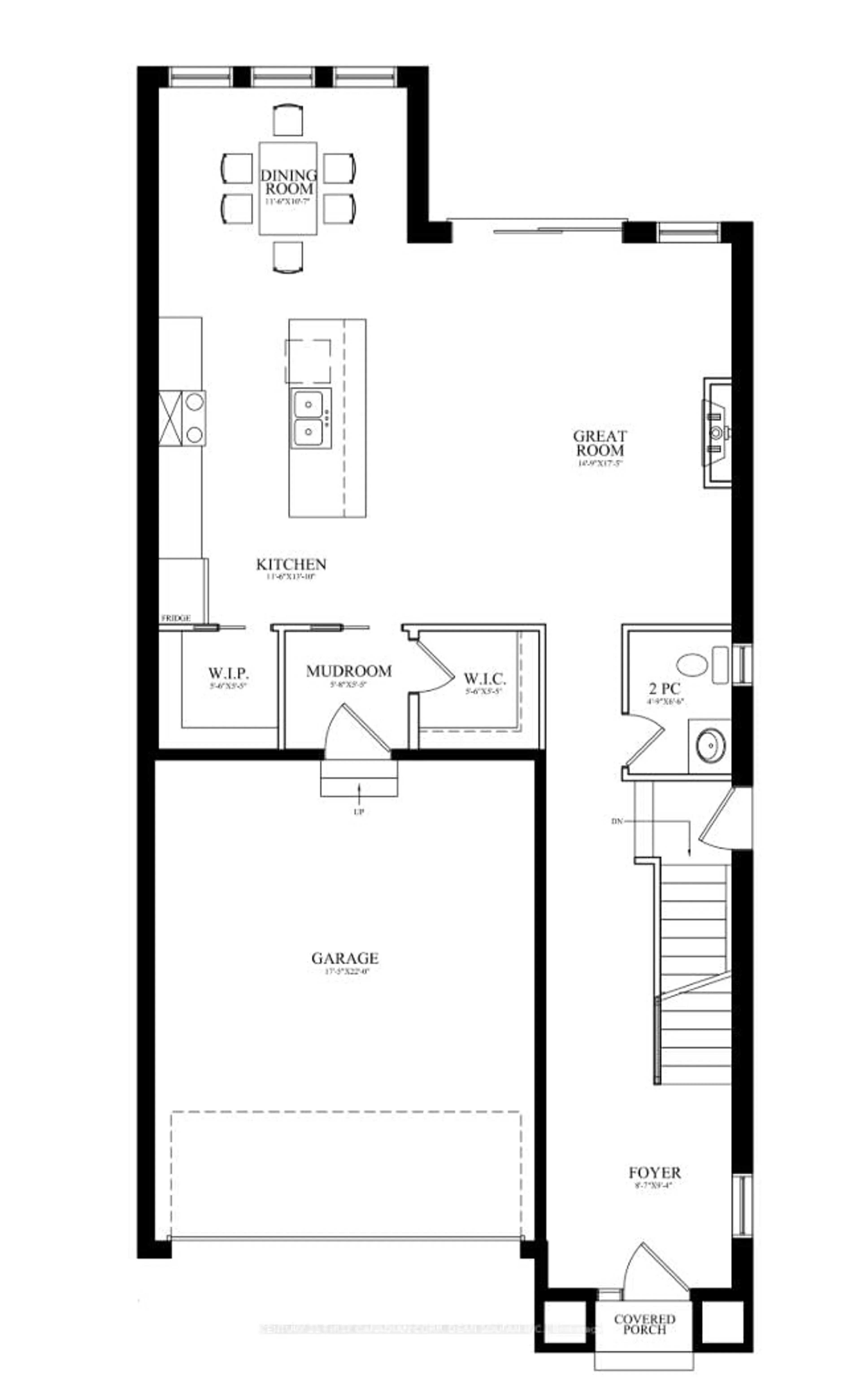
Completed! Quick closing available! Finished basement with separate entrance! Welcome to 4076 Big Leaf Trail, located in the sought after Magnolia Fields community in Lambeth, Ontario. This impressive Scobey plan by Blackrail Homes Inc. offers approximately 3,158 sq ft of beautifully designed space and includes an attached double car garage. Step inside to discover elegant details such as arched doorways, hardwood flooring, and a custom oak staircase. The great room features a sleek modern fireplace and flows seamlessly into the designer kitchen, complete with a walk in pantry. Upstairs, you will find four well appointed bedrooms, including a luxurious primary retreat with a walk in closet and spa inspired 5 piece ensuite featuring a double vanity, tiled shower, and freestanding soaker tub positioned beneath a large window for an abundance of natural light. The second floor also offers a convenient laundry room with built in cabinetry, countertops, and a laundry sink. The second bedroom features its own private 3 piece ensuite and walk in closet, while the third and fourth bedrooms share a stylish Jack and Jill 5 piece bathroom with a tiled tub and shower combination. A separate side entrance leads to the finished basement, offering a large living area, bedroom, 3 piece bathroom, and oversized windows that fill the space with natural light. Built by Blackrail Homes, a family run builder known for quality craftsmanship and attention to detail, this home reflects a commitment to creating spaces that feel truly custom. Magnolia Fields offers an ideal blend of comfort and convenience, just minutes from Highways 401 and 402, as well as schools, shopping, restaurants, and everyday amenities. Price includes proposed 2026 HST rebates. Final rebate amount is subject to the passing of Provincial and Federal legislation and purchaser eligibility as per government guidelines, including primary residence or qualifying rental.
Property Details
Interior
Features
Main Floor
Foyer
2.74 x 2.38Great Rm
5.36 x 5.84Fireplace
Dining
3.51 x 3.63Kitchen
3.51 x 4.27Exterior
Features
Parking
Garage spaces 2
Garage type Attached
Other parking spaces 2
Total parking spaces 4
Property History
49


























