763 Josephine St, Prescott, Ontario K0E 1T0
Contact us about this property
Highlights
Estimated valueThis is the price Wahi expects this property to sell for.
The calculation is powered by our Instant Home Value Estimate, which uses current market and property price trends to estimate your home’s value with a 90% accuracy rate.Not available
Price/Sqft$467/sqft
Monthly cost
Open Calculator
Description
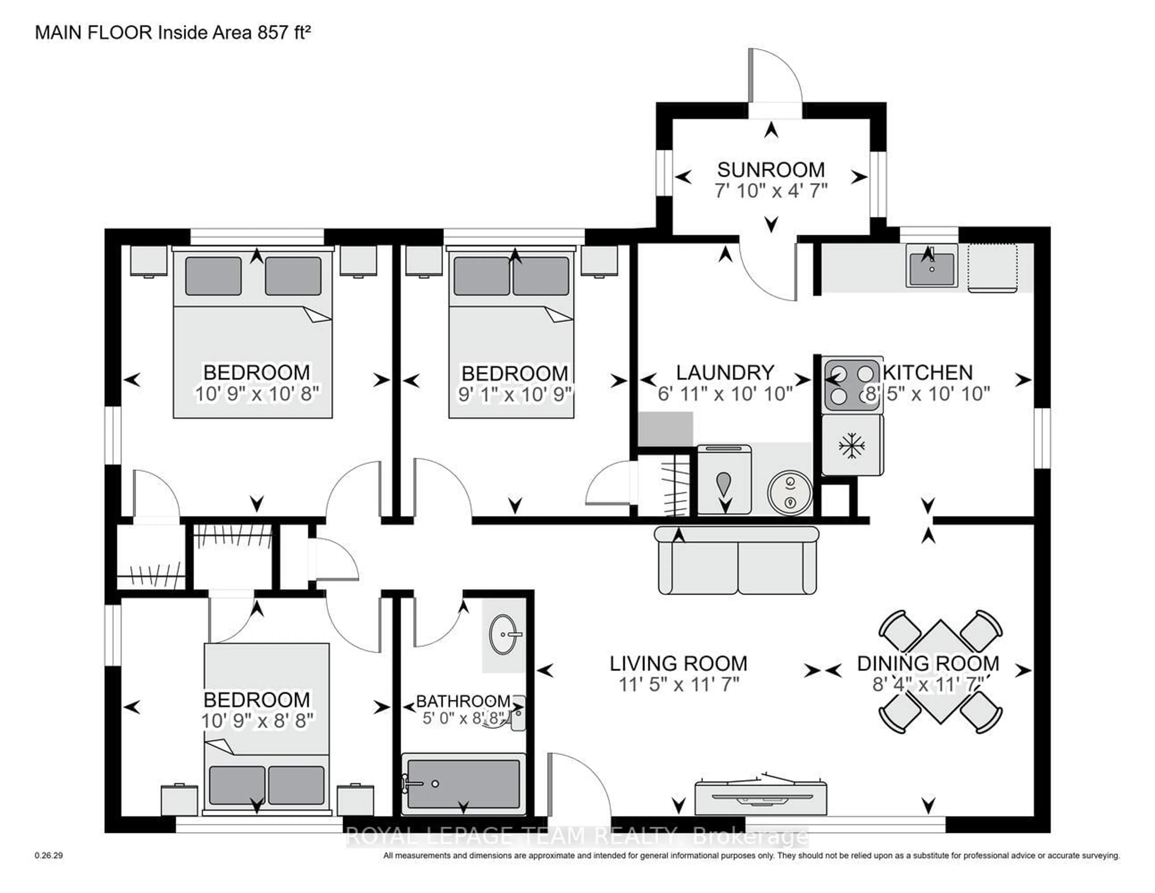
This is what everyone is coveting these days; 3 bedroom, well maintained bungalow on a quiet street. Single full 4 piece bath, detached garage with large side workspace, new stainless DW and fridge. No full basement, crawl space only. Fantastic gleaming hardwood floors throughout. Freshly painted and refreshed. NEW bathroom and kitchen. 10KW Generac. Front and back sitting areas/ porches. Private yard. Open concept. Close to all amenities including schools, arena, shopping, convenience stores, churches and parks. You are only a short 1 hr drive to the city, and near all major transportation including highways 2, 401, and 416, & via rail. Minutes to the International Bridge to the USA and Prescott is situated on the St. Lawrence Seaway. Lots of activities, markets, history and social clubs. Town has much to offer. www.prescott.ca . (HWT 2019, HVAC 2022, insulation upgrade 2022, dishwasher 2023, Sump Pump 2023, Generac 2025, Front and back porches 2025, new kitchen 2023, All in One W/D 2022, Fridge 2022, Paint 2026)
Property Details
Interior
Features
Ground Floor
Living
2.11 x 3.52Laundry
2.11 x 3.29Kitchen
2.56 x 3.29Primary
3.27 x 3.25Exterior
Features
Parking
Garage spaces 1
Garage type Detached
Other parking spaces 3
Total parking spaces 4
Property History
29






