154 Doctor Agnes Craine Dr, Smiths Falls, Ontario K7A 0A5
Contact us about this property
Highlights
Estimated valueThis is the price Wahi expects this property to sell for.
The calculation is powered by our Instant Home Value Estimate, which uses current market and property price trends to estimate your home’s value with a 90% accuracy rate.Not available
Price/Sqft$475/sqft
Monthly cost
Open Calculator
Description
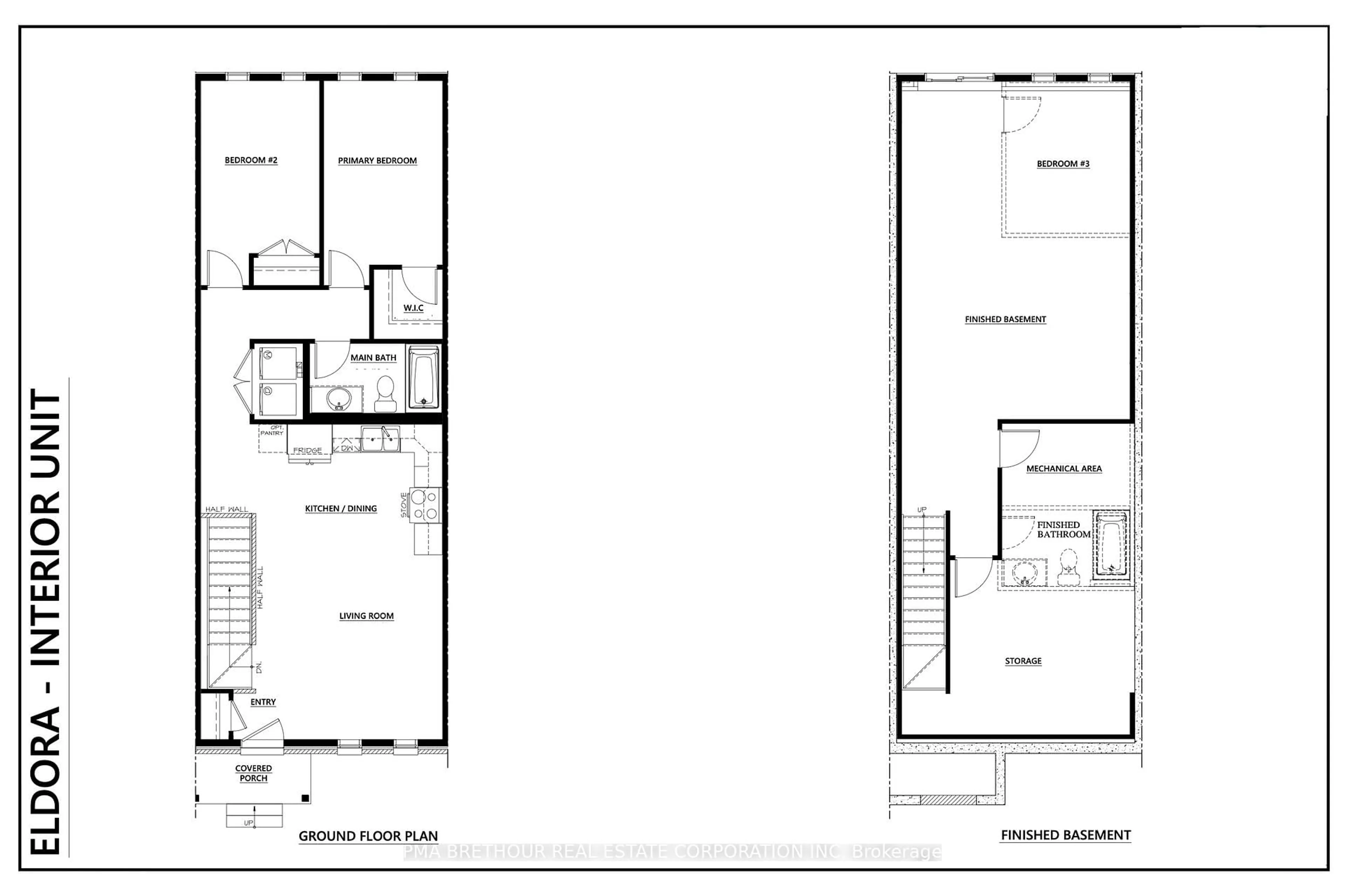
Welcome to the ELDORA, proudly built by Park View Homes a name synonymous with quality craftsmanship, energy efficiency, and thoughtful design. ENERGY STAR-certified home offers beautifully finished living space, perfectly tailored for modern living. The main floor features a bright, open-concept layout that seamlessly blends comfort and functionality. The contemporary kitchen flows into the spacious living and dining areas, creating an inviting atmosphere ideal for both everyday living and entertaining. Two generously sized bedrooms are located on this level, including a primary bedroom complete with a walk-in closet, offering both comfort and ample storage. The finished walkout basement provides incredible flexibility with a large rec room, a third bedroom that can easily serve as a home office, and a full bathroom. This versatile space is perfect for growing families, accommodating guests, or creating a dedicated work-from-home environment. Built with triple-glazed windows and airtightness, this home is designed to deliver long-term energy savings, enhanced comfort, and lasting value. This home is backed by a Tarion warranty for your peace of mind. Experience the benefits of new construction in a thoughtfully designed home that combines style, efficiency, and functionality in every detail. The ELDORA model is ready to welcome you home
Property Details
Interior
Features
Main Floor
Foyer
1.01 x 1.85Living
4.01 x 4.04Kitchen
2.844 x 4.04Combined W/Dining
Bathroom
1.52 x 2.87Exterior
Features
Parking
Garage spaces -
Garage type -
Total parking spaces 1
Property History
 14
14






