101 Staples Blvd, Smiths Falls, Ontario K7A 0B8
Contact us about this property
Highlights
Estimated valueThis is the price Wahi expects this property to sell for.
The calculation is powered by our Instant Home Value Estimate, which uses current market and property price trends to estimate your home’s value with a 90% accuracy rate.Not available
Price/Sqft$370/sqft
Monthly cost
Open Calculator
Description
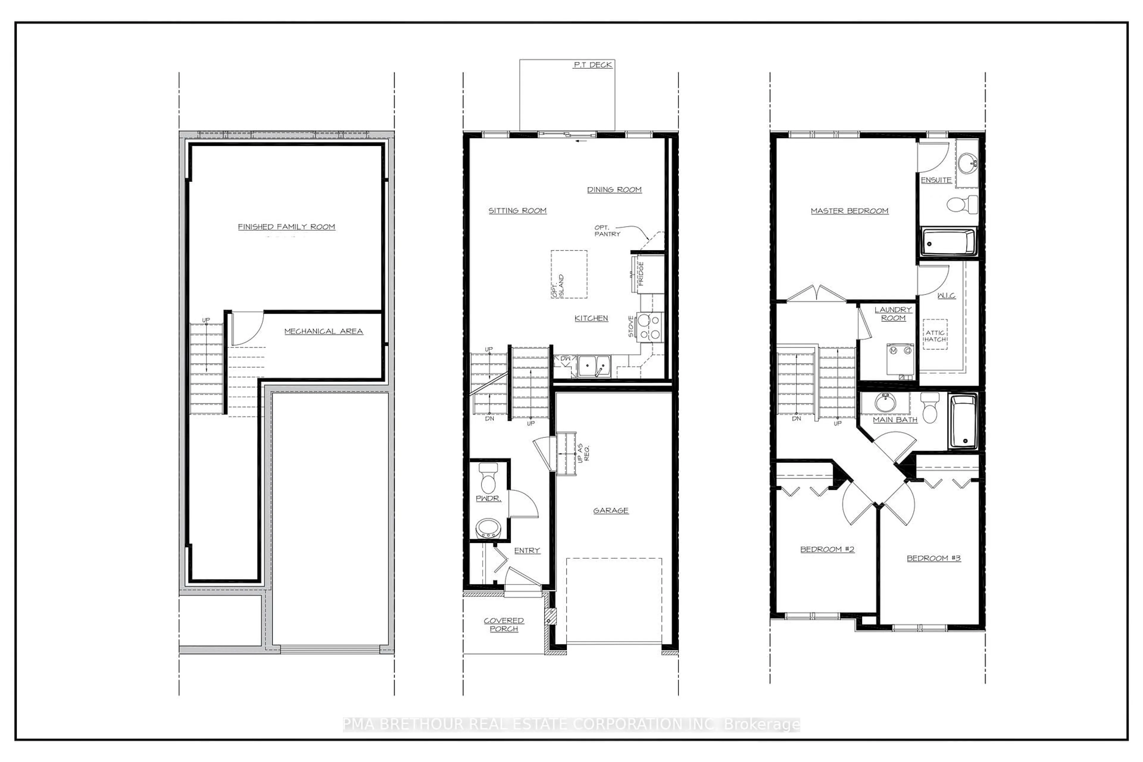
This brand-new ETSON townhome by Park View Homes offers the perfect opportunity to step into homeownership, nestled in the charming town of Smiths Falls, backing onto serene greenspace. With 3 bedrooms and 2.5 bathrooms, this never-lived-in home is a true gem. Enjoy the peace of mind that comes with Tarion warranty, energy-efficient construction, and modern finishes throughout. The open-concept main floor boasts a bright and inviting living and dining area, highlighted by large windows that flood the space with natural light. A rear deck offers a seamless extension of the living area, ideal for relaxing or entertaining. The chef-ready kitchen features stainless steel appliances, a generous center island, and contemporary cabinetry that will delight any home cook. Upstairs, you will find two spacious bedrooms and a full bathroom. A few steps up, the private primary suite awaits, complete with a large walk-in closet and a beautiful ensuite featuring a walk-in shower. Convenience is key, with upper level laundry and a finished family room in the basement, providing additional space to unwind and entertain.This brand-new home is move-in ready and waiting for you. Experience the benefits of new construction and the peaceful surroundings of greenspace all while being just minutes from local amenities and transportation routes.
Property Details
Interior
Features
Main Floor
Kitchen
3.2 x 2.87Dining
2.87 x 2.489Sitting
5.28 x 2.489Exterior
Features
Parking
Garage spaces 1
Garage type Attached
Other parking spaces 1
Total parking spaces 2
Property History
18






