43 Parkland Circle #Lot 46, Quinte West, Ontario K8V 0R3
Contact us about this property
Highlights
Estimated valueThis is the price Wahi expects this property to sell for.
The calculation is powered by our Instant Home Value Estimate, which uses current market and property price trends to estimate your home’s value with a 90% accuracy rate.Not available
Price/Sqft$401/sqft
Monthly cost
Open Calculator
Description
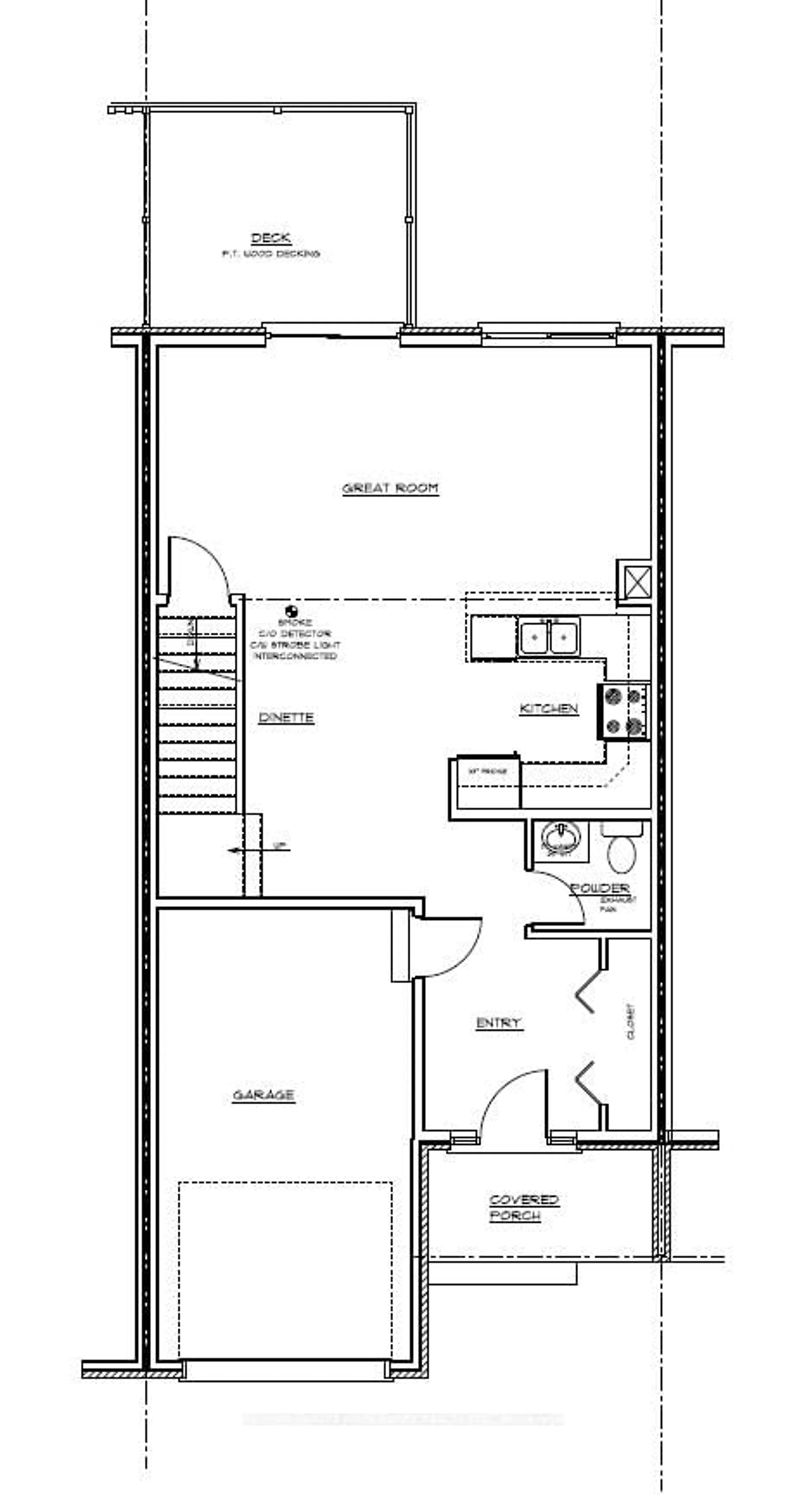
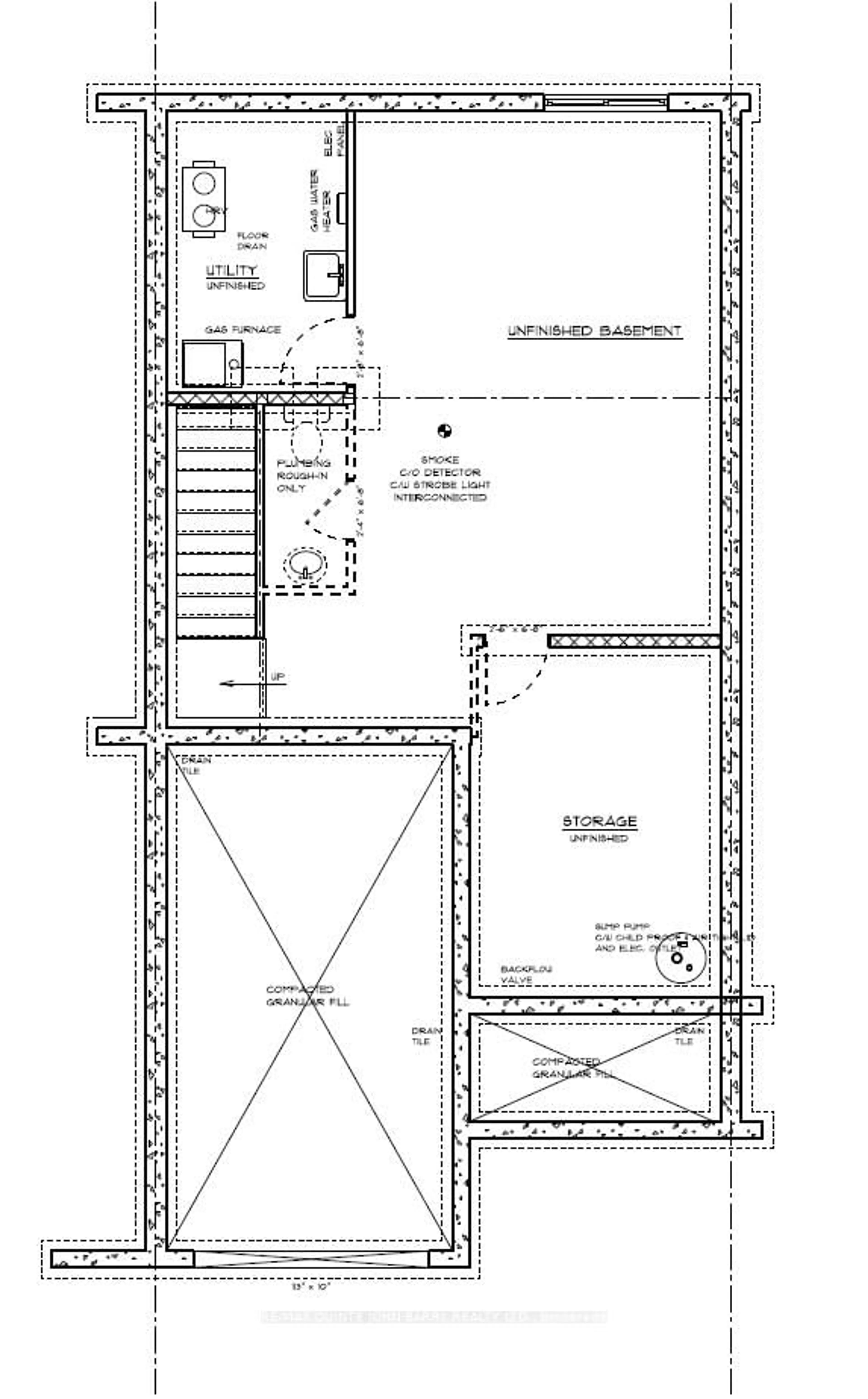
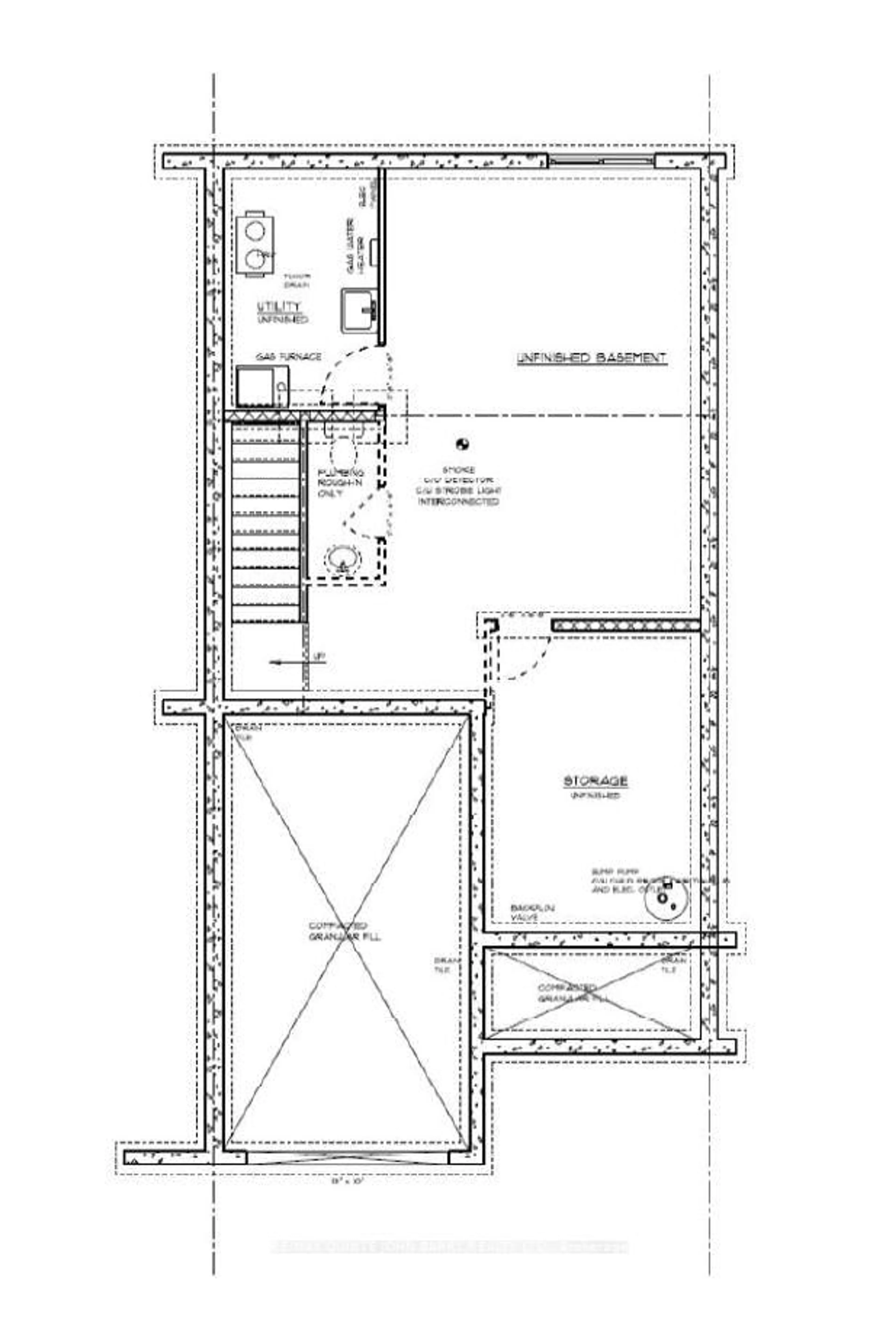
Built by Klemencic Homes, Welcome to the Cortland Model, a spacious 1,446 sq ft two-storey townhome thoughtfully designed with modern family living in mind, located in Phase 3 of Hillside Meadows - Parkland Circle. Striking brick and stone exterior details paired with sleek composite finishes create elegant curb appeal. Step inside to a bright, spacious foyer with a large closet, leading into an open-concept, carpet-free main floor. The stylish kitchen flows seamlessly into the dining area and generous great room, complete with a walk-out to the deck, ideal for entertaining or relaxing. A convenient 2-piece powder room and interior access to the attached garage complete this level. Upstairs, you'll find three well-appointed bedrooms and a full 4-piece bath. The primary bedroom features a walk-in closet, while the second-floor laundry closet adds everyday convenience. Interior selections are the choice of the buyer, allowing you to personalize the home to suit your style. The unfinished lower level offers excellent future potential for a recreation room, storage area, 2-piece bath, and utility room. Ideally located in the west end, close to Highway 401, elementary and secondary schools, shopping plazas, restaurants, Tim Hortons, Walmart, medical and dental offices, and a wide range of retail and services. Occupancy anticipated mid-June 2026. Backed by a 7-year Tarion Warranty. Model home available to view.
Upcoming Open House
Property Details
Interior
Features
Main Floor
Great Rm
6.7 x 3.45Combined W/Dining
Kitchen
5.53 x 2.84Exterior
Features
Parking
Garage spaces 1
Garage type Attached
Other parking spaces 2
Total parking spaces 3
Property History
5






