781 Carson Rd, Madoc, Ontario K0K 2K0
Contact us about this property
Highlights
Estimated valueThis is the price Wahi expects this property to sell for.
The calculation is powered by our Instant Home Value Estimate, which uses current market and property price trends to estimate your home’s value with a 90% accuracy rate.Not available
Price/Sqft$590/sqft
Monthly cost
Open Calculator
Description
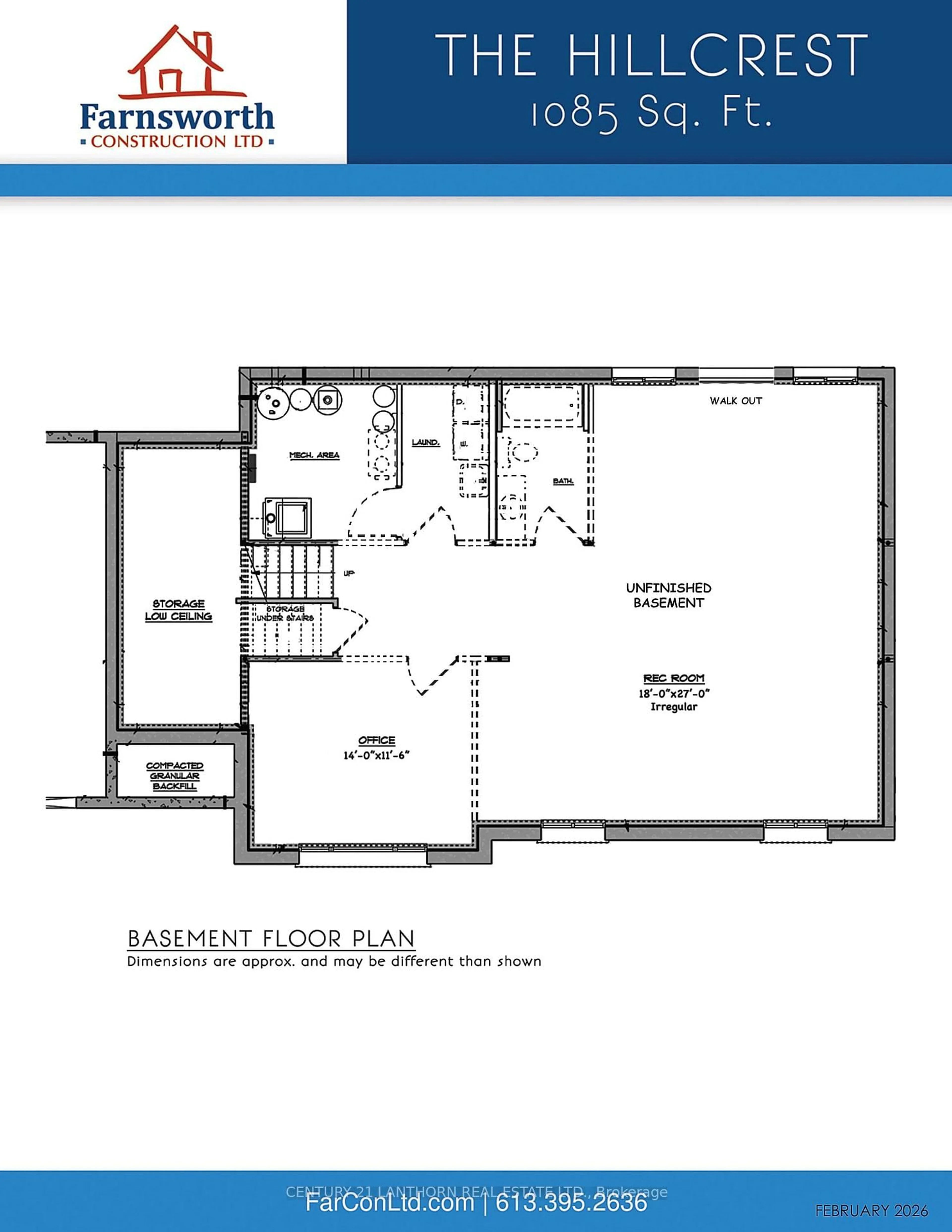
Looking for a brand-new home in the country? Here's your opportunity to personalize it before construction even begins. Built by Farnsworth Construction, the popular Hillcrest model offers 1,407 sq. ft. of thoughtfully designed main-level living, plus a full unfinished walk-out basement with a bathroom rough-in and plenty of space to customize to your needs. The main level welcomes you with a spacious foyer featuring three convenient entrances. Enjoy open-concept kitchen and dining areas with direct access to a covered deck overlooking the backyard , perfect for relaxing or entertaining. The bright living room boasts vaulted ceilings, and the layout is completed by three bedrooms and two full bathrooms. Ceramic tile accents the foyer and bathrooms, while durable laminate flooring runs throughout the main level.Additional highlights include. Attached double garage with insulated doors and openers, Gentek horizontal vinyl siding, Natural gas furnace and central A/C and full Tarion warranty coverage. Ideally located on a paved road with easy access to Belleville and Highway 401, this home offers the perfect balance of rural living and commuter convenience. Not quite what you're looking for? Additional rural lot options are available , we'd be happy to help you find the perfect fit.
Property Details
Interior
Features
Exterior
Features
Parking
Garage spaces 2
Garage type Attached
Other parking spaces 4
Total parking spaces 6
Property History
3




