30 Upper Mall Way #1902A, Vaughan, Ontario L4J 0L7
Contact us about this property
Highlights
Estimated valueThis is the price Wahi expects this property to sell for.
The calculation is powered by our Instant Home Value Estimate, which uses current market and property price trends to estimate your home’s value with a 90% accuracy rate.Not available
Price/Sqft$825/sqft
Monthly cost
Open Calculator
Description
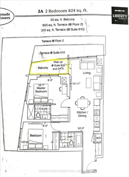
**CORNER UNIT 2 BED 2 BATH** Experience Luxury in This Stunning Sun Filled Southwest Facing Corner Unit at Promenade Park Towers In Thornhill & Enjoy Breathtaking Unobstructed Views. This Unit Boasts Over 820 Sqft of Thoughtfully Designed Living Space with a Very Practical Layout. Contemporary Kitchen Features an Open Concept Design w/ Stainless Steel Appliances, Centre Island, & More. Just Steps From The Promenade Shopping Centre, T&T Supermarket, Variety Of Restaurants, & Much More. Extremely Convenient Access To Public Transit & Major Highways. Top-Tier Amenities Including: Fitness Center, Yoga Studio, Golf Simulator, Movie Theatre, Half Acre Green Roof Terrace, Cyber, Sports and Study Lounges, Private Dining Rooms, Pet-Friendly Facilities, Children Friendly Indoor & Outdoor Play Areas. Don't Miss This Opportunity to Live In a Brand New Unit w/ Breathtaking Views!
Property Details
Interior
Features
Flat Floor
Kitchen
7.4 x 3.35Centre Island / Quartz Counter / Combined W/Living
Primary
3.99 x 2.8Ensuite Bath / Double Closet / Large Window
Living
7.4 x 3.35Laminate / W/O To Balcony / Combined W/Kitchen
2nd Br
3.3 x 2.8Laminate / Closet / Large Window
Exterior
Features
Parking
Garage spaces 1
Garage type Underground
Other parking spaces 0
Total parking spaces 1
Condo Details
Inclusions
Property History
32


























