9017 Leslie St #219, Richmond Hill, Ontario L4B 4R8
Contact us about this property
Highlights
Estimated valueThis is the price Wahi expects this property to sell for.
The calculation is powered by our Instant Home Value Estimate, which uses current market and property price trends to estimate your home’s value with a 90% accuracy rate.Not available
Price/Sqft$572/sqft
Monthly cost
Open Calculator
Description
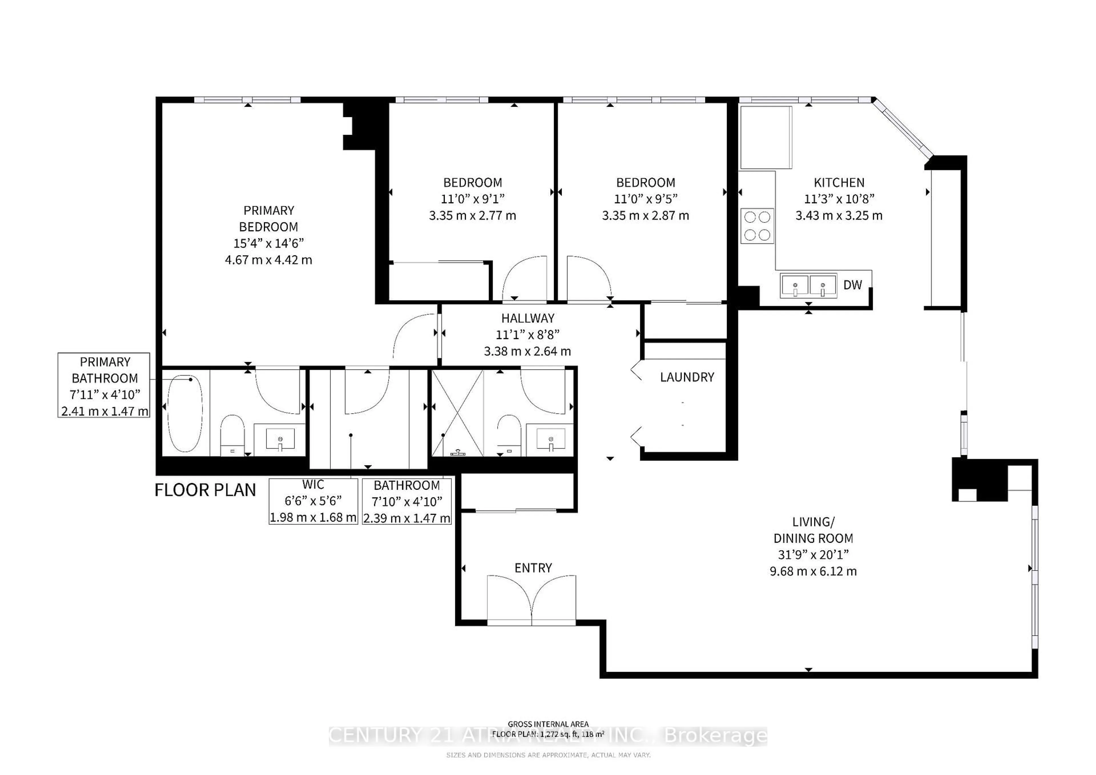
Must See! S/W Corner Bright And Natural Sunlight Suite In The Heart Of Richmond Hill. 3 Beds + 1 Den Open Concept Throughout. 2 Side by Side Parking Spots. Double Door Entry with Open Foyer. Large Balcony, Primary Br with W/I Closet. 24 Hr Gated Community with Gatehouse. BEST SCHOOL ZONE! Mins to Times Square, Restaurants, Cinema, Transit, Hwy 407 and 404 and Schools. Complimentary Membership to the Luxurious 25,000 Sf Facilities Exclusive Sheraton Parkway Hotel Fitness & Racquet Club Which Includes: Indoor/Outdoor Pools, Tennis Courts, Gym and Exercise, Sauna, Cardio and Yoga Classes, Steam Rooms and Squash Courts.
Property Details
Interior
Features
Flat Floor
Kitchen
3.43 x 3.25South View / Large Window / Tile Floor
Primary
4.67 x 4.424 Pc Ensuite / W/I Closet / Laminate
2nd Br
3.35 x 2.87Closet / Large Window / Laminate
Living
9.68 x 6.12Combined W/Dining / Open Concept / Laminate
Exterior
Features
Parking
Garage spaces 2
Garage type Underground
Other parking spaces 0
Total parking spaces 2
Condo Details
Inclusions
Property History
43


















