2020 Bathurst St #1016, Toronto, Ontario M5P 0A6
Contact us about this property
Highlights
Estimated valueThis is the price Wahi expects this property to sell for.
The calculation is powered by our Instant Home Value Estimate, which uses current market and property price trends to estimate your home’s value with a 90% accuracy rate.Not available
Price/Sqft$386/sqft
Monthly cost
Open Calculator
Description
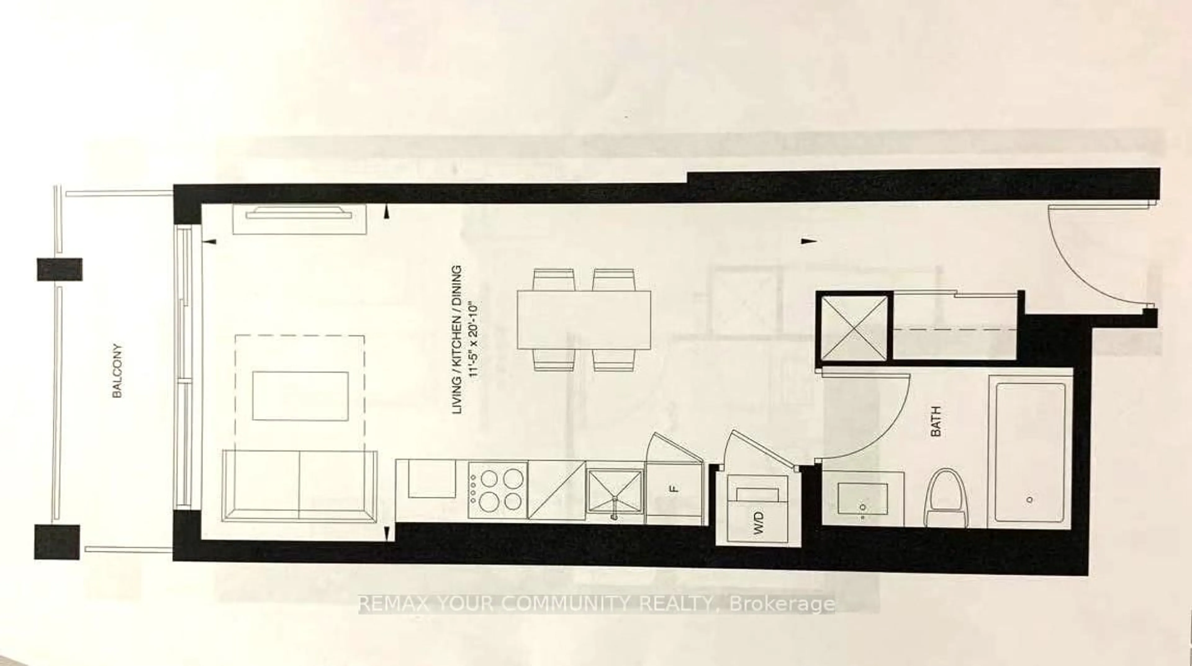
Discover Your Dream Home In Forest Hill! This stunning 2 -ys new luxurious condo features unique soaring 12' ceilings and an unobstructed East view, providing a breathtaking backdrop to your urban lifestyle. The floor-to-ceiling windows fill the space with an abundance of natural light, while roller shades with remote control offer both privacy and convenience. Enjoy the added benefit of unlimited internet included, making it perfect for remote work and staying connected. With future direct access to the Forest Hill Subway Station, commuting is effortless. Enjoy the vibrant community with an array of shops, restaurants, and amenities just moments away. Public transit is at your doorstep and you're only minutes from Highway 401 for easy travel! Embrace modern living in this expectational condo that combines elegance, comfort and an unbeatable location!
Property Details
Interior
Features
Flat Floor
Living
6.61 x 3.48Laminate / Combined W/Dining / W/O To Balcony
Dining
6.61 x 3.48Laminate / Combined W/Kitchen
Kitchen
6.61 x 3.48Laminate / Modern Kitchen / Quartz Counter
Exterior
Features
Condo Details
Amenities
Concierge, Guest Suites, Gym, Party/Meeting Room, Recreation Room, Rooftop Deck/Garden
Inclusions
Property History
21











