300 Front St #1813, Toronto, Ontario M5V 0E9
Contact us about this property
Highlights
Estimated valueThis is the price Wahi expects this property to sell for.
The calculation is powered by our Instant Home Value Estimate, which uses current market and property price trends to estimate your home’s value with a 90% accuracy rate.Not available
Price/Sqft$1,127/sqft
Monthly cost
Open Calculator

Curious about what homes are selling for in this area?
Get a report on comparable homes with helpful insights and trends.
+65
Properties sold*
$670K
Median sold price*
*Based on last 30 days
Description
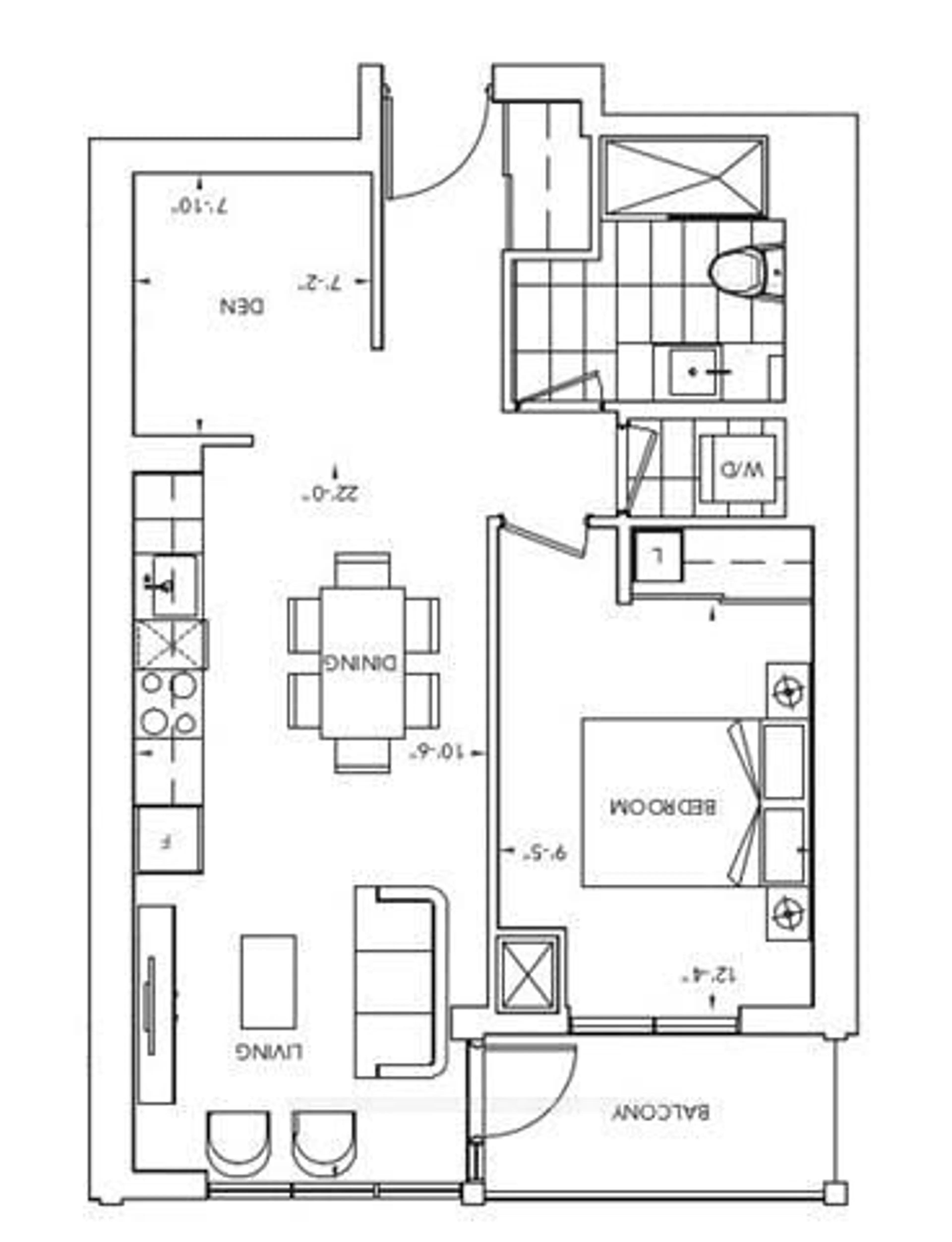
Downtown Living At More Than Just a home, It might be The Best Luxury Tridel Built Condo! Amazing Amenities With Grand Roof Terrace With Pool, Cabanas & BBQs, Gym, Spin Room, Yoga Room, 24 Hour Concierge, And More. Upgraded Granite Counters, Under Mount Sink, Custom Curtains, And Mirrored Closets. Spacious Den, Functional Layout And Stunning View! Easy Access To Path System, Transit And Highway.
Property Details
Interior
Features
Main Floor
Kitchen
6.71 x 3.2Granite Counter / Stainless Steel Appl / Combined W/Dining
Dining
6.71 x 3.2Laminate / Combined W/Living
Living
6.71 x 3.2W/O To Balcony / Large Window / Combined W/Dining
Primary
2.87 x 3.76Large Closet / Laminate / Large Window
Exterior
Features
Parking
Garage spaces 1
Garage type Underground
Other parking spaces 0
Total parking spaces 1
Condo Details
Amenities
Concierge, Gym, Lap Pool, Outdoor Pool, Rooftop Deck/Garden
Inclusions
Property History



