415 Jarvis St #214, Toronto, Ontario M4Y 2G8
Contact us about this property
Highlights
Estimated valueThis is the price Wahi expects this property to sell for.
The calculation is powered by our Instant Home Value Estimate, which uses current market and property price trends to estimate your home’s value with a 90% accuracy rate.Not available
Price/Sqft$742/sqft
Monthly cost
Open Calculator
Description
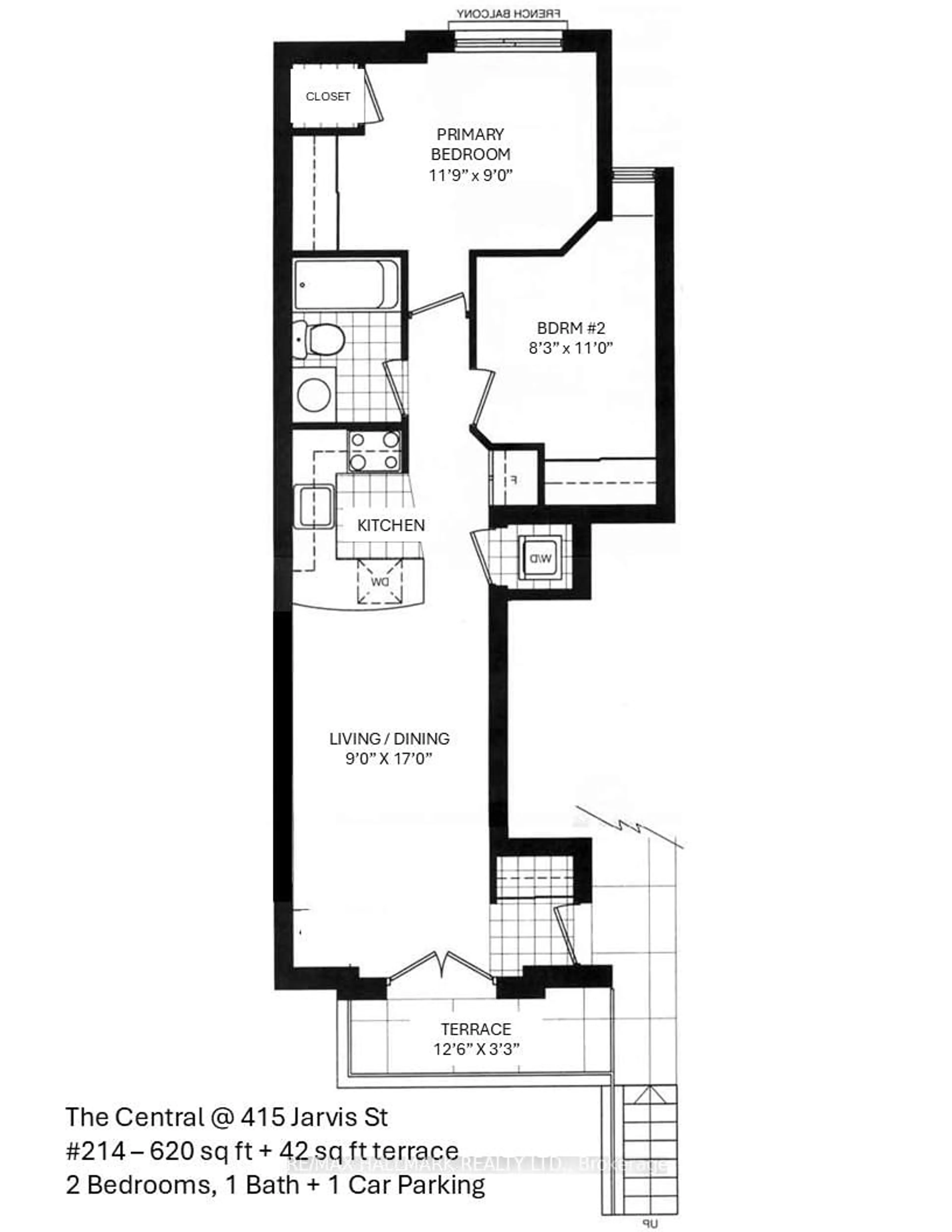
Own at The Central, where opportunity meets lifestyle. Rarely available and exceptional value for this fully renovated townhouse delivers high-end finishes and everyday luxury. It is your chance to step into homeownership without compromise. This 2-bedroom, 1-bathroom main floor suite features a smart, well-designed layout with modern upgrades throughout, including sleek white quartz countertops, a custom accent breakfast bar, stainless steel appliances, and an open-concept living and dining space perfect for both relaxing and entertaining. The spa-inspired bathroom offers a deep soaker tub and refined, luxury finishes for a calming retreat. Both bedrooms provide flexibility, while the primary is filled with natural light and features a Juliette balcony with west-facing exposure. Enjoy your own private terrace overlooking a quiet, tree-lined courtyard, perfect for morning coffee or unwinding. Low maintenance fees and direct access mean no elevators required. Just a 7-minute walk to the subway, with Loblaws, cafés, and restaurants at your doorstep. Set in a well-managed, extremely dog-friendly community with key fob access to a neighboring dog park and Allan Gardens, a historic conservatory, just steps away. A smart move for first-time buyers, buyers looking for an upgrade or investors. A must see ~ Experience it ~ Before it's gone.
Property Details
Interior
Features
Main Floor
Living
5.05 x 2.71W/O To Balcony / Open Concept / Vinyl Floor
Dining
5.05 x 2.71Breakfast Bar / Combined W/Living / Vinyl Floor
Kitchen
2.69 x 2.69Stainless Steel Appl / Quartz Counter / Vinyl Floor
Primary
3.48 x 3.48Juliette Balcony / Double Closet / Vinyl Floor
Exterior
Features
Parking
Garage spaces 1
Garage type Underground
Other parking spaces 0
Total parking spaces 1
Condo Details
Amenities
Visitor Parking
Inclusions
Property History
35
























