160 Vanderhoof Ave #711, Toronto, Ontario M4G 0B7
Contact us about this property
Highlights
Estimated valueThis is the price Wahi expects this property to sell for.
The calculation is powered by our Instant Home Value Estimate, which uses current market and property price trends to estimate your home’s value with a 90% accuracy rate.Not available
Price/Sqft$401/sqft
Monthly cost
Open Calculator

Curious about what homes are selling for in this area?
Get a report on comparable homes with helpful insights and trends.
+7
Properties sold*
$670K
Median sold price*
*Based on last 30 days
Description
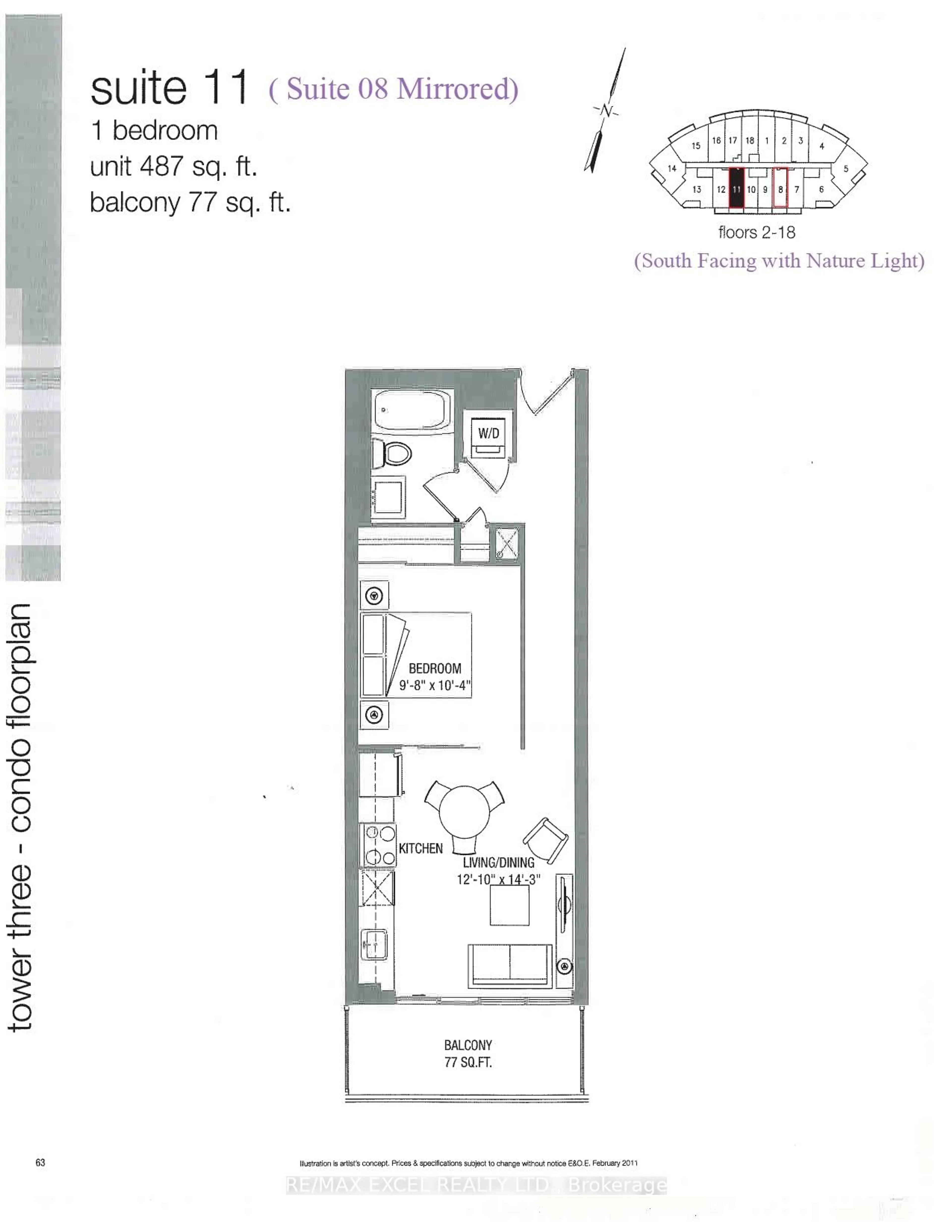
Scenic 3 In Midtown. Great Value Unit With Parking And T W O Lockers! Spacious 1 Br Suite W/Large 77 Sf Balcony, South Facing, Sun Filled with Natural Light, Unobstructed view. Modern City Lifestyle At Convenient Location. Steps To T T C, L R T, Shopping (Smart Crt, Homesense, Home Depot, Etc.) Schools & Parks. D V P
Property Details
Interior
Features
Ground Floor
Living
4.34 x 3.91Combined W/Dining / W/O To Balcony / Laminate
Dining
4.34 x 3.91Combined W/Living / Open Concept / Laminate
Kitchen
0.01 x 0.01Laminate
Primary
3.15 x 2.95Large Closet / Sliding Doors / Separate Rm
Exterior
Features
Parking
Garage spaces 1
Garage type Underground
Other parking spaces 0
Total parking spaces 1
Condo Details
Amenities
Concierge, Gym, Party/Meeting Room, Rooftop Deck/Garden, Visitor Parking, Indoor Pool
Inclusions
Property History

22






