4165 Fieldgate Dr #48, Mississauga, Ontario L4W 2M9
Contact us about this property
Highlights
Estimated valueThis is the price Wahi expects this property to sell for.
The calculation is powered by our Instant Home Value Estimate, which uses current market and property price trends to estimate your home’s value with a 90% accuracy rate.Not available
Price/Sqft$562/sqft
Monthly cost
Open Calculator
Description
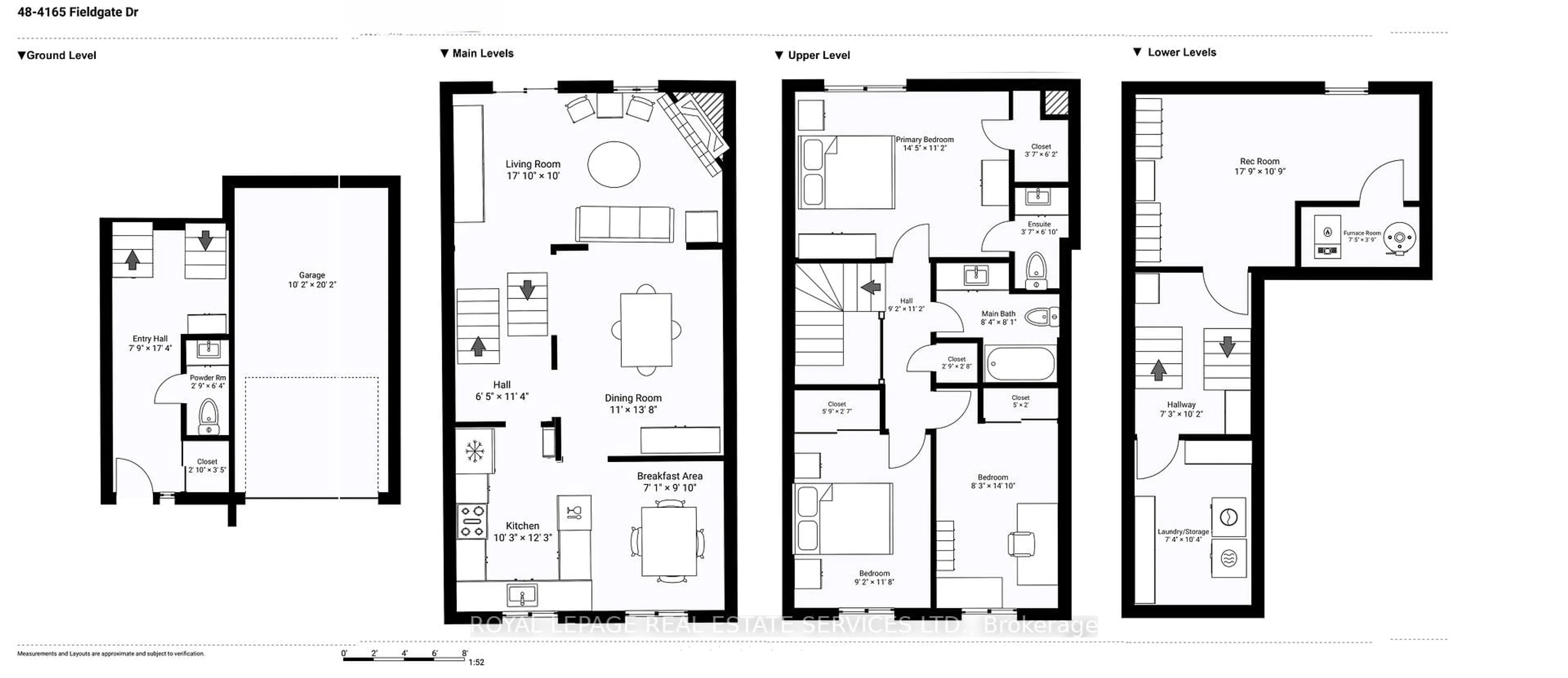
This charming 3-bedroom, 3-bath townhome is situated in the family-friendly neighbourhood of RockwoodVillage, ideally located near the Etobicoke/Mississauga border. Situated in the well-managed Fieldgate Pines complex, this spacious home is within walking distance to Shaver's Trail and Etobicoke Creek, offering a perfect blend of nature and convenience. Designed with a functional multi-level layout, the home offers exceptional space for both everyday living and entertaining. Enjoy a large family-sized eat-in kitchen, a separate formal dining room overlooking a sun-filled living room with lovely cathedral ceilings, floor-to-ceiling windows, and a cozy brick wood-burning fireplace. A walkout from here leads to a rare, private, fully fenced backyard complete with patio and perennial gardens-an ideal outdoor pet friendly retreat. The upper level features three generously sized bedrooms, including a large primary suite with a walk-in closet and 2-piece ensuite, along with a renovated main bath. The finished lower level provides versatile additional living space-perfect for a rec room, home office, or play area-plus a separate laundry room with additional storage. Close to top-rated schools, multiple parks & trails, shopping, dining, public transit, and major highways, this is an exceptional chance to join this unbeatable close knit community! Don't miss it!
Upcoming Open House
Property Details
Interior
Features
Main Floor
Dining
4.17 x 3.35Separate Rm / O/Looks Living / Broadloom
Kitchen
3.73 x 3.12Ceramic Floor / Family Size Kitchen / Breakfast Bar
Breakfast
3.0 x 2.16Ceramic Floor / Large Window / Eat-In Kitchen
Exterior
Parking
Garage spaces 1
Garage type Built-In
Other parking spaces 1
Total parking spaces 2
Condo Details
Amenities
Bbqs Allowed, Visitor Parking
Inclusions
Property History
42














