671 Deckhouse Crt, Mississauga, Ontario L5W 1P9
Contact us about this property
Highlights
Estimated valueThis is the price Wahi expects this property to sell for.
The calculation is powered by our Instant Home Value Estimate, which uses current market and property price trends to estimate your home’s value with a 90% accuracy rate.Not available
Price/Sqft$574/sqft
Monthly cost
Open Calculator
Description
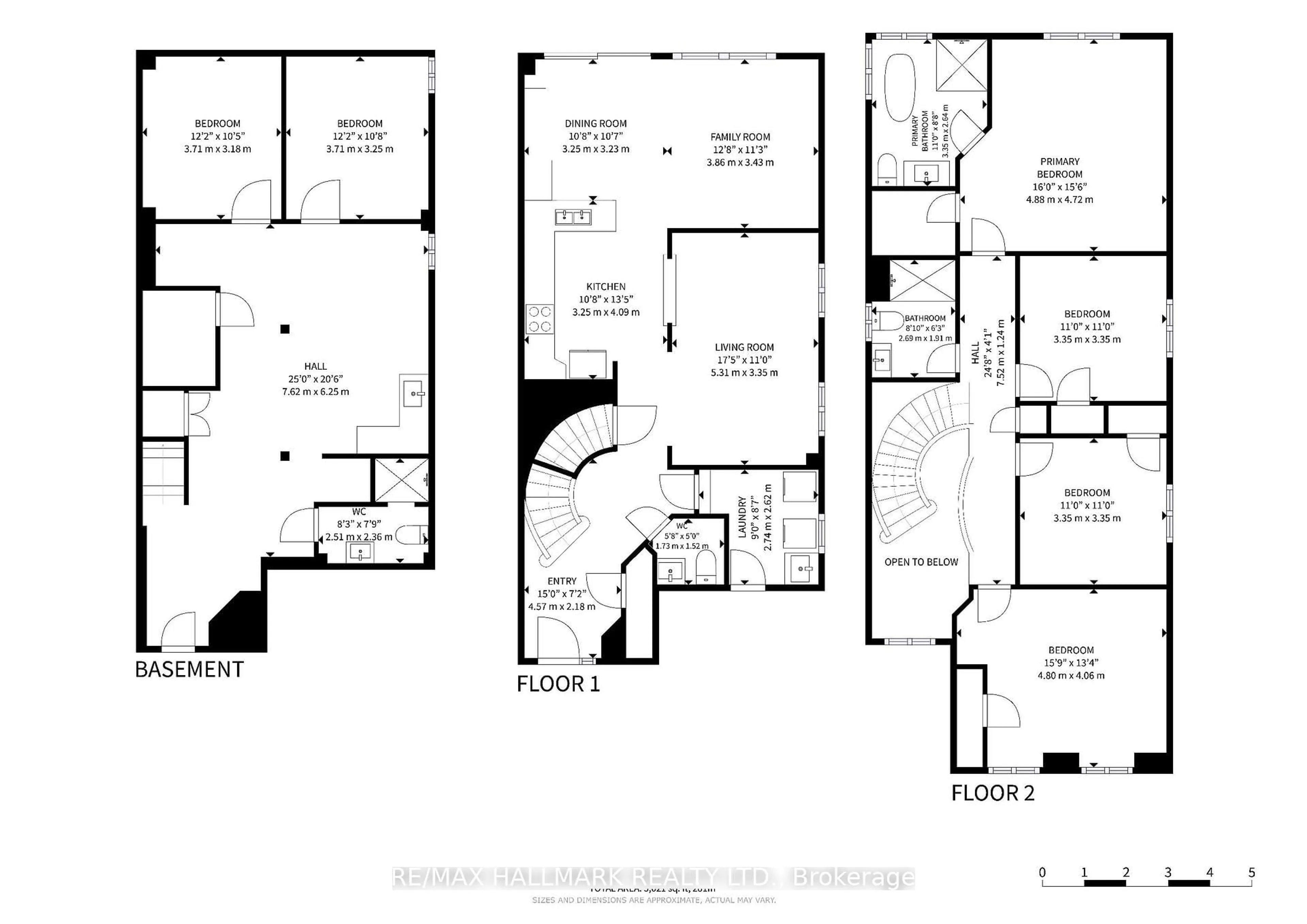
Welcome to 671 Deckhouse Court, the perfect home for your growing family. Built in 2003 by Greenpark, this majestic 4-bedroom residence offers 2,275 sqft of updated and renovated living space plus a 1,015 sqft finished basement. Offered for the 1st time by the original owners, this home has been lovingly maintained and features approx $100k+ in upgrades and renovations throughout, including roof (2018) and ac and furnace (2021), pot lights throughout, making it move-in ready. The grand foyer makes a statement with soaring ceilings and a picturesque iron-and-wood spiral staircase. The inviting, combined living and dining area offers newly installed hardwood floors (2026) and large windows, perfect for family dinners and relaxing moments. The kitchen features updated cabinetry (2021), ceramic floors (2021), a double-sink breakfast bar, and stainless steel appliances including a brand-new stove, rangehood and large Samsung fridge. A casual breakfast area provides walk-out access to a custom wood deck for barbecues and relaxation. A bright family room with new hardwood and a spacious mudroom with laundry and garage access complete the ground floor. Upstairs, your family will appreciate 4 bedrooms with new hardwood floors. The large primary suite feels like a spa, featuring a walk-in closet and a newly renovated 4-piece ensuite with gold-tone fixtures, a standing shower, and a soaker tub. Three additional sunlit bedrooms share another newly renovated 4-piece washroom with modern black fixtures and sliding glass doors. The finished basement adds incredible value with a large living/recreational area, kitchen, 3-piece washroom, 2 additional rooms with doors, and a separate entrance, ensuring the home meets all your family's living requirements. Located in prime Meadowvale Village, you are minutes from highly ranked schools, Hwy 401 and 407 access, and Heartland Town Centre. This is your opportunity to own a grand family home and create memories for years to come.
Property Details
Interior
Features
2nd Floor
3rd Br
3.35 x 3.35hardwood floor / Window / Closet
4th Br
4.8 x 4.06hardwood floor / Large Window / Large Closet
Bathroom
2.69 x 1.91Ceramic Floor / 4 Pc Bath / Renovated
Primary
4.88 x 4.72hardwood floor / W/I Closet / 4 Pc Ensuite
Exterior
Features
Parking
Garage spaces 2
Garage type Built-In
Other parking spaces 2
Total parking spaces 4
Property History
42























