7255 Dooley Dr #29, Mississauga, Ontario L4T 2S7
Contact us about this property
Highlights
Estimated valueThis is the price Wahi expects this property to sell for.
The calculation is powered by our Instant Home Value Estimate, which uses current market and property price trends to estimate your home’s value with a 90% accuracy rate.Not available
Price/Sqft$464/sqft
Monthly cost
Open Calculator
Description
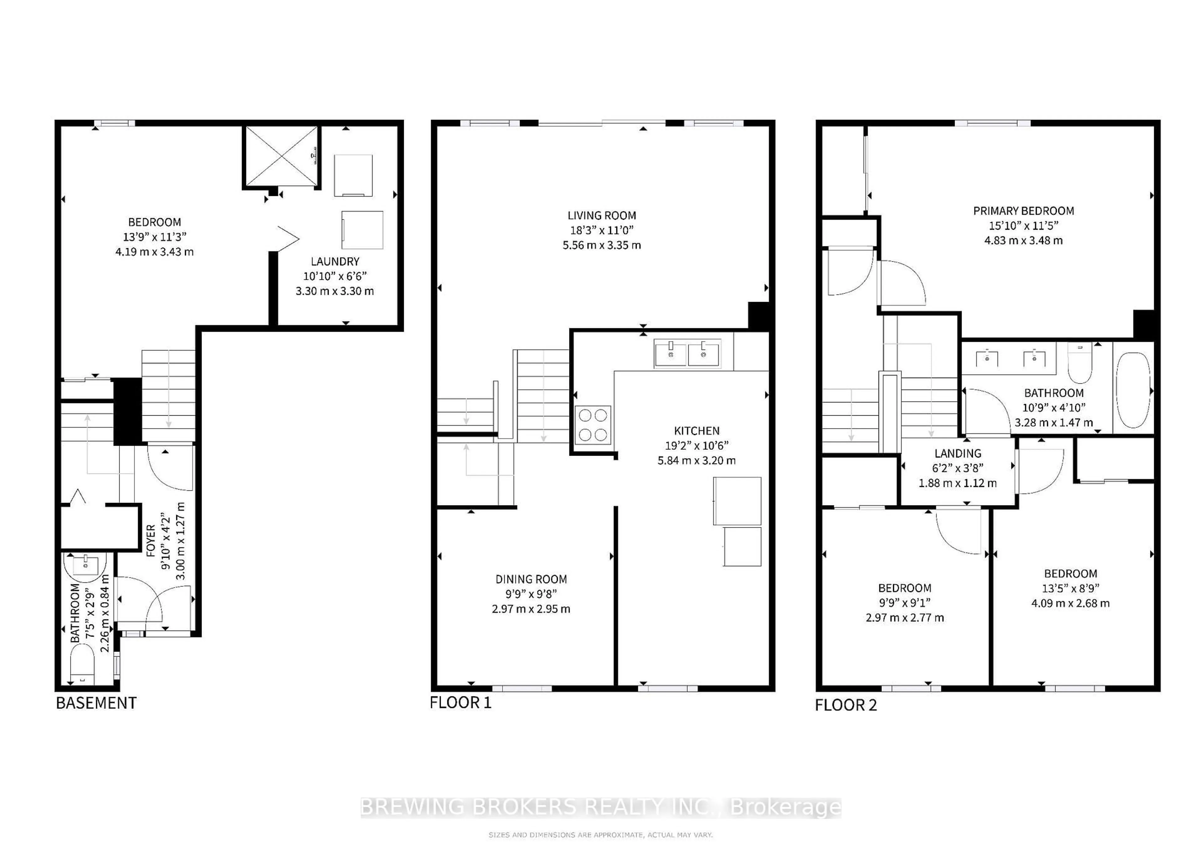
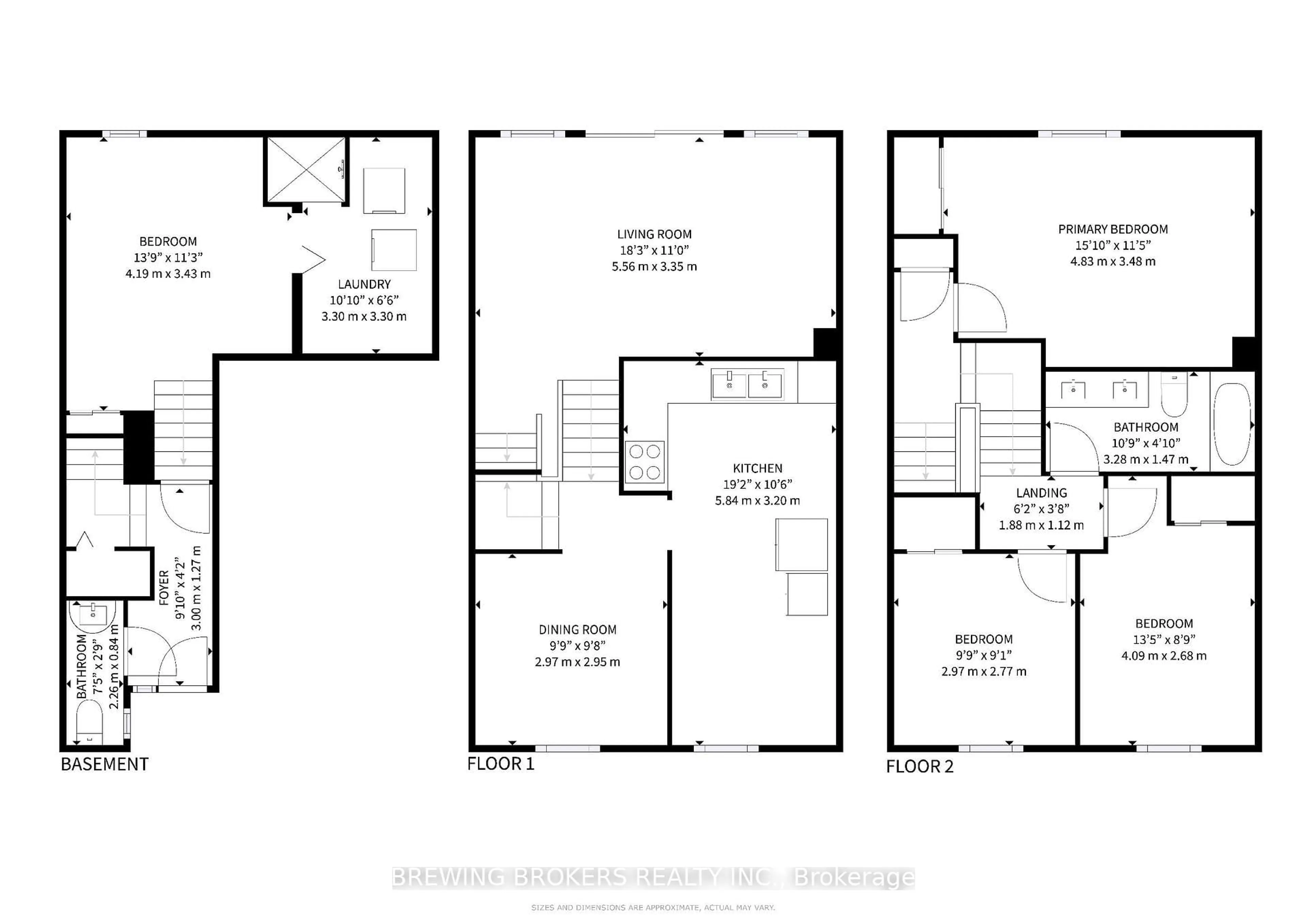
A fantastic opportunity for first-time buyers or investors. Welcome to this well-kept and thoughtfully updated 3+1 bedroom townhome in the heart of Malton, one of the most convenient and connected areas in Mississauga.This home stands out from the rest with direct access to Dooley Drive, meaning no need to drive through the condo complex. A rare sliding back door leads to a fully refinished deck, creating an easy flow to your private outdoor space, perfect for relaxing or hosting summer BBQs.Inside, the main floor features a bright and comfortable living area, a dedicated dining space, and a spacious eat-in kitchen. Upstairs you'll find three generously sized bedrooms and a clean, updated 4-piece bath, offering plenty of space for families or shared living arrangements.The lower level adds valuable flexibility. Unlike other homes in the complex, this one includes a fourth bedroom and a separate shower in the basement alongside the laundry area, ideal for extended family, guests, or additional living space.The location is truly unbeatable. Just steps from Westwood Mall, major transit routes including MiWay and TTC, parks, schools, grocery stores, and everyday essentials. With quick access to Highways 427, 401, and 407, as well as the Malton GO Station, commuting across the GTA is simple and convenient.An added bonus: the current owner rents a rare additional parking space that can be transferred to the next owner.Whether you're a first-time buyer looking for a move-in ready home or someone seeking a property with strong long-term potential in a high-demand area, this home delivers excellent value, functional space, and exceptional convenience.
Property Details
Interior
Features
Main Floor
Living
5.6 x 3.35Combined W/Dining / Picture Window / Laminate
Exterior
Parking
Garage spaces 1
Garage type Built-In
Other parking spaces 1
Total parking spaces 2
Condo Details
Inclusions
Property History
33



























