1105 Haig Blvd, Mississauga, Ontario L5E 2M4
Contact us about this property
Highlights
Estimated valueThis is the price Wahi expects this property to sell for.
The calculation is powered by our Instant Home Value Estimate, which uses current market and property price trends to estimate your home’s value with a 90% accuracy rate.Not available
Price/Sqft$535/sqft
Monthly cost
Open Calculator
Description
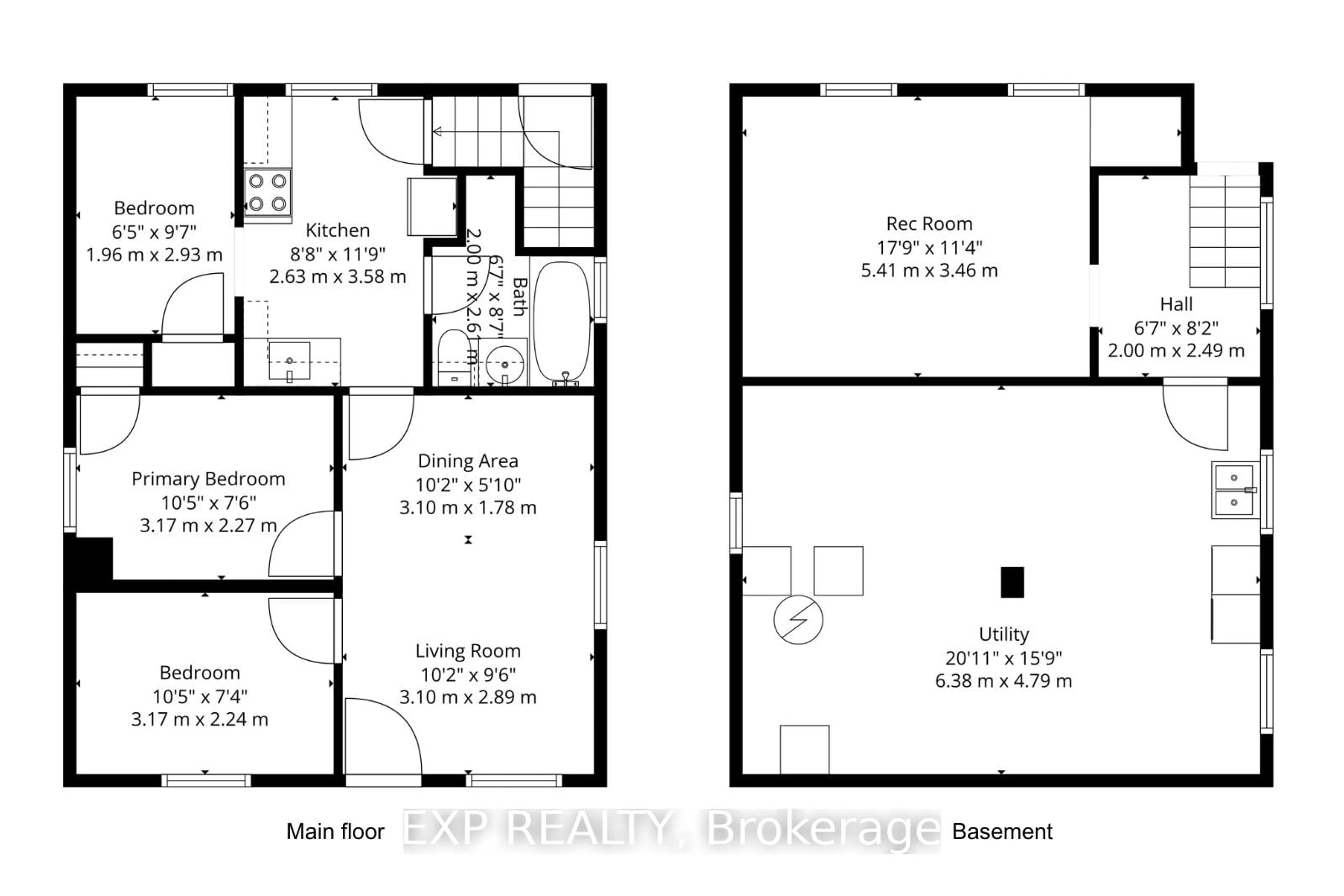
Welcome to 1105 Haig Blvd, a spectacular property offering limitless potential. Featuring an impressive 57 x 200 ft lot, one of the largest sized properties available in the area. The charming bungalow includes a bright, open living room filled with natural light and a walk-out to the covered front porch. Its layout is both functional and versatile, with 3 separate rooms on the main floor that could be used as 3 bedrooms, or separate dining room space next to the kitchen and/or separate home office space, perfect for working professionals or a small family. Downstairs features a spacious rec room, plenty of storage space and a separate entrance from the back of the home. In the backyard, find privacy with mature trees, no neighbours on the north side of the lot, and ample greenspace offering endless possibility for gardens, landscaping, a pool, accessory structure, etc... All the potential to create your dream outdoor oasis. Renovate, add on, or build your new custom home in one of south Mississauga's most attractive, family friendly, highly sought after neighbourhoods. Situated in the heart of Lakeview, walking distance to the lake, parks, golf course, excellent schools, Long Branch Go station, Dixie Mall, groceries and more. Opportunity knocks at 1105 Haig Blvd!
Upcoming Open House
Property Details
Interior
Features
Main Floor
3rd Br
1.96 x 2.93Closet / O/Looks Backyard
Living
3.1 x 4.67W/O To Porch / Ceiling Fan
Kitchen
2.63 x 3.58B/I Shelves / O/Looks Backyard
2nd Br
3.17 x 2.24Large Window / O/Looks Frontyard
Exterior
Features
Parking
Garage spaces -
Garage type -
Total parking spaces 4
Property History

48























