33 Bradley Dr, Halton Hills, Ontario L7G 6B5
Contact us about this property
Highlights
Estimated valueThis is the price Wahi expects this property to sell for.
The calculation is powered by our Instant Home Value Estimate, which uses current market and property price trends to estimate your home’s value with a 90% accuracy rate.Not available
Price/Sqft$645/sqft
Monthly cost
Open Calculator
Description
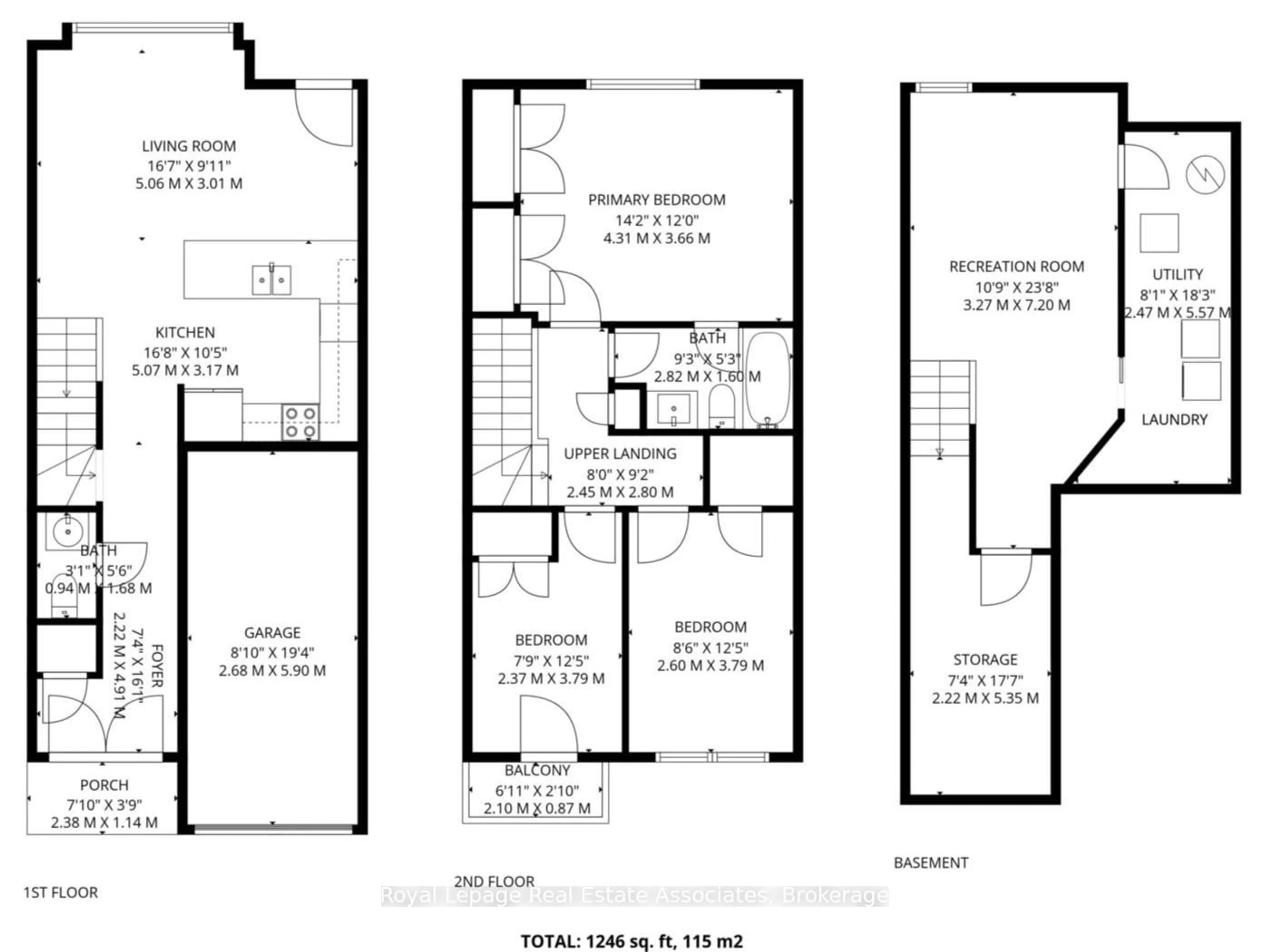
Move-in-ready freehold 2-storey townhome with 2 parking spaces, 3 bedrooms, and 2 bathrooms in the desired Dominion Gardens area. The open-concept main floor, finished with engineered hardwood flooring (2018), features a bright living and dining area, a stylish kitchen with stainless steel appliances (2018), a breakfast bar, a walkout to the fully fenced backyard with a Gas BBQ hookup, and a shed. Main floor has a good-sized foyer and 2 pc bathroom. Upstairs, the spacious primary bedroom boasts a his-and-her closet and a semi-4-piece ensuite bathroom. The second bedroom features a double closet, charming wainscotting, and a walkout to a private balcony, while the third bedroom features a traditional closet and window, perfect for a family, guests, or a home office. The finished basement adds valuable extra living space, ideal for a rec room, gym, or work-from-home setup, and includes a laundry area and plenty of storage. With thoughtful updates, a functional layout, and walking distance to local amenities, schools, parks, and transit, this home is well-suited for first-time buyers, downsizers, or investors looking for a turnkey opportunity in a sought-after community. Extras: Baseboard/Door Casing (2018). Vanities (2018/2019). Roof (~2014).
Property Details
Interior
Features
Main Floor
Kitchen
3.227 x 2.772hardwood floor / Stainless Steel Appl / Open Concept
Living
5.11 x 3.179hardwood floor / W/O To Yard / Combined W/Dining
Dining
5.11 x 3.179hardwood floor / Open Concept / Combined W/Living
Exterior
Features
Parking
Garage spaces 1
Garage type Attached
Other parking spaces 1
Total parking spaces 2
Property History
36






