31 Gord Matthews Way, Uxbridge, Ontario L9P 0E9
Contact us about this property
Highlights
Estimated valueThis is the price Wahi expects this property to sell for.
The calculation is powered by our Instant Home Value Estimate, which uses current market and property price trends to estimate your home’s value with a 90% accuracy rate.Not available
Price/Sqft$600/sqft
Monthly cost
Open Calculator
Description
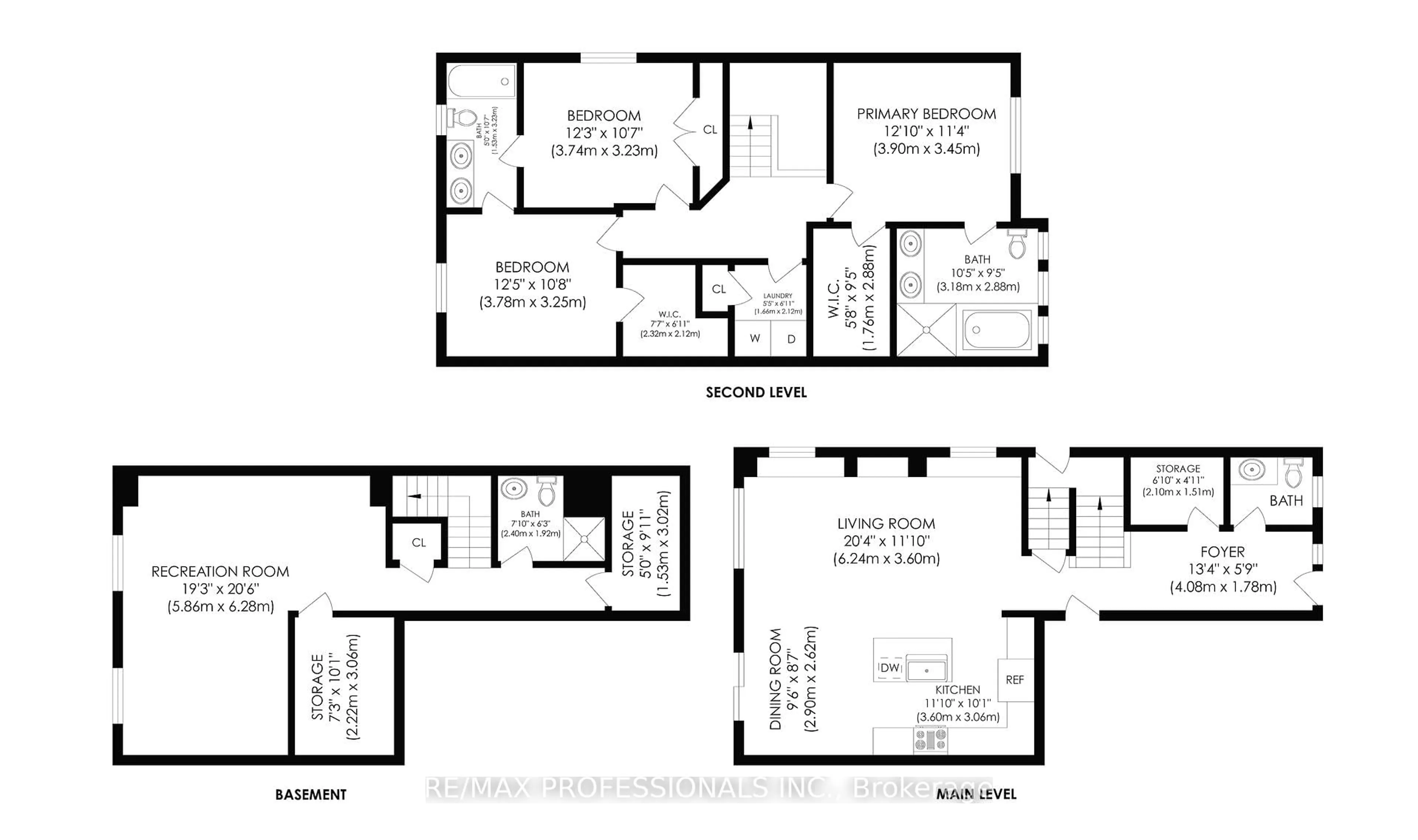
Located in the heart of Uxbridge, this thoughtfully upgraded end-unit townhome delivers style, space, and unmatched privacy, backing onto protected green space for a tranquil setting. The home features 3 bedrooms and 4 bathrooms, with wide plank hardwood flooring throughout, & high-end finishes. The living room is warm and inviting, highlighted by a gas fireplace with custom-built in reading alcoves and storage on both sides. The chef-inspired kitchen is beautifully finished with upgraded stainless steel appliances, quartz countertops, and a large island/breakfast bar. The second level offers a spacious primary suite with a walk-in closet, and a 5 piece ensuite bath. The two spacious secondary bedrooms are connected by a 5-piece Jack-and-Jill bath and complemented by conveniently situated upper-level laundry. The property features a finished basement with a separate side entrance, a 3-piece bathroom, and a complete kitchen rough-in-ideal for a future in-law suite. Enjoy a fenced, professionally landscaped backyard oasis, perfect for entertaining, and backing onto protected green space. Conveniently located close to charming shops, box stores, dining options, and all the amenities Uxbridge has to offer.
Property Details
Interior
Features
Main Floor
Kitchen
3.6 x 3.06hardwood floor / Stainless Steel Appl / Breakfast Bar
Living
6.24 x 3.6hardwood floor / Fireplace / Large Window
Dining
2.9 x 2.62hardwood floor / W/O To Deck / Open Concept
Exterior
Features
Parking
Garage spaces 1
Garage type Built-In
Other parking spaces 1
Total parking spaces 2
Property History
45








