310 Ormond Dr, Oshawa, Ontario L1K 1J2
Contact us about this property
Highlights
Estimated valueThis is the price Wahi expects this property to sell for.
The calculation is powered by our Instant Home Value Estimate, which uses current market and property price trends to estimate your home’s value with a 90% accuracy rate.Not available
Price/Sqft$283/sqft
Monthly cost
Open Calculator
Description
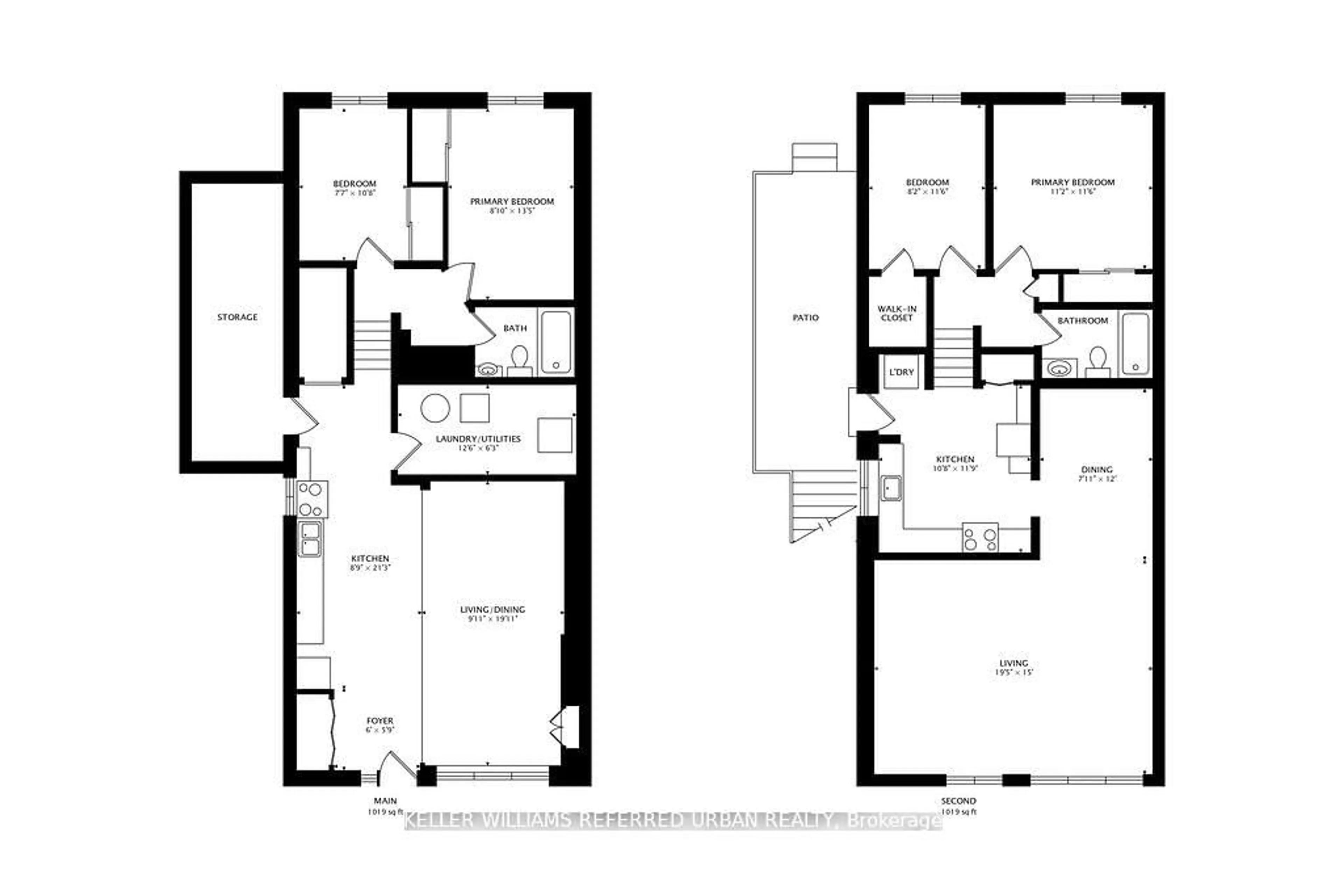
Welcome to 310 Ormond Dr. This charming duplex offers a unique opportunity for both investors and homeowners alike. With its convenient location, spacious layout, and attractive rental income, this duplex presents an excellent investment opportunity in the Durham real estate market. The property is designated as a duplex and consist of 2 self-contained units. Each unit features 2 spacious bedrooms, ensuite laundry, well laid out living spaces with large window for excellent light exposure, parking space, and large yard. Combine this with the convenience to highway, stores, parks and transit this property is not to be missed. Oshawa's real estate market continues to show promising growth, making this duplex an excellent investment opportunity. Whether you're a seasoned investor or a first-time buyer looking to build equity, this property offers long-term potential for capital appreciation.
Property Details
Interior
Features
Main Floor
Kitchen
6.5 x 2.7Double Sink / Window / Ceramic Floor
Living
6.1 x 3.0hardwood floor / Window
Dining
6.1 x 3.0hardwood floor / Window
Br
4.0 x 2.7Closet / Window
Exterior
Features
Parking
Garage spaces -
Garage type -
Total parking spaces 2
Property History
34















